Habitat says ..
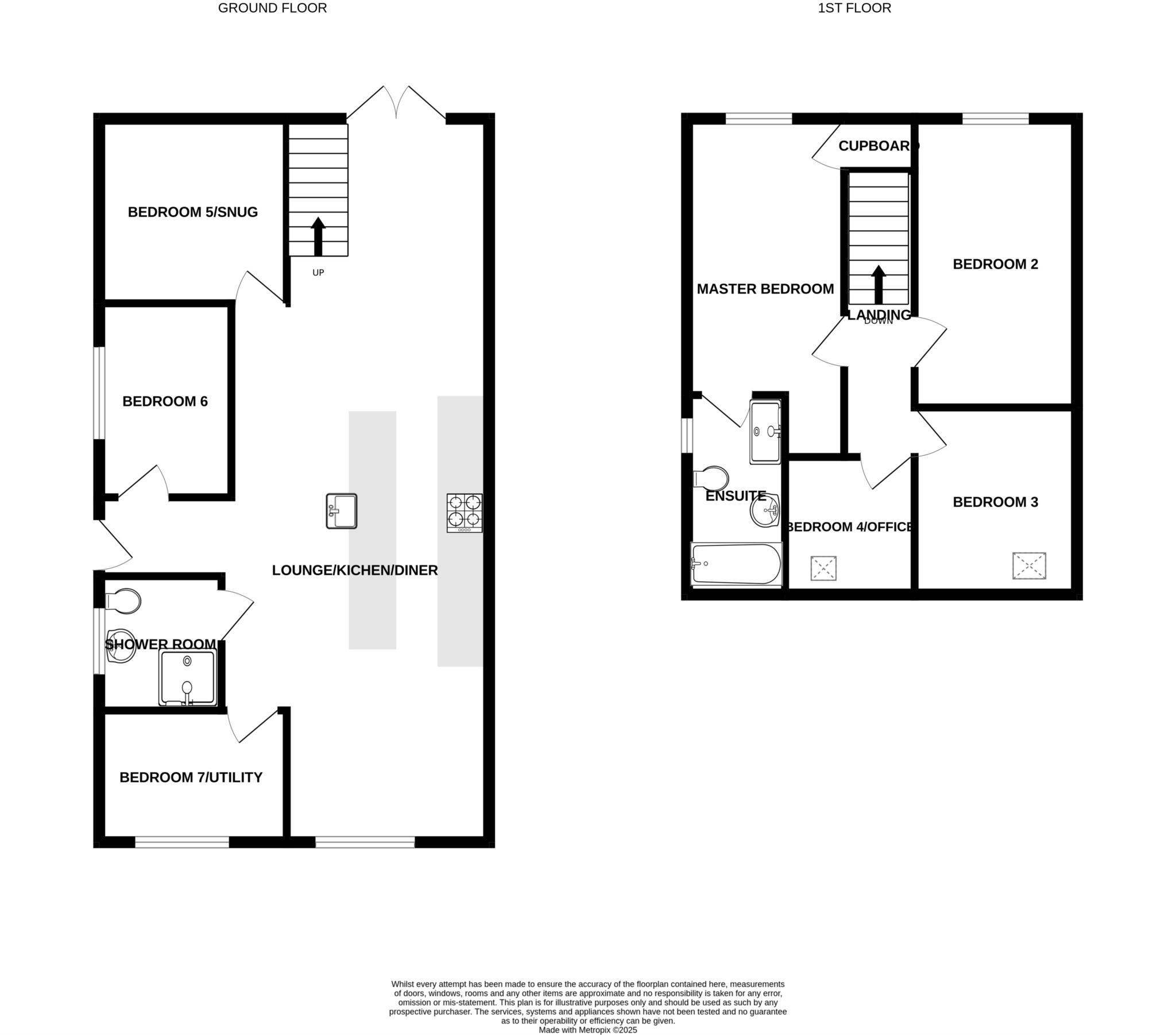
A 6/7 DORMER BUNGALOW offering flexible family living. NO CHAIN!!
Property Oracle says ..
This property is a 7-bedroom, 2-bathroom semi-detached bungalow located in Oldham, Greater Manchester. The property benefits from a modern kitchen and bathrooms, and what appears to be a recently landscaped garden with a hot tub and shed. The location is close to several schools and train stations, making it convenient for families and commuters. The list price of £325,000 is higher than the average price for the area (£235,709), but given the size (1190 sqft) and the modern updates, it could be considered reasonable for those seeking a larger, updated family home in this area. However, potential buyers should compare it to similar properties in the area to ensure it represents good value.
Therefore, we give this property 7 / 10. *Disclaimer: This is our option and does constitute a recommendation or financial advice. Do your own research. *
- Price
- 6
- Condition
- 9
- Location
- 7
- Land
- 8
- Bedrooms
- 7
- Bathrooms
- 2
- Sqft (est)
- 1,190.00
The heatmap indicates the level of crime in the area. The color of the heatmap indicates the crime severity and recency.
Metrics Year-on-Year
- Average area value
- 179,279.00 £Decreased by 22.29 %
- Est sale value
- 298,690.00 £Decreased by 0.79 %
- Average area rental value
- 1,050.00 £/moDecreased by 1.04 %
- Est letting value
- 1,190.00 £/moUnchanged by 0.00 %
- Est rental Yield
- 7.03 %Increased by 27.36 %
- Crime Rate
- 0.00 %
Agent Activity
Habitat created the listing.
Nearby Schools
| Name | Type | Ofsted | Distance |
|---|---|---|---|
| Royton Children'S Centre | Children's Centre | 0.44 KM | |
| Blackshaw Lane Primary & Nursery School | Community School | Requires improvement | 0.49 KM |
| E-Act Royton And Crompton Academy | Academy Sponsor Led | 0.81 KM | |
| Royton Hall Primary School | Community School | Good | 0.85 KM |
| St Joseph'S Rc Junior Infant And Nursery School | Voluntary Aided School | Good | 1.29 KM |
Images
Nearby Streets
| Name | Average Price | Average Sqft | Distance |
|---|---|---|---|
| Thomas Street | £ 0 | 0 | 0.00 KM |
| Manor Drive | £ 349,950 | 0 | 0.00 KM |
| Cocker Mill Lane | £ 200,000 | 0 | 0.00 KM |
| Higham Close | £ 0 | 0 | 0.00 KM |
| Edge Lane Street | £ 0 | 0 | 0.00 KM |
Nearby Transport
| Name | NLC | TLC | Distance |
|---|---|---|---|
| Mills Hill (Manchester) | 2920 | MIH | 7.03 KM |
| Rochdale | 2924 | RCD | 7.13 KM |
| Smithy Bridge | 2660 | SMB | 7.75 KM |
| Moston | 2973 | MSO | 8.18 KM |
| Ashton-Under-Lyne | 2790 | AHN | 8.23 KM |
Nearby Listings
| Address | Price | Type | Score | Distance |
|---|---|---|---|---|
| Helston Drive, Oldham | £ 325,000 | BUY | 7 / 10 | 0.00 KM |
| 6 Helston Drive, Royton, Oldham, OL2 6JS | £ 220,000 | BUY | 6 / 10 | 0.06 KM |
| Helston Drive, Royton | £ 220,000 | BUY | 7 / 10 | 0.06 KM |
| Penryn Avenue, Oldham, OL2 | £ 240,000 | BUY | 7 / 10 | 0.09 KM |
| Penryn Avenue, Oldham, OL2 6 | £ 180,000 | BUY | Unknown | 0.10 KM |
Nearby Properties
| Address | Price | Distance |
|---|---|---|
| 8 Helston Drive | £ 165,000 | 0.06 KM |
| 9 Helston Drive | £ 135,000 | 0.06 KM |
| 15 Helston Drive | £ 209,950 | 0.06 KM |
| 32 Helston Drive | £ 152,000 | 0.06 KM |
| 11 Helston Drive | £ 130,000 | 0.06 KM |