Strettons says ..
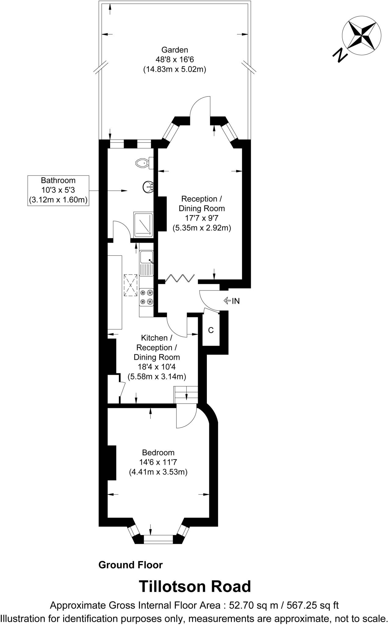
Strettons is pleased to present CHAIN FREE this charming one-bedroom ground-floor flat, situated within a characterful 1900s-built property. Offering a blend of period charm and modern convenience, the flat boasts two spacious reception rooms, providing flexible living and dining areas. The fitte...
Property Oracle says ..
The property is a 1 bedroom flat located on Tillotson Road, Enfield, London. The asking price is £250,000. The property benefits from being close to several highly-rated schools including The Latymer School which is rated ‘Outstanding’ by Ofsted. The location also offers convenient access to several London Overground stations, providing good transport links. The property includes a small garden. Based on the images provided, the property appears to be in generally fair condition, although some areas could benefit from modernisation and updating. The décor is dated, and some minor repairs may be needed. The kitchen and bathroom appear to be relatively modern. Considering the average price per sqft in the area is £454, and this property is 567.25 sqft, a reasonable estimate for the property value might be around £257,000. However, the actual asking price of £250,000 is slightly below this estimate. This could be due to the need for some modernisation, or the smaller than average size of the property. The property is smaller than the average property size in the area (567.25 sqft vs 889 sqft). Nearby properties show a range of prices, with some significantly higher and some lower than the asking price of this property. The lower price could reflect the need for modernisation.
Therefore, we give this property 6 / 10. *Disclaimer: This is our option and does constitute a recommendation or financial advice. Do your own research. *
- Price
- 7
- Condition
- 6
- Location
- 8
- Land
- 4
- Bedrooms
- 1
- Bathrooms
- 1
- Sqft (est)
- 567.25
The heatmap indicates the level of crime in the area. The color of the heatmap indicates the crime severity and recency.
Metrics Year-on-Year
- Average area value
- 545,000.00 £Increased by 28.91 %
- Est sale value
- 281,923.25 £Increased by 4.63 %
- Average area rental value
- 1,767.00 £/moDecreased by 6.90 %
- Est letting value
- 567.25 £/moDecreased by 50.00 %
- Est rental Yield
- 3.89 %Decreased by 27.83 %
- Crime Rate
- 4.00 %Unchanged by 0.00 %
Agent Activity
Strettons created the listing.
Nearby Schools
| Name | Type | Ofsted | Distance |
|---|---|---|---|
| Starks Field Primary School | Community School | Good | 0.29 KM |
| The Latymer School | Voluntary Aided School | Outstanding | 0.42 KM |
| Churchfield Primary School | Academy Converter | 0.44 KM | |
| Latymer All Saints Cofe Primary School | Voluntary Aided School | Good | 0.45 KM |
| Hazelbury Primary School | Academy Converter | Good | 0.78 KM |
Images
Nearby Streets
| Name | Average Price | Average Sqft | Distance |
|---|---|---|---|
| A10 | £ 0 | 0 | 0.00 KM |
| Amberley Gardens | £ 0 | 0 | 0.00 KM |
| Wimborne Road | £ 0 | 0 | 0.00 KM |
| Edward Close | £ 550,000 | 0 | 0.00 KM |
| Briary Lane | £ 525,000 | 0 | 0.00 KM |
Nearby Transport
| Name | NLC | TLC | Distance |
|---|---|---|---|
| Edmonton Green | 6941 | EDR | 1.22 KM |
| Bush Hill Park | 6913 | BHK | 1.45 KM |
| Silver Street | 6972 | SLV | 1.62 KM |
| White Hart Lane | 6956 | WHL | 2.63 KM |
| Enfield Town | 6959 | ENF | 2.74 KM |
Nearby Listings
| Address | Price | Type | Score | Distance |
|---|---|---|---|---|
| Tillotson Road, London,N9 | £ 250,000 | BUY | 6 / 10 | 0.00 KM |
| Stanley Road, Edmonton, N9 | £ 525,000 | BUY | 6 / 10 | 0.09 KM |
| Church Street, Edmonton, N9 | £ 275,000 | BUY | 6 / 10 | 0.12 KM |
| Flats A, B & C, 151 Church Street, Edmonton, London, N9 9RN | £ 650,000 | BUY | 3 / 10 | 0.12 KM |
| Church Street, London, N9 | £ 249,995 | BUY | 5 / 10 | 0.14 KM |
Nearby Properties
| Address | Price | Distance |
|---|---|---|
| 36 Tillotson Road | £ 136,000 | 0.01 KM |
| 54a Tillotson Road | £ 190,000 | 0.01 KM |
| 36a Tillotson Road | £ 145,000 | 0.01 KM |
| 32 Tillotson Road | £ 455,000 | 0.01 KM |
| 10 Tillotson Road | £ 246,000 | 0.01 KM |