Nested says ..
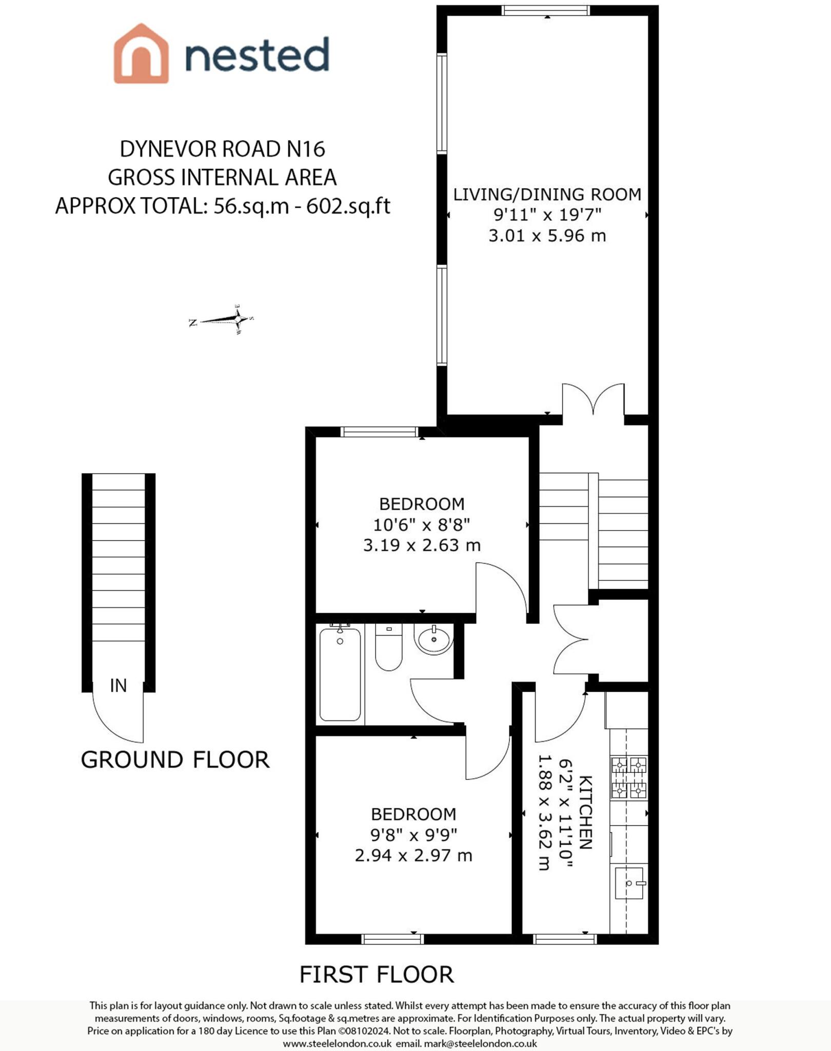
Two-bedroom first-floor period flat located on a sought-after residential road in Stoke Newington.
Property Oracle says ..
The property is located in Stoke Newington, Hackney, a popular area of London. It is within walking distance of Stoke Newington Overground station, providing convenient access to public transportation. The area is also known for its excellent schools, including William Patten Primary School, which is rated ‘Outstanding’ by Ofsted and is located just 0.12 KM away. This makes the property attractive to families.
Based on the provided photographs, the property appears to be in good condition. The interior is presented well, with a modern and clean aesthetic. There is no visible evidence of significant repairs or renovations needed.
The property does not appear to have a sizable garden, based on the external photograph. The plot size is listed as 0.00 sqft, which suggests that there may be only a small yard or no outdoor space at all.
The list price of £650,000 for a 2-bedroom, 1-bathroom property of 602.78 sqft is relatively high compared to some nearby listings. However, the lack of sqft data for comparable properties makes a precise price per sqft comparison impossible. The proximity to excellent schools and transport links in a desirable London location likely contributes to the higher price point. Further analysis would require more detailed information on the average price per square foot in the immediate vicinity of Dynevor Road, taking into account property type, size, and condition.
Therefore, we give this property 6 / 10. *Disclaimer: This is our option and does constitute a recommendation or financial advice. Do your own research. *
- Price
- 6
- Condition
- 8
- Location
- 9
- Land
- 2
- Bedrooms
- 2
- Bathrooms
- 1
- Sqft (est)
- 602.78
The heatmap indicates the level of crime in the area. The color of the heatmap indicates the crime severity and recency.
Metrics Year-on-Year
- Average area value
- 996,818.00 £Increased by 20.60 %
- Est sale value
- 516,582.46 £Increased by 149.85 %
- Average area rental value
- 2,571.00 £/moIncreased by 1.70 %
- Est letting value
- 1,205.56 £/moIncreased by 100.00 %
- Est rental Yield
- 3.10 %Decreased by 15.53 %
- Crime Rate
- 7.00 %Unchanged by 0.00 %
Agent Activity
Nested marked this listing as sold.
Nested created the listing.
Nearby Schools
| Name | Type | Ofsted | Distance |
|---|---|---|---|
| William Patten Primary School | Community School | Outstanding | 0.12 KM |
| Tawhid Boys School, Tawhid Educational Trust | Other Independent School | Good | 0.55 KM |
| Linden Children'S Centre | Children's Centre | 0.66 KM | |
| Ttd Gur School | Other Independent School | Inadequate | 0.75 KM |
| St Mary'S Church Of England Primary School, Stoke Newington | Voluntary Aided School | Good | 0.76 KM |
Images
Nearby Streets
| Name | Average Price | Average Sqft | Distance |
|---|---|---|---|
| Sanford Lane | £ 0 | 0 | 0.00 KM |
| Sandford Walk | £ 0 | 0 | 0.00 KM |
| Scholars' Place | £ 825,000 | 0 | 0.00 KM |
| Station Approach | £ 0 | 0 | 0.00 KM |
| Manor Road | £ 831,667 | 0 | 0.00 KM |
Nearby Transport
| Name | NLC | TLC | Distance |
|---|---|---|---|
| Stoke Newington | 6934 | SKW | 0.55 KM |
| Rectory Road | 6967 | REC | 0.77 KM |
| Dalston Kingsland | 1429 | DLK | 1.40 KM |
| Stamford Hill | 6968 | SMH | 1.54 KM |
| Dalston Junction | 1443 | DLJ | 1.62 KM |
Nearby Listings
| Address | Price | Type | Score | Distance |
|---|---|---|---|---|
| Dynevor Road, London N16 | £ 1,200,000 | BUY | 6 / 10 | 0.02 KM |
| Dynevor Road, N16 | £ 1,300,000 | BUY | Unknown | 0.06 KM |
| Stoke Newington High Street,, Stoke Newington, London, N16 | £ 1,250,000 | BUY | 6 / 10 | 0.06 KM |
| Stoke Newington High Street,, Stoke Newington, LONDON, N16 | £ 500,000 | BUY | Unknown | 0.06 KM |
| Stoke Newington High Street, Hackney, London, N16 | £ 675,000 | BUY | 7 / 10 | 0.10 KM |
Nearby Properties
| Address | Price | Distance |
|---|---|---|
| 109 Dynevor Road | £ 1,000,000 | 0.01 KM |
| 119 Dynevor Road | £ 638,000 | 0.01 KM |
| 123 Dynevor Road | £ 272,500 | 0.01 KM |
| 101 Dynevor Road | £ 1,057,500 | 0.01 KM |
| 125 Dynevor Road | £ 430,000 | 0.01 KM |