Haddon Road, Mansfield, Nottinghamshire
By David James Estate Agents
£ 325,000
Reviews
3 out of 5 stars
David James Estate Agents says ..
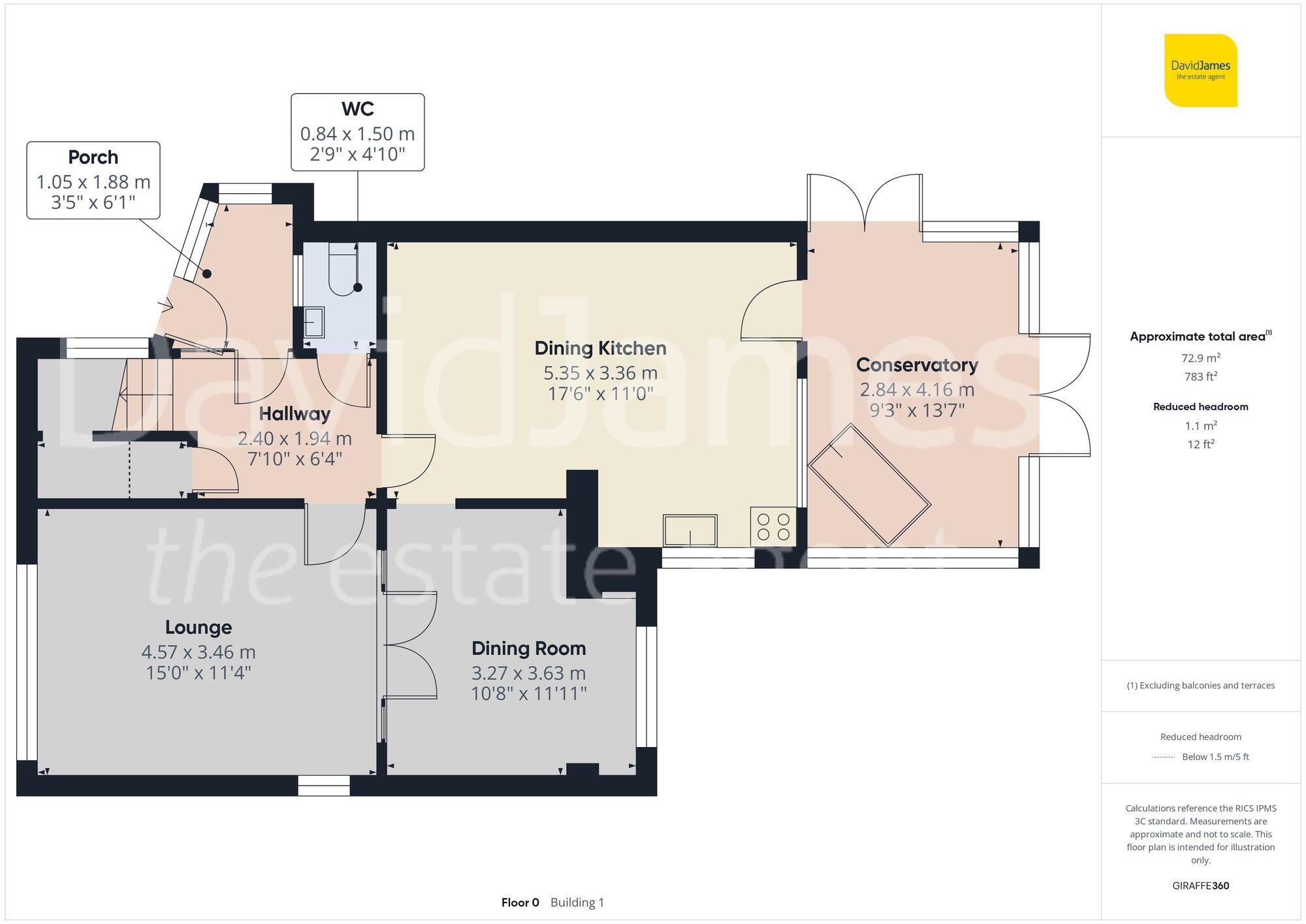
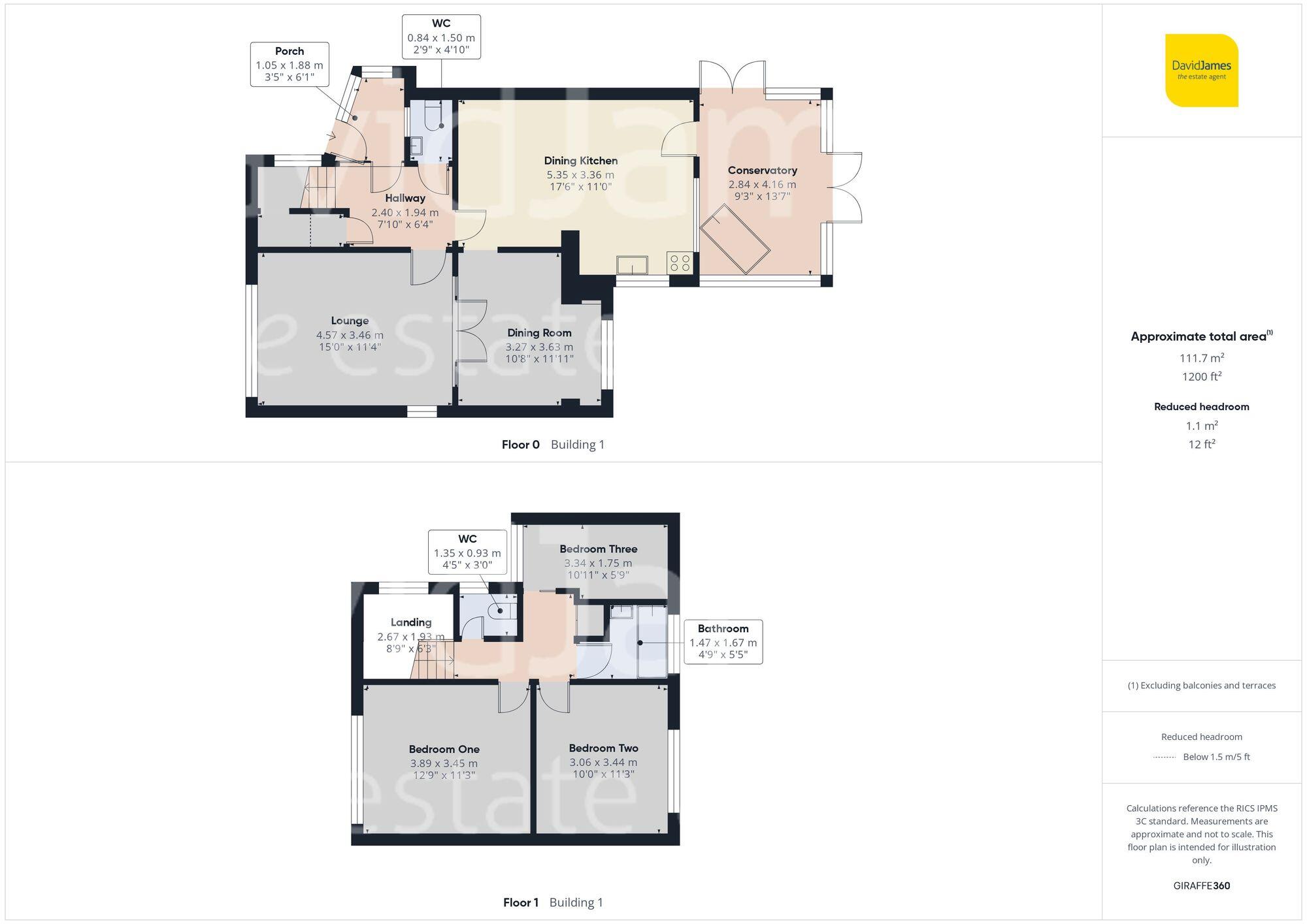
Extended detached house sold with no chain on a generous plot. Thoughtfully designed layout with 3 bedrooms, lounge with fireplace, dining room. Extended dining kitchen. UPVC conservatory. Block paved driveway, garage, additional garage and gated hardstanding. Enclosed rear garden with lawn and p...
Property Oracle says ..
The property is a detached house located on Haddon Road in Mansfield, Nottinghamshire. It has three bedrooms and one bathroom. The property is in need of some modernisation, but has a good sized plot with a garden, driveway and garage. The property is located close to schooling and transportation links.
Therefore, we give this property 6 / 10. *Disclaimer: This is our option and does constitute a recommendation or financial advice. Do your own research. *
- Price
- 6
- Condition
- 5
- Location
- 7
- Land
- 8
- Bedrooms
- 3
- Bathrooms
- 1
The heatmap indicates the level of crime in the area. The color of the heatmap indicates the crime severity and recency.
Metrics Year-on-Year
- Average area value
- 314,999.00 £Increased by 6.27 %
- Average area rental value
- 1,090.00 £/moIncreased by 10.89 %
- Est rental Yield
- 4.15 %Increased by 4.27 %
- Crime Rate
- 2.00 %Unchanged by 0.00 %
Agent Activity
David James Estate Agents created the listing.
Nearby Schools
| Name | Type | Ofsted | Distance |
|---|---|---|---|
| Real Alternative Provision School | Other Independent Special School | Good | 0.46 KM |
| The Brunts Academy | Academy Converter | Good | 0.94 KM |
| St Philip Neri With St Bede Catholic Voluntary Academy | Academy Converter | Good | 1.03 KM |
| Queen Elizabeth'S Academy | Academy Sponsor Led | Requires improvement | 1.23 KM |
| Mansfield Primary Academy | Academy Sponsor Led | Good | 1.24 KM |
Images
Nearby Streets
| Name | Average Price | Average Sqft | Distance |
|---|---|---|---|
| Woodhouse Road | £ 17,500 | 0 | 0.00 KM |
| Muskham Court | £ 0 | 0 | 0.00 KM |
| Samuel Brunts Way | £ 250,000 | 0 | 0.00 KM |
| Oak Avenue | £ 0 | 0 | 0.00 KM |
| Dunsil Road | £ 285,000 | 0 | 0.00 KM |
Nearby Transport
| Name | NLC | TLC | Distance |
|---|---|---|---|
| Mansfield | 1727 | MFT | 1.13 KM |
| Mansfield Woodhouse | 1728 | MSW | 1.49 KM |
| Shirebrook | 1595 | SHB | 5.89 KM |
| Sutton Parkway | 1861 | SPK | 6.96 KM |
| Kirkby-In-Ashfield | 1867 | KKB | 8.60 KM |
Nearby Listings
| Address | Price | Type | Score | Distance |
|---|---|---|---|---|
| Haddon Road, Mansfield, Nottinghamshire | £ 325,000 | BUY | 6 / 10 | 0.00 KM |
| Haddon Road, Mansfield | £ 425,000 | BUY | Unknown | 0.01 KM |
| Haddon Road, Mansfield | £ 650,000 | BUY | 6 / 10 | 0.09 KM |
| Baggaley Crescent, Mansfield | £ 190,000 | BUY | 7 / 10 | 0.12 KM |
| Baggaley Crescent, Mansfield | £ 190,000 | BUY | 7 / 10 | 0.12 KM |
Nearby Properties
| Address | Price | Distance |
|---|---|---|
| 30 Haddon Road | £ 241,038 | 0.10 KM |
| 2 Haddon Road | £ 425,000 | 0.10 KM |
| 7 Haddon Road | £ 187,995 | 0.10 KM |
| 26 Haddon Road | £ 157,500 | 0.10 KM |
| 14 Haddon Road | £ 140,000 | 0.10 KM |