JI
5/4 , Dovemount Place Hawick, TD9 8AZ
By Jim Hay Estate Agents
£ 95,000
Reviews
3 out of 5 stars
Jim Hay Estate Agents says ..
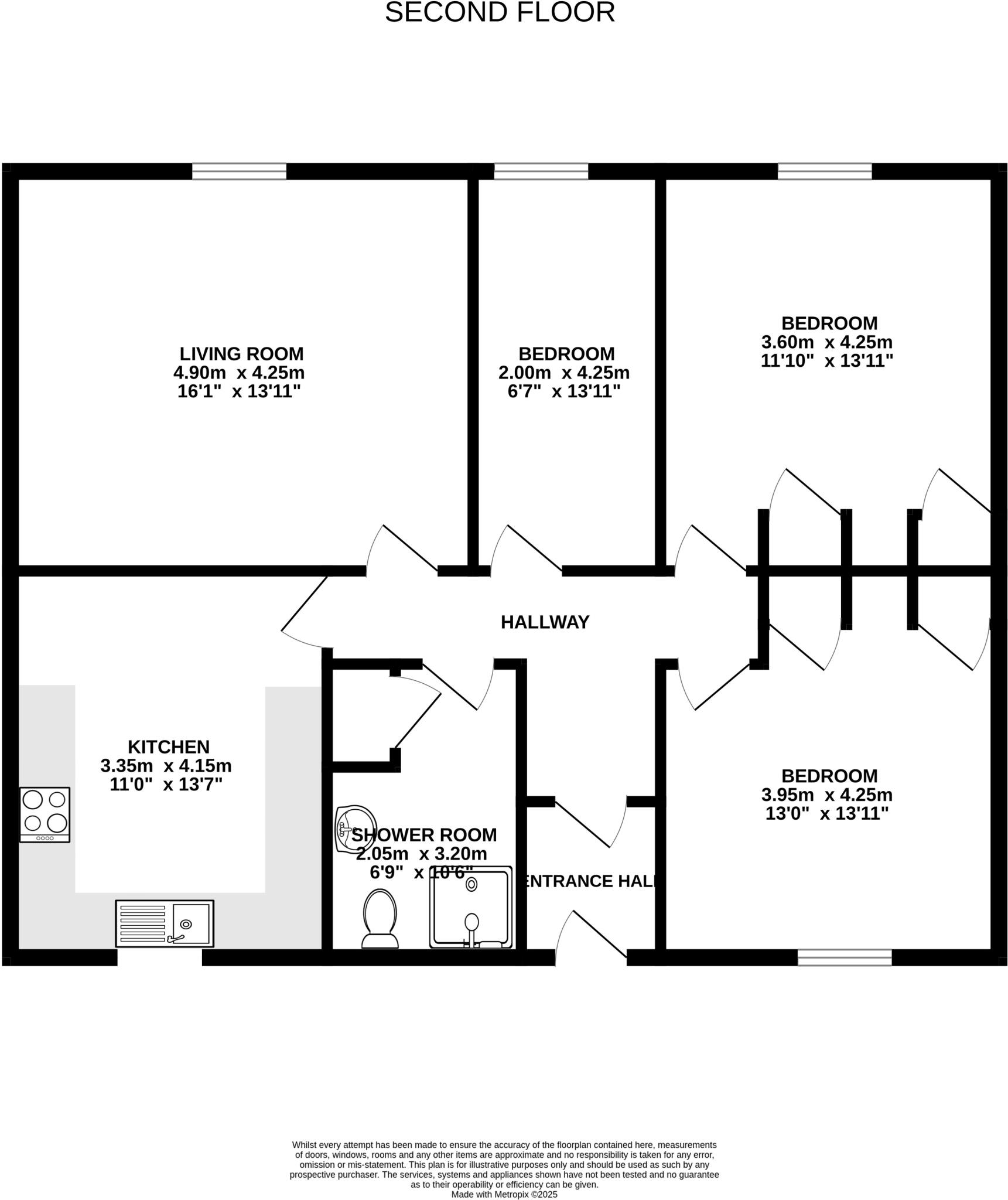
Bright & Spacious 3 Bed second floor flat, shared rear garden. We are delighted to present this bright and spacious second floor flat to the market. Located opposite the Teviotdale Leisure Centre and just a short walk to the town centre and all local services. The accommodation comprises; Entr...
Property Oracle says ..
Therefore, we give this property 6 / 10. *Disclaimer: This is our option and does constitute a recommendation or financial advice. Do your own research. *
- Price
- 8
- Condition
- 6
- Location
- 6
- Land
- 7
- Bedrooms
- 3
- Bathrooms
- 1
- Sqft (est)
- 880.76
The heatmap indicates the level of crime in the area. The color of the heatmap indicates the crime severity and recency.
Metrics Year-on-Year
- Average area value
- 376,133.00 £Increased by 50.19 %
- Est sale value
- 561,924.88 £Increased by 131.16 %
- Average area rental value
- 1,250.00 £/moIncreased by 20.42 %
- Est letting value
- 1,761.52 £/moIncreased by 100.00 %
- Est rental Yield
- 3.99 %Decreased by 19.72 %
- Crime Rate
- 0.00 %
from 250,445.00 £
from 243,089.76 £
from 1,038.00 £/mo
from 880.76 £/mo
from 4.97 %
from 0.00 %
Agent Activity
Jim Hay Estate Agents created the listing.
Images
Nearby Streets
| Name | Average Price | Average Sqft | Distance |
|---|---|---|---|
| Dovemount Place | £ 0 | 0 | 0.00 KM |
| Hunter Terrace | £ 0 | 0 | 0.00 KM |
| West Stewart Place | £ 265,000 | 0 | 0.00 KM |
| East Stewart Place | £ 235,000 | 0 | 0.00 KM |
| Dovecote Mews | £ 130,000 | 0 | 0.00 KM |
Nearby Listings
| Address | Price | Type | Score | Distance |
|---|---|---|---|---|
| 3 Ground Floor, Dovemount Place Hawick, TD9 8AZ | £ 130,000 | BUY | 7 / 10 | 0.00 KM |
| 5/4 , Dovemount Place Hawick, TD9 8AZ | £ 95,000 | BUY | 6 / 10 | 0.00 KM |
| Dovemount Place, Hawick, TD9 | £ 60,000 | BUY | 7 / 10 | 0.02 KM |
| Princes Street, Hawick | £ 80,000 | BUY | 7 / 10 | 0.04 KM |
| Hawick | £ 80,000 | BUY | 7 / 10 | 0.05 KM |