Aston Park Road, Aston, CH5
By The Big Estate Agency
£ 230,000
Reviews
2 out of 5 stars
The Big Estate Agency says ..
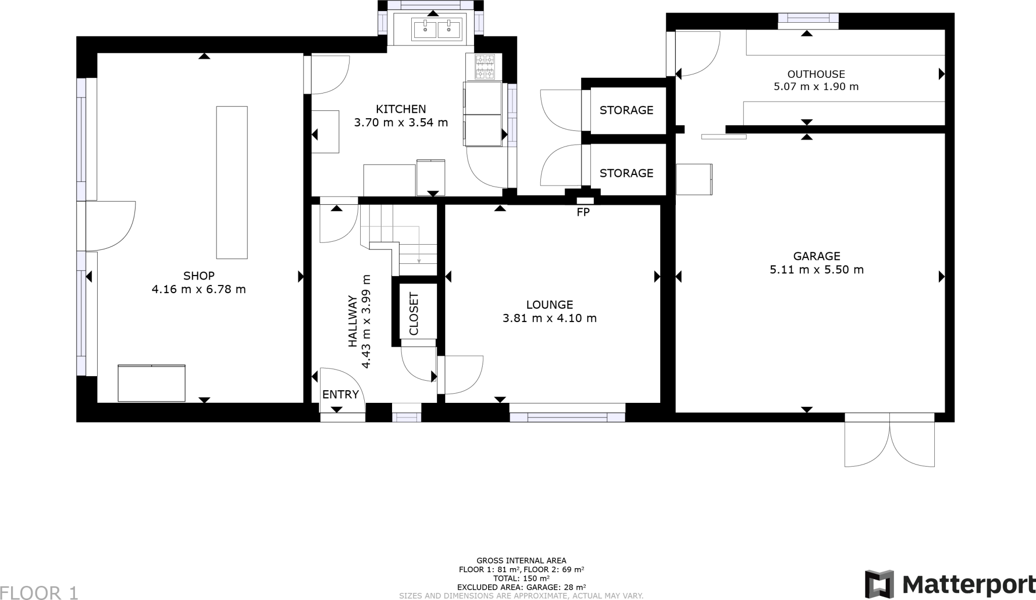
THE BIG ESTATE AGENCY are delighted to present to you this 3 bedroom detached property in ASTON with an integrated COMMERCIAL unit, previously used as a convenience store.
Property Oracle says ..
This property is a 3-bedroom house located in Aston, Flintshire. The property is currently listed for £230,000 and has a total area of 1,614.59 sqft. Based on the provided images, the property appears to be in need of some modernisation. The kitchen and bathrooms are dated and could benefit from an update. The property has a small garden area and is located near several schools and transportation links. The average price per sqft in the area is £392.00, making this property slightly below average in terms of price per sqft. However, the condition of the property should be taken into account when determining its overall value.
Therefore, we give this property 5 / 10. *Disclaimer: This is our option and does constitute a recommendation or financial advice. Do your own research. *
- Price
- 6
- Condition
- 5
- Location
- 7
- Land
- 3
- Bedrooms
- 3
- Bathrooms
- 0
- Sqft (est)
- 1,614.59
The heatmap indicates the level of crime in the area. The color of the heatmap indicates the crime severity and recency.
Metrics Year-on-Year
- Average area value
- 266,389.00 £Decreased by 21.19 %
- Est sale value
- 587,710.76 £Decreased by 6.43 %
- Average area rental value
- 792.00 £/moDecreased by 33.45 %
- Est letting value
- 1,614.59 £/moUnchanged by 0.00 %
- Est rental Yield
- 3.57 %Decreased by 15.40 %
- Crime Rate
- 3.00 %Unchanged by 0.00 %
Agent Activity
The Big Estate Agency created the listing.
Nearby Schools
| Name | Type | Ofsted | Distance |
|---|---|---|---|
| St Ethelwold'S Primary School | Welsh Establishment | 0.20 KM | |
| Penarlag C.P. School | Welsh Establishment | 0.99 KM | |
| Queens Ferry C.P. School | Welsh Establishment | 1.22 KM | |
| Ven. Edward Morgan R.C. Primary School | Welsh Establishment | 1.23 KM | |
| Plas Derwen | Welsh Establishment | 1.25 KM |
Images
Nearby Streets
| Name | Average Price | Average Sqft | Distance |
|---|---|---|---|
| Birchfield Crescent | £ 0 | 0 | 0.00 KM |
| Dodds Court | £ 0 | 0 | 0.00 KM |
| Larch Avenue | £ 0 | 0 | 0.00 KM |
| Beech Road | £ 0 | 0 | 0.00 KM |
| Alder Avenue | £ 0 | 0 | 0.00 KM |
Nearby Transport
| Name | NLC | TLC | Distance |
|---|---|---|---|
| Shotton | 2546 | SHT | 1.36 KM |
| Hawarden | 2428 | HWD | 1.90 KM |
| Hawarden Bridge | 2146 | HWB | 2.12 KM |
| Buckley | 2422 | BCK | 4.51 KM |
| Penyffordd | 2433 | PNF | 6.58 KM |
Nearby Listings
| Address | Price | Type | Score | Distance |
|---|---|---|---|---|
| Aston Park Road, Aston, CH5 | £ 230,000 | BUY | 5 / 10 | 0.00 KM |
| Aston Park Road, Shotton, Deeside | £ 200,000 | BUY | 6 / 10 | 0.10 KM |
| Courtland Drive, Aston Park | £ 230,000 | BUY | 7 / 10 | 0.12 KM |
| Courtland Drive, Aston, Deeside | £ 199,500 | BUY | 7 / 10 | 0.12 KM |
| 12, New Park Road New Park Road, Queensferry, Deeside, Flintshire, CH5 1XD | £ 135,000 | BUY | Unknown | 0.14 KM |
Nearby Properties
| Address | Price | Distance |
|---|---|---|
| 47 Aston Park Road | £ 130,000 | 0.10 KM |
| 19 Aston Park Road | £ 83,000 | 0.10 KM |
| 45 Aston Park Road | £ 139,995 | 0.10 KM |
| 31 Aston Park Road | £ 135,000 | 0.12 KM |
| 19 Courtland Drive | £ 145,000 | 0.12 KM |