Bartholomew Street, Newbury, RG14
By Cricketts Of Berkshire
£ 200,000
Reviews
3 out of 5 stars
Cricketts Of Berkshire says ..
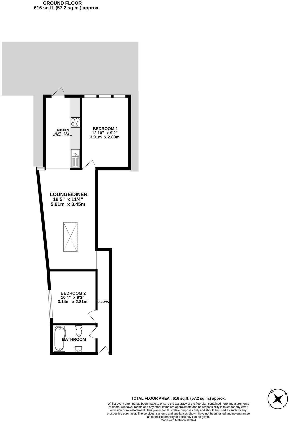
NO ONWARD CHAIN. FREEHOLD. Personal private garden. A spacious two-bedroom property that has been completely renovated with a private garden situated a few moment's walk from Newbury town centre and the train station.
Property Oracle says ..
This 2-bedroom, 1-bathroom property in central Newbury, Berkshire presents a potentially attractive option for buyers. The property’s location is a key strength; its proximity to Newbury train station and a range of local schools (St Nicolas C.E. Junior School, Icollege Alternative Provision, and others within a kilometer) makes it convenient for commuting and families. The photos reveal a modern, recently renovated interior, with a contemporary kitchen and bathroom. The property appears well-maintained and move-in ready. However, the provided plot size of 0.00 sqft suggests a limited outdoor space. The small garden area, while present, is not extensive. The lack of precise details on the surrounding street environment and the absence of price per square foot data for similar properties in the immediate vicinity make a complete valuation challenging. Overall, the property offers a good blend of convenience and modern amenities, but the limited land and lack of detailed comparative pricing data should be considered by prospective buyers.
Therefore, we give this property 6 / 10. *Disclaimer: This is our option and does constitute a recommendation or financial advice. Do your own research. *
- Price
- 7
- Condition
- 8
- Location
- 7
- Land
- 3
- Bedrooms
- 2
- Bathrooms
- 1
- Sqft (est)
- 615.70
The heatmap indicates the level of crime in the area. The color of the heatmap indicates the crime severity and recency.
Metrics Year-on-Year
- Average area value
- 243,889.00 £Decreased by 15.46 %
- Est sale value
- 197,639.70 £Decreased by 5.59 %
- Average area rental value
- 1,333.00 £/moDecreased by 3.62 %
- Est letting value
- 615.70 £/moUnchanged by 0.00 %
- Est rental Yield
- 6.56 %Increased by 14.09 %
- Crime Rate
- 15.00 %Unchanged by 0.00 %
Agent Activity
Cricketts Of Berkshire created the listing.
Nearby Schools
| Name | Type | Ofsted | Distance |
|---|---|---|---|
| St Nicolas C.E. Junior School | Voluntary Aided School | Good | 0.31 KM |
| Icollege Alternative Provision | Pupil Referral Unit | Good | 0.64 KM |
| St John The Evangelist C.E. Nursery And Infant Sch | Voluntary Aided School | Good | 0.85 KM |
| West Family Hub - Newbury | Children's Centre | 0.88 KM | |
| Victoria Park Nursery School & Family Hub | Local Authority Nursery School | Outstanding | 0.88 KM |
Images
Nearby Streets
| Name | Average Price | Average Sqft | Distance |
|---|---|---|---|
| Eight Bells Shopping Arcade | £ 0 | 0 | 0.00 KM |
| Kyftle Court | £ 0 | 0 | 0.00 KM |
| Saint Michael's Road | £ 100,000 | 0 | 0.00 KM |
| St David's Road | £ 0 | 0 | 0.00 KM |
| Echo Walk | £ 0 | 0 | 0.00 KM |
Nearby Transport
| Name | NLC | TLC | Distance |
|---|---|---|---|
| Newbury | 3074 | NBY | 0.44 KM |
| Newbury Racecourse | 3071 | NRC | 2.08 KM |
| Thatcham | 3152 | THA | 9.24 KM |
Nearby Listings
| Address | Price | Type | Score | Distance |
|---|---|---|---|---|
| Bartholomew Street, Newbury, RG14 | £ 200,000 | BUY | 7 / 10 | 0.00 KM |
| Bartholomew Street, Newbury, RG14 | £ 215,000 | BUY | 6 / 10 | 0.01 KM |
| Newbury, Berkshire, RG14 | £ 195,000 | BUY | Unknown | 0.03 KM |
| Craven Road, Newbury, Berkshire, RG14 | £ 325,000 | BUY | 7 / 10 | 0.03 KM |
| Newbury, Berkshire, RG14 | £ 195,000 | BUY | Unknown | 0.03 KM |
Nearby Properties
| Address | Price | Distance |
|---|---|---|
| 32 Craven Road | £ 385,000 | 0.12 KM |
| 2 Craven Road | £ 273,000 | 0.12 KM |
| 23 Craven Road | £ 525,000 | 0.14 KM |
| 1a Craven Road | £ 85,000 | 0.14 KM |
| 21 Craven Road | £ 227,950 | 0.14 KM |