Hunters says ..
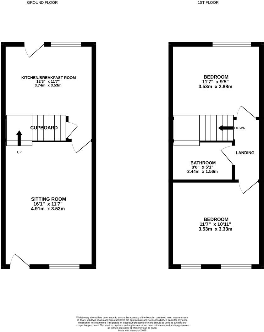
Calling all first time buyers... A spacious two bedroom mid-terrace home, found in the sought after location of Singleton, offering plenty of space for a growing family, with allocated parking, a rear kitchen-diner, as well as garden for the children. You'll find a pathway leading to a ...
Property Oracle says ..
This two-bedroom terraced house in Manorfield, Ashford, presents a viable option for first-time buyers or small families. The property’s condition seems adequate, with a modern feel demonstrated in some of the interior photos. It boasts a decent-sized living area and a kitchen. The garden is modest but functional. The location scores highly due to its proximity to good primary schools and Ashford International, ensuring convenience. However, the absence of a more detailed description and square footage for local comparable properties makes it difficult to provide a definitive opinion on value. More information is needed to fully assess if the asking price of £250,000 reflects current market conditions. The provided photos give a positive first impression, but buyers should conduct a thorough survey to identify any potential maintenance issues.
Therefore, we give this property 5 / 10. *Disclaimer: This is our option and does constitute a recommendation or financial advice. Do your own research. *
- Price
- 7
- Condition
- 6
- Location
- 7
- Land
- 3
- Bedrooms
- 2
- Bathrooms
- 1
- Sqft (est)
- 806.86
The heatmap indicates the level of crime in the area. The color of the heatmap indicates the crime severity and recency.
Metrics Year-on-Year
- Average area value
- 257,097.00 £Decreased by 8.25 %
- Est sale value
- 266,263.80 £Increased by 14.98 %
- Average area rental value
- 956.00 £/moIncreased by 1.92 %
- Est letting value
- 806.86 £/mo
- Est rental Yield
- 4.46 %Increased by 10.95 %
- Crime Rate
- 2.00 %Unchanged by 0.00 %
Agent Activity
Hunters created the listing.
Nearby Schools
| Name | Type | Ofsted | Distance |
|---|---|---|---|
| Great Chart Primary School | Community School | Outstanding | 0.53 KM |
| Beaver Green Primary School | Academy Sponsor Led | Good | 0.68 KM |
| The Wyvern School (Buxford) | Foundation Special School | Good | 0.72 KM |
| The John Wesley Church Of England Methodist Voluntary Aided Primary School | Voluntary Aided School | Good | 0.87 KM |
| The Willow Children'S Centre | Children's Centre | 1.08 KM |
Images
Nearby Streets
| Name | Average Price | Average Sqft | Distance |
|---|---|---|---|
| Honeyfield | £ 0 | 0 | 0.00 KM |
| Summerhill | £ 0 | 0 | 0.00 KM |
| St. Anne's Road | £ 295,000 | 0 | 0.00 KM |
| Great Chart Bypass | £ 0 | 0 | 0.00 KM |
| Rowan Close | £ 0 | 0 | 0.00 KM |
Nearby Transport
| Name | NLC | TLC | Distance |
|---|---|---|---|
| Ashford International | 5004 | AFK | 3.40 KM |
| Ham Street | 5037 | HMT | 7.99 KM |
| Charing (Kent) | 5097 | CHG | 9.78 KM |
Nearby Listings
| Address | Price | Type | Score | Distance |
|---|---|---|---|---|
| Manorfield, Ashford | £ 250,000 | BUY | 5 / 10 | 0.00 KM |
| Manorfield, Singleton, Ashford, TN23 | £ 260,000 | BUY | 6 / 10 | 0.04 KM |
| Manorfield, Ashford, Kent, TN23 | £ 270,000 | BUY | 7 / 10 | 0.04 KM |
| Manorfield, Singleton, Ashford, TN23 | £ 265,000 | BUY | 7 / 10 | 0.04 KM |
| Manorfield, Ashford, Kent, TN23 | £ 180,000 | BUY | 7 / 10 | 0.04 KM |
Nearby Properties
| Address | Price | Distance |
|---|---|---|
| 153 Manorfield | £ 106,500 | 0.04 KM |
| 91 Manorfield | £ 135,000 | 0.04 KM |
| 152 Manorfield | £ 90,000 | 0.04 KM |
| 90 Manorfield | £ 68,000 | 0.04 KM |
| 137 Manorfield | £ 107,000 | 0.04 KM |