Chancellors says ..
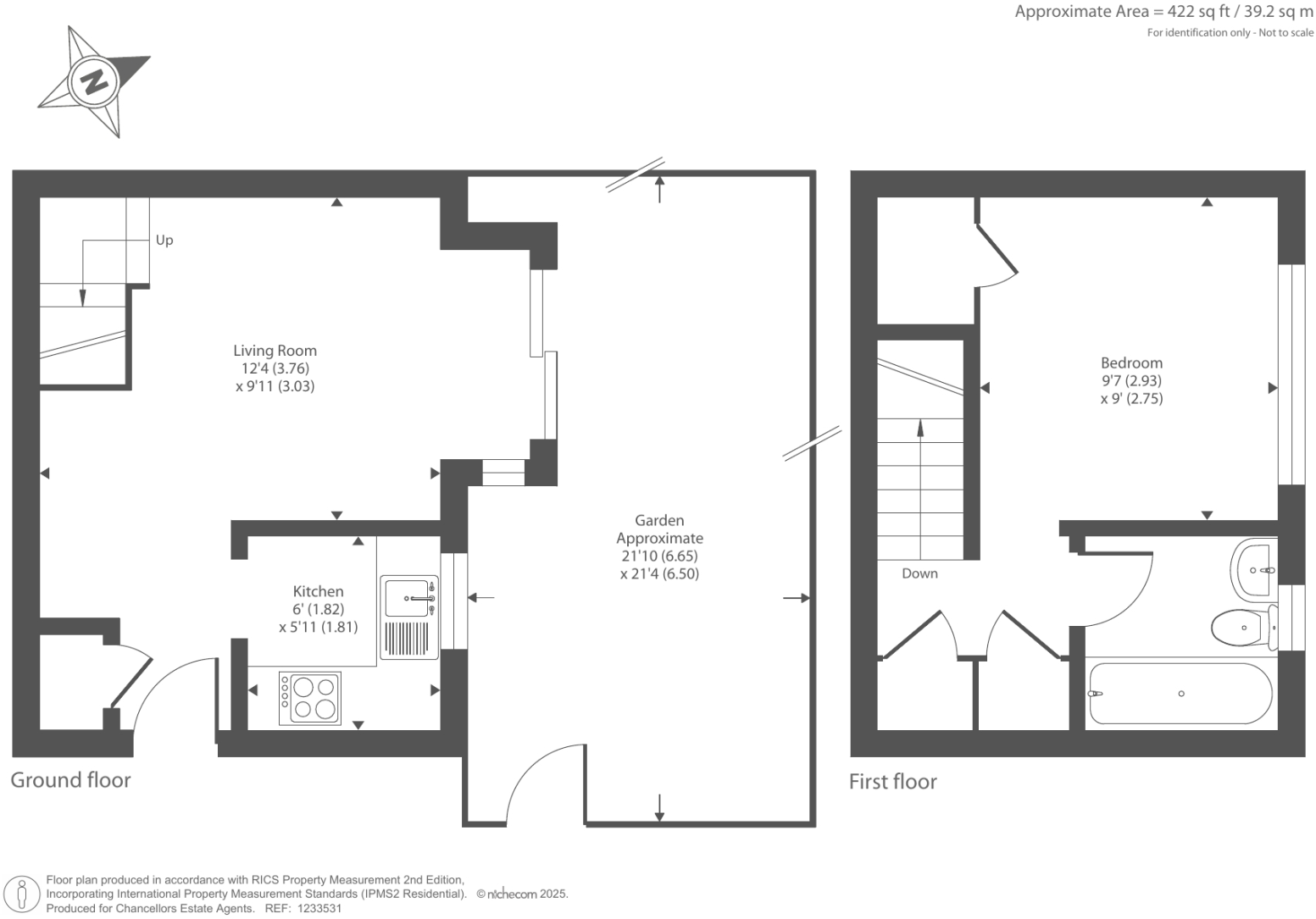
Chancellors are delighted to offer to the open market this very rare opportunity to purchase a Freehold end of terrace one bedroom end terrace home. the property comprises; entrance, living room, kitchen, bathroom, family bathroom, double bedroom and garden space.
Property Oracle says ..
This one-bedroom end-of-terrace house in Banbury, Oxfordshire, presents a mixed bag. Its location offers a blend of convenience and family appeal, with good proximity to schools and the train station. However, the provided images suggest that the property requires some cosmetic work and modernization, particularly in the kitchen and bathroom. The interior is dated and some updating would be needed. The garden space is present but appears small and requires some attention. The house’s asking price falls within the range of similar properties in the immediate area, making it reasonably priced considering its condition. Buyers should factor in potential refurbishment costs which could add significantly to the overall investment. Prospective buyers would do well to carefully consider both potential expenses and the positive aspects of the property’s location and access to amenities.
Therefore, we give this property 5 / 10. *Disclaimer: This is our option and does constitute a recommendation or financial advice. Do your own research. *
- Price
- 7
- Condition
- 5
- Location
- 7
- Land
- 4
- Bedrooms
- 1
- Bathrooms
- 1
The heatmap indicates the level of crime in the area. The color of the heatmap indicates the crime severity and recency.
Metrics Year-on-Year
- Average area value
- 257,215.00 £Decreased by 21.30 %
- Average area rental value
- 1,509.00 £/moIncreased by 0.07 %
- Est rental Yield
- 7.04 %Increased by 27.08 %
- Crime Rate
- 9.00 %Unchanged by 0.00 %
Agent Activity
Chancellors created the listing.
Nearby Schools
| Name | Type | Ofsted | Distance |
|---|---|---|---|
| Hardwick Primary School | Academy Converter | 0.22 KM | |
| Hill View Primary School | Academy Converter | 0.69 KM | |
| William Morris Primary School | Academy Sponsor Led | Outstanding | 1.03 KM |
| North Oxfordshire Academy | Academy Sponsor Led | Good | 1.11 KM |
| Hanwell Fields Community School | Academy Converter | Good | 1.41 KM |
Images
Nearby Streets
| Name | Average Price | Average Sqft | Distance |
|---|---|---|---|
| Morgan Close | £ 313,000 | 0 | 0.00 KM |
| Juniper Close | £ 250,000 | 0 | 0.00 KM |
| Lavender Close | £ 0 | 0 | 0.00 KM |
| Jenkins Road | £ 0 | 0 | 0.00 KM |
| Hana Close | £ 0 | 0 | 0.00 KM |
Nearby Transport
| Name | NLC | TLC | Distance |
|---|---|---|---|
| Banbury | 4502 | BAN | 3.64 KM |
Nearby Listings
| Address | Price | Type | Score | Distance |
|---|---|---|---|---|
| Banbury, Oxfordshire, OX16 | £ 200,000 | BUY | 5 / 10 | 0.00 KM |
| Angus Close, Banbury, Oxfordshire, OX16 | £ 270,000 | BUY | 6 / 10 | 0.02 KM |
| Red Poll Close, Banbury, OX16 | £ 269,995 | BUY | 6 / 10 | 0.06 KM |
| Red Poll Close, Banbury | £ 264,995 | BUY | 7 / 10 | 0.06 KM |
| Red Poll Close, Banbury, Oxfordshire, OX16 | £ 269,995 | BUY | 6 / 10 | 0.06 KM |
Nearby Properties
| Address | Price | Distance |
|---|---|---|
| 15 Angus Close | £ 177,000 | 0.01 KM |
| 19 Angus Close | £ 181,500 | 0.01 KM |
| 3 Angus Close | £ 185,000 | 0.01 KM |
| 9 Angus Close | £ 144,000 | 0.01 KM |
| 17 Angus Close | £ 185,000 | 0.01 KM |