Lundy Walk, Hailsham
Stevens & Carter logo

Lundy Walk, Hailsham

By Stevens & Carter

£ 300,000

Reviews

3 out of 5 stars

Stevens & Carter says ..

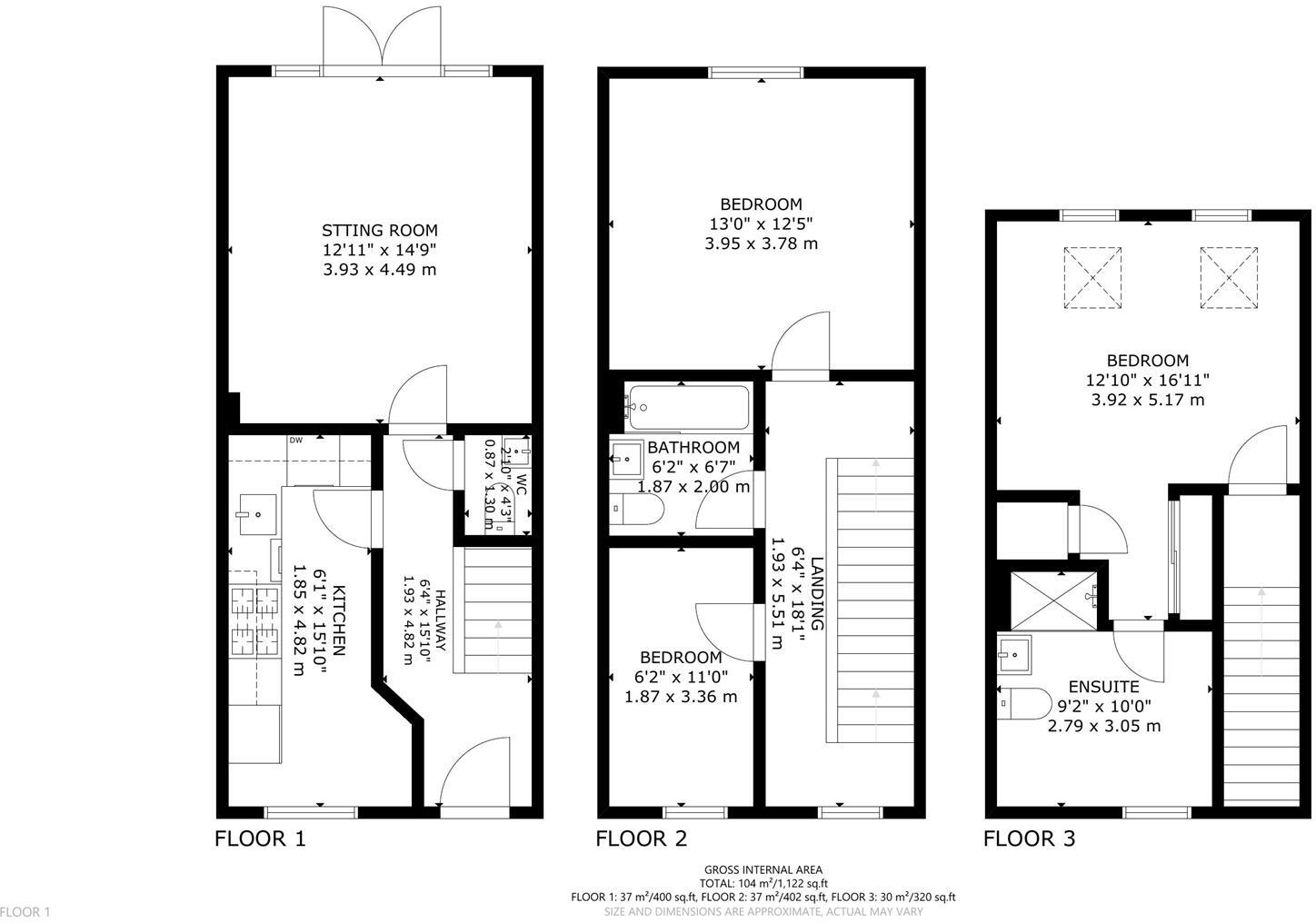
This beautifully presented townhouse has been tastefully upgraded by the current owners and now offers a stylish, modern feel throughout, while still keeping that cosy and welcoming vibe. Step inside and you’ll find a bright entrance hallway, a smart kitchen with room for a breakfast tab...

Property Oracle says ..

Therefore, we give this property 7 / 10. *Disclaimer: This is our option and does constitute a recommendation or financial advice. Do your own research. *

Price
8
Condition
8
Location
7
Land
6
Bedrooms
3
Bathrooms
2
Sqft (est)
1,090.92

The heatmap indicates the level of crime in the area. The color of the heatmap indicates the crime severity and recency.

Metrics Year-on-Year

Average area value
1,332,494.00 £
Increased by 19.68 %
from 1,113,335.00 £
Est sale value
1,522,924.32 £
Increased by 164.90 %
from 574,914.84 £
Average area rental value
1,800.00 £/mo
Decreased by 54.11 %
from 3,922.00 £/mo
Est letting value
1,090.92 £/mo
Unchanged by 0.00 %
from 1,090.92 £/mo
Est rental Yield
1.62 %
Decreased by 61.70 %
from 4.23 %
Crime Rate
13.00 %
Unchanged by 0.00 %
from 13.00 %

Agent Activity

  • Stevens & Carter created the listing.

Nearby Schools

NameTypeOfstedDistance
Hellingly Community Primary SchoolCommunity SchoolGood1.08 KM
Grovelands Community Primary SchoolFoundation SchoolGood1.09 KM
Hawkes Farm AcademyAcademy Sponsor LedGood1.40 KM
Hailsham Community CollegeAcademy ConverterGood1.93 KM
The Ropemakers' AcademyFree Schools Special2.33 KM

Images

IMG_4122.jpg IMG_4125.jpg IMG_4128.jpg IMG_4134.jpg IMG_4149.jpg IMG_4150.jpg IMG_4153.jpg IMG_4154.jpg IMG_4155.jpg IMG_4158.jpg IMG_4159.jpg IMG_4160.jpg IMG_4156.jpg IMG_4104.jpg IMG_4086.jpg IMG_4089.jpg IMG_4152.jpg IMG_4107.jpg IMG_4098.jpg IMG_4131.jpg IMG_4146.jpg IMG_4110.jpg IMG_4137.jpg IMG_4092.jpg IMG_4101.jpg IMG_4095.jpg IMG_4119.jpg

Nearby Streets

NameAverage PriceAverage SqftDistance
Firecrest Avenue £ 000.00 KM
Redpoll Road £ 400,00000.00 KM
Maple Grove £ 540,00000.00 KM
Yew Tree Crescent £ 279,37500.00 KM
Hawkstown Gardens £ 373,75000.00 KM

Nearby Transport

NameNLCTLCDistance
Polegate5455PLG6.23 KM
Berwick (Sussex)5323BRK9.37 KM
Hampden Park (Sussex)5450HMD9.88 KM

Nearby Listings

AddressPriceTypeScoreDistance
Lundy Walk, Hailsham £ 300,000BUY7 / 100.00 KM
Lundy Walk, Hailsham £ 335,000BUY6 / 100.06 KM
Solent Crescent, Hailsham £ 475,000BUY7 / 100.09 KM
Solent Crescent, Hailsham, BN27 £ 515,000BUY8 / 100.12 KM
Cuckmere Close, Hailsham £ 250,000BUY7 / 100.24 KM

Nearby Properties

AddressPriceDistance
4 Lundy Walk £ 337,5000.06 KM
16 Lundy Walk £ 268,5000.06 KM
58 Lundy Walk £ 237,5000.06 KM
40 Lundy Walk £ 240,0000.06 KM
2 Lundy Walk £ 185,0000.06 KM