Tegid Drive, New Broughton, Wrexham
By Molyneux
£ 270,000
Reviews
4 out of 5 stars
Molyneux says ..
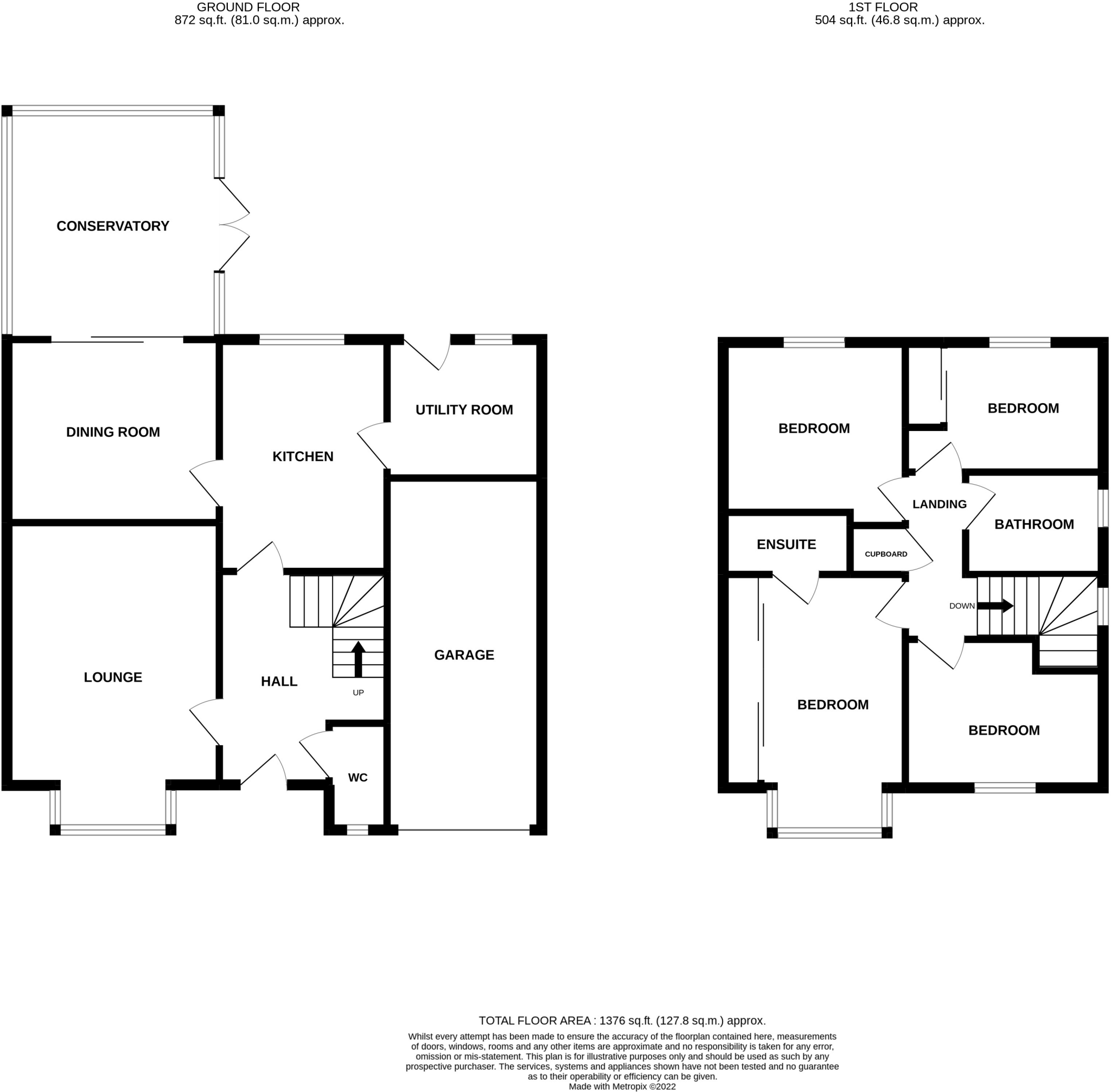
Situated on a popular residential development in the village of New Broughton is this impressive 4 bedroom detached family home which occupies a corner position and has well presented and generous size accommodation to briefly comprise entrance hall, cloakroom, lounge, dining room, conservatory, ...
Property Oracle says ..
The property is a 4-bedroom detached house located in a residential area with convenient access to public transportation and nearby schools. The property appears to be in good condition, with modern interiors and a well-maintained garden. The listed price seems reasonable, potentially slightly below average for the area, considering the property size and features.
Therefore, we give this property 8 / 10. *Disclaimer: This is our option and does constitute a recommendation or financial advice. Do your own research. *
- Price
- 8
- Condition
- 9
- Location
- 8
- Land
- 7
- Bedrooms
- 4
- Bathrooms
- 0
- Sqft (est)
- 1,920.00
- Lot (est)
- 1,376.00
The heatmap indicates the level of crime in the area. The color of the heatmap indicates the crime severity and recency.
Metrics Year-on-Year
- Average area value
- 502,500.00 £Increased by 40.73 %
- Est sale value
- 864,000.00 £Increased by 89.08 %
- Average area rental value
- 961.00 £/moDecreased by 1.13 %
- Est letting value
- 0.00 £/mo
- Est rental Yield
- 2.29 %Decreased by 29.97 %
- Crime Rate
- 7.00 %Unchanged by 0.00 %
Agent Activity
Molyneux marked this listing as sold.
Molyneux created the listing.
Nearby Schools
| Name | Type | Ofsted | Distance |
|---|---|---|---|
| Ysgol Penrhyn New Broughton Primary | Welsh Establishment | 0.11 KM | |
| Brynteg County School | Welsh Establishment | 1.06 KM | |
| Tanyfron C.P. School | Welsh Establishment | 2.02 KM | |
| Ysgol Heulfan | Welsh Establishment | 2.15 KM | |
| Ysgol Bryn Alyn | Welsh Establishment | 2.19 KM |
Images
Nearby Streets
| Name | Average Price | Average Sqft | Distance |
|---|---|---|---|
| Cherry Field | £ 180,000 | 0 | 0.00 KM |
| Coronation Road | £ 0 | 0 | 0.00 KM |
| Arfryn | £ 0 | 0 | 0.00 KM |
| Old Wood | £ 0 | 0 | 0.00 KM |
| Dergoed | £ 0 | 0 | 0.00 KM |
Nearby Transport
| Name | NLC | TLC | Distance |
|---|---|---|---|
| Gwersyllt | 4300 | GWE | 2.34 KM |
| Wrexham General | 4487 | WRX | 3.35 KM |
| Wrexham Central | 4486 | WXC | 3.83 KM |
| Cefn-Y-Bedd | 2425 | CYB | 4.66 KM |
| Caergwrle | 2536 | CGW | 5.67 KM |
Nearby Listings
| Address | Price | Type | Score | Distance |
|---|---|---|---|---|
| Tegid Drive, New Broughton, Wrexham | £ 270,000 | BUY | 8 / 10 | 0.00 KM |
| Tegid Drive, New Broughton, Wrexham | £ 250,000 | BUY | 7 / 10 | 0.01 KM |
| Tegid Drive, New Broughton, Wrexham | £ 220,000 | BUY | 6 / 10 | 0.01 KM |
| Off Southsea Road, New Broughton | £ 635,000 | BUY | 7 / 10 | 0.07 KM |
| Jasmine Court, New Broughton, Wrexham | £ 175,000 | BUY | 6 / 10 | 0.16 KM |
Nearby Properties
| Address | Price | Distance |
|---|---|---|
| 36 Tegid Drive | £ 114,450 | 0.00 KM |
| 32 Tegid Drive | £ 111,450 | 0.00 KM |
| 22 Tegid Drive | £ 163,450 | 0.00 KM |
| 44 Tegid Drive | £ 121,450 | 0.00 KM |
| 50 Tegid Drive | £ 168,100 | 0.00 KM |