Yopa says ..
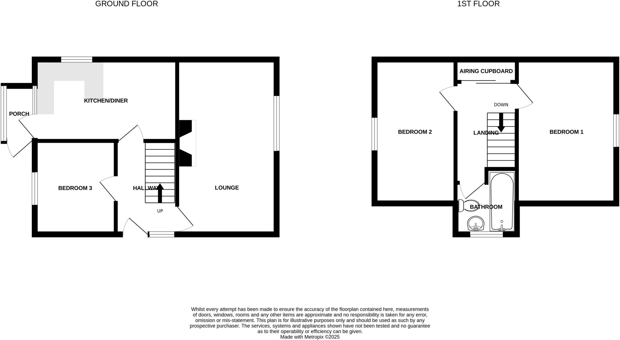
Yopa are pleased to present to the sales market with no onward chain this detached three bedroom property situated in the popular residential area of Dunvant, Swansea. Conveniently located for the M4 Motorway, Swansea City Centre, Hospital, Schools, Great Transport Links, Shops, Pubs & Restaurants.
Property Oracle says ..
Therefore, we give this property 6 / 10. *Disclaimer: This is our option and does constitute a recommendation or financial advice. Do your own research. *
- Price
- 7
- Condition
- 4
- Location
- 7
- Land
- 7
- Bedrooms
- 3
- Bathrooms
- 1
- Sqft (est)
- 853.00
The heatmap indicates the level of crime in the area. The color of the heatmap indicates the crime severity and recency.
Metrics Year-on-Year
- Average area value
- 205,714.00 £Decreased by 23.67 %
- Est sale value
- 240,546.00 £Decreased by 8.14 %
- Average area rental value
- 865.00 £/moDecreased by 7.49 %
- Est letting value
- 853.00 £/moUnchanged by 0.00 %
- Est rental Yield
- 5.05 %Increased by 21.39 %
- Crime Rate
- 5.00 %Unchanged by 0.00 %
from 269,519.00 £
from 261,871.00 £
from 935.00 £/mo
from 853.00 £/mo
from 4.16 %
from 5.00 %
Agent Activity
Yopa created the listing.
Nearby Schools
| Name | Type | Ofsted | Distance |
|---|---|---|---|
| Dunvant Primary | Welsh Establishment | 0.49 KM | |
| Hendrefoilan Primary School | Welsh Establishment | 1.18 KM | |
| Waunarlwydd Primary School | Welsh Establishment | 1.45 KM | |
| Cila Primary School | Welsh Establishment | 1.66 KM | |
| Ysgol Gynradd Gymraeg Y Login Fach | Welsh Establishment | 2.08 KM |
Images
Nearby Streets
| Name | Average Price | Average Sqft | Distance |
|---|---|---|---|
| Clyne Cycle Path | £ 154,500 | 0 | 0.00 KM |
| Lime Grove | £ 0 | 0 | 0.00 KM |
| Voylart Close | £ 0 | 0 | 0.00 KM |
| Brithwen Road (Lane) | £ 0 | 0 | 0.00 KM |
| St. Govan's Place | £ 179,950 | 0 | 0.00 KM |
Nearby Transport
| Name | NLC | TLC | Distance |
|---|---|---|---|
| Gowerton | 4131 | GWN | 2.74 KM |
| Swansea | 4222 | SWA | 9.19 KM |
| Llangennech | 4138 | LLH | 9.33 KM |
| Bynea | 4124 | BYE | 9.62 KM |
Nearby Listings
| Address | Price | Type | Score | Distance |
|---|---|---|---|---|
| Maes Yr Efail, Swansea, SA2 | £ 250,000 | BUY | 6 / 10 | 0.00 KM |
| Yr Elain, Dunvant, Swansea, SA2 7PT | £ 260,000 | BUY | 7 / 10 | 0.09 KM |
| Gwelfor, Dunvant, Swansea, SA2 7QJ | £ 275,000 | BUY | Unknown | 0.12 KM |
| Gwelfor, Dunvant, Swansea, SA2 | £ 320,000 | BUY | 8 / 10 | 0.20 KM |
| Hendre, Dunvant, Swansea, SA2 | £ 220,000 | BUY | 7 / 10 | 0.28 KM |
Nearby Properties
| Address | Price | Distance |
|---|---|---|
| 28 Maes Yr Efail | £ 285,000 | 0.01 KM |
| 23 Maes Yr Efail | £ 183,000 | 0.01 KM |
| 21 Maes Yr Efail | £ 174,000 | 0.01 KM |
| 17 Maes Yr Efail | £ 137,000 | 0.01 KM |
| 11 Maes Yr Efail | £ 171,000 | 0.01 KM |