Winter Gardens Way, Banbury - Garden / 2 Garages
RO

Winter Gardens Way, Banbury - Garden / 2 Garages

By Round & Jackson

£ 275,000

Reviews

4 out of 5 stars

Round & Jackson says ..

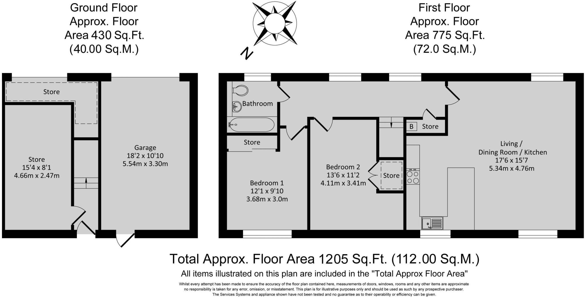
A large two-bedroom coach house with a double garage and driveway parking located on the popular Hanwell Fields development, close to local schooling and amenities.

Property Oracle says ..

The property is a modern link detached house in a good location close to schools and transport links. The property is well maintained and benefits from a good sized garden and two garages. The asking price is reasonable when compared to similar properties in the area.

Therefore, we give this property 8 / 10. *Disclaimer: This is our option and does constitute a recommendation or financial advice. Do your own research. *

Price
8
Condition
9
Location
0
Land
7
Bedrooms
2
Bathrooms
1
Sqft (est)
1,054.00
Lot (est)
1,205.00

The heatmap indicates the level of crime in the area. The color of the heatmap indicates the crime severity and recency.

Metrics Year-on-Year

Average area value
257,215.00 £
Decreased by 21.30 %
from 326,849.00 £
Est sale value
386,818.00 £
Increased by 11.89 %
from 345,712.00 £
Average area rental value
1,509.00 £/mo
Increased by 0.07 %
from 1,508.00 £/mo
Est letting value
2,108.00 £/mo
Increased by 100.00 %
from 1,054.00 £/mo
Est rental Yield
7.04 %
Increased by 27.08 %
from 5.54 %
Crime Rate
6.00 %
Unchanged by 0.00 %
from 6.00 %

Agent Activity

  • Round & Jackson created the listing.

Nearby Schools

NameTypeOfstedDistance
Hardwick Primary SchoolAcademy Converter0.67 KM
Hill View Primary SchoolAcademy Converter1.26 KM
North Oxfordshire AcademyAcademy Sponsor LedGood1.31 KM
Hanwell Fields Community SchoolAcademy ConverterGood1.41 KM
William Morris Primary SchoolAcademy Sponsor LedOutstanding1.50 KM

Images

Photo 1 Photo 5 Photo 13 Photo 16 Photo 15 Photo 17 Photo 14 Photo 20 Photo 27 Photo 25 Photo 18 Photo 19 Photo 30 Photo 21 Photo 8 Photo 3 Photo 29 Photo 9 Photo 12 Photo 11 Photo 22 Photo 23 Photo 31 Photo 4 Photo 10 Photo 6 Photo 24 Photo 26 Photo 28 Photo 24 Photo 25 Photo 28 Photo 26 Photo 29 Photo 30 Photo 27

Nearby Streets

NameAverage PriceAverage SqftDistance
Hana Close £ 000.00 KM
Jenkins Road £ 000.00 KM
Morgan Close £ 313,00000.00 KM
Buckhurst Close £ 000.00 KM
Bannister Drive £ 562,50000.00 KM

Nearby Transport

NameNLCTLCDistance
Banbury4502BAN3.99 KM

Nearby Listings

AddressPriceTypeScoreDistance
Winter Gardens Way, Banbury - Garden / 2 Garages £ 275,000BUY8 / 100.00 KM
Winter Gardens Way, Banbury £ 379,000BUY6 / 100.00 KM
31, Winter Gardens Way, Banbury £ 235,000BUY6 / 100.01 KM
Winter Gardens Way, Banbury £ 250,000BUY6 / 100.10 KM
Winter Gardens Way, Banbury £ 350,000BUY6 / 100.10 KM

Nearby Properties

AddressPriceDistance
45 Winter Gardens Way £ 205,0000.00 KM
19 Winter Gardens Way £ 318,5000.00 KM
53 Winter Gardens Way £ 207,0000.00 KM
41 Winter Gardens Way £ 145,0000.00 KM
49 Winter Gardens Way £ 149,9500.00 KM