Westlands, Bransgore, Christchurch, Dorset, BH23
SL

Westlands, Bransgore, Christchurch, Dorset, BH23

By Slades Estate Agents

£ 369,950

Reviews

3 out of 5 stars

Slades Estate Agents says ..

AN ATTRACTIVE, WELL PRESENTED, CHESHIRE-ROBBINS DESIGNED, TWO/THREE BEDROOMED LOW MAINTENANCE TERRACED HOME, WITH A SOUTH FACING GARDEN, SITUATED IN A HIGHLY REGARDED VILLAGE LOCATION.

Property Oracle says ..

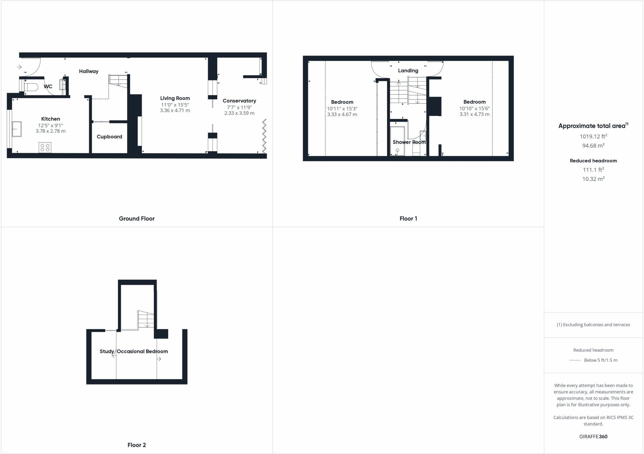
This two-bedroom terraced house in Bransgore, part of the New Forest, is presented as an attractive and well-maintained property. The property benefits from a relatively modern kitchen and a contemporary bathroom. There is also a good-sized conservatory, expanding the living space and providing access to the garden. The location within Bransgore suggests convenient access to local amenities, including schools and transport links to larger towns, although specific proximity details are missing. The provided images reveal a well-kept home with features likely to appeal to families or those seeking a comfortable and manageable space. The bedrooms appear to be on an upper floor. The property also boasts a useful carport which is visible from the photographs. However, additional information on property size (precise sqft) for comparable properties in the area is needed to accurately assess the value of the property. The absence of precise plot size data and limited data on nearby property sales prevents a precise evaluation. Overall, the property presents a balanced profile of features and location, making it a potentially attractive option for buyers in the Bransgore market, although additional property details are needed to ascertain the overall value of this property.

Therefore, we give this property 6 / 10. *Disclaimer: This is our option and does constitute a recommendation or financial advice. Do your own research. *

Price
7
Condition
7
Location
7
Land
4
Bedrooms
2
Bathrooms
1
Sqft (est)
1,019.13

The heatmap indicates the level of crime in the area. The color of the heatmap indicates the crime severity and recency.

Metrics Year-on-Year

Average area value
471,111.00 £
Increased by 12.11 %
from 420,238.00 £
Est sale value
549,311.07 £
Increased by 34.75 %
from 407,652.00 £
Average area rental value
1,283.00 £/mo
Decreased by 19.91 %
from 1,602.00 £/mo
Est letting value
1,019.13 £/mo
Unchanged by 0.00 %
from 1,019.13 £/mo
Est rental Yield
3.27 %
Decreased by 28.45 %
from 4.57 %
Crime Rate
12.00 %
Unchanged by 0.00 %
from 12.00 %

Agent Activity

  • Slades Estate Agents created the listing.

Nearby Schools

NameTypeOfstedDistance
Bransgore Church Of England Primary SchoolAcademy Converter1.43 KM
The Fortune Centre Of Riding TherapySpecial Post 16 InstitutionGood2.82 KM
Sopley Primary SchoolCommunity SchoolGood3.25 KM
Burton Church Of England Primary SchoolVoluntary Controlled SchoolGood3.78 KM
St Joseph'S Catholic Primary School, ChristchurchVoluntary Aided SchoolGood3.93 KM

Images

Picture No. 25 Picture No. 01 Picture No. 12 Picture No. 17 Picture No. 11 Picture No. 06 Picture No. 08 Picture No. 22 Picture No. 20 Picture No. 04 Picture No. 14 Picture No. 03 Picture No. 02 Picture No. 15 Picture No. 10 Picture No. 09 Picture No. 07 Picture No. 16 Picture No. 24 Picture No. 05 Picture No. 41 Picture No. 29 Picture No. 31 Picture No. 32 Picture No. 34 Picture No. 33 Picture No. 36 Picture No. 38 Picture No. 30 Picture No. 37 Picture No. 40

Nearby Streets

NameAverage PriceAverage SqftDistance
Benson Close £ 000.00 KM

Nearby Transport

NameNLCTLCDistance
Hinton Admiral5880HNA4.33 KM
Christchurch5879CHR6.50 KM
New Milton5881NWM9.75 KM

Nearby Listings

AddressPriceTypeScoreDistance
Westlands, Bransgore, Christchurch, Dorset, BH23 £ 385,000BUY6 / 100.00 KM
Westlands, Bransgore, Christchurch, Dorset, BH23 £ 369,950BUY6 / 100.00 KM
Westlands Court, Bransgore, Christchurch, BH23 £ 215,000BUY5 / 100.00 KM
Westlands, Bransgore, Christchurch, BH23 £ 400,000BUY7 / 100.00 KM
Westlands, Bransgore, Christchurch, Dorset, BH23 £ 350,000BUY6 / 100.03 KM

Nearby Properties

AddressPriceDistance
3 Westlands £ 285,0000.01 KM
14 Westlands £ 248,0000.01 KM
47 Westlands £ 289,9500.01 KM
25 Westlands £ 160,0000.01 KM
17 Westlands £ 178,0000.01 KM