Joseph Scott says ..
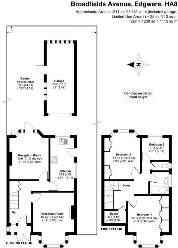
Joseph Scott presents a pristine Chain-Free Semi-Detached house with 3 Bedrooms on a quiet road with close transport links, schools, and ample parking space as well as a small garage.The ground floor comprises a spacious hallway which leads into a Living room, Kitchen and Dining room which look...
Property Oracle says ..
This three-bedroom semi-detached house in Edgware, Barnet is listed at £675,000. The property benefits from a good-sized garden and off-street parking. The interior appears to be in need of some modernisation, with the kitchen and bathroom showing their age. However, the house has good bones and is located in a desirable area with good schools and transport links nearby. The average house price in the area is £638,158, and the average price per square foot is £514. This property is slightly above average in terms of price per sqft, but considering its size and location, the asking price seems reasonable.
Therefore, we give this property 7 / 10. *Disclaimer: This is our option and does constitute a recommendation or financial advice. Do your own research. *
- Price
- 7
- Condition
- 6
- Location
- 8
- Land
- 7
- Bedrooms
- 3
- Bathrooms
- 1
- Sqft (est)
- 1,159.00
- Lot (est)
- 1,239.00
The heatmap indicates the level of crime in the area. The color of the heatmap indicates the crime severity and recency.
Metrics Year-on-Year
- Average area value
- 523,881.00 £Decreased by 13.55 %
- Est sale value
- 640,927.00 £Increased by 12.86 %
- Average area rental value
- 1,887.00 £/moDecreased by 11.95 %
- Est letting value
- 1,159.00 £/moUnchanged by 0.00 %
- Est rental Yield
- 4.32 %Increased by 1.89 %
- Crime Rate
- 6.00 %Unchanged by 0.00 %
Agent Activity
Joseph Scott marked this listing as sold.
Joseph Scott created the listing.
Nearby Schools
| Name | Type | Ofsted | Distance |
|---|---|---|---|
| Rosh Pinah Additional Resource Provision | Other Independent Special School | 0.19 KM | |
| Rosh Pinah Primary School | Voluntary Aided School | Good | 0.21 KM |
| Broadfields Primary School | Academy Converter | Good | 0.25 KM |
| Holland House School | Other Independent School | 0.67 KM | |
| Beit Shvidler Primary School | Voluntary Aided School | Good | 1.09 KM |
Images
Nearby Streets
| Name | Average Price | Average Sqft | Distance |
|---|---|---|---|
| Clay Lane | £ 0 | 0 | 0.00 KM |
| Kenilworth Road | £ 595,000 | 0 | 0.00 KM |
| Hurstmere Court | £ 900,000 | 0 | 0.00 KM |
| Mowbray Parade | £ 199,950 | 0 | 0.00 KM |
| Crossgate | £ 0 | 0 | 0.00 KM |
Nearby Transport
| Name | NLC | TLC | Distance |
|---|---|---|---|
| Elstree And Borehamwood | 1542 | ELS | 2.94 KM |
| Mill Hill Broadway | 1527 | MIL | 3.04 KM |
| Hendon | 1522 | HEN | 6.49 KM |
| Kenton | 1399 | KNT | 7.10 KM |
| South Kenton | 1453 | SOK | 7.54 KM |
Nearby Listings
| Address | Price | Type | Score | Distance |
|---|---|---|---|---|
| Broadfields Avenue, Edgware, HA8 | £ 875,000 | BUY | 8 / 10 | 0.01 KM |
| Broadfields Avenue, Edgware | £ 725,000 | BUY | Unknown | 0.02 KM |
| Broadfields Avenue, Edgware | £ 730,000 | BUY | 7 / 10 | 0.05 KM |
| Broadfields Avenue, Edgware, HA8 | £ 750,000 | BUY | Unknown | 0.05 KM |
| Glendevon Close, Edgware | £ 750,000 | BUY | 6 / 10 | 0.08 KM |
Nearby Properties
| Address | Price | Distance |
|---|---|---|
| 176 Broadfields Avenue | £ 550,000 | 0.01 KM |
| 166 Broadfields Avenue | £ 487,000 | 0.01 KM |
| 174 Broadfields Avenue | £ 415,500 | 0.01 KM |
| 156 Broadfields Avenue | £ 425,000 | 0.01 KM |
| 162 Broadfields Avenue | £ 830,000 | 0.01 KM |