WI
Great North Road, Barnet, Hertfordshire, EN5
By Winkworth
£ 625,000
Reviews
3 out of 5 stars
Winkworth says ..
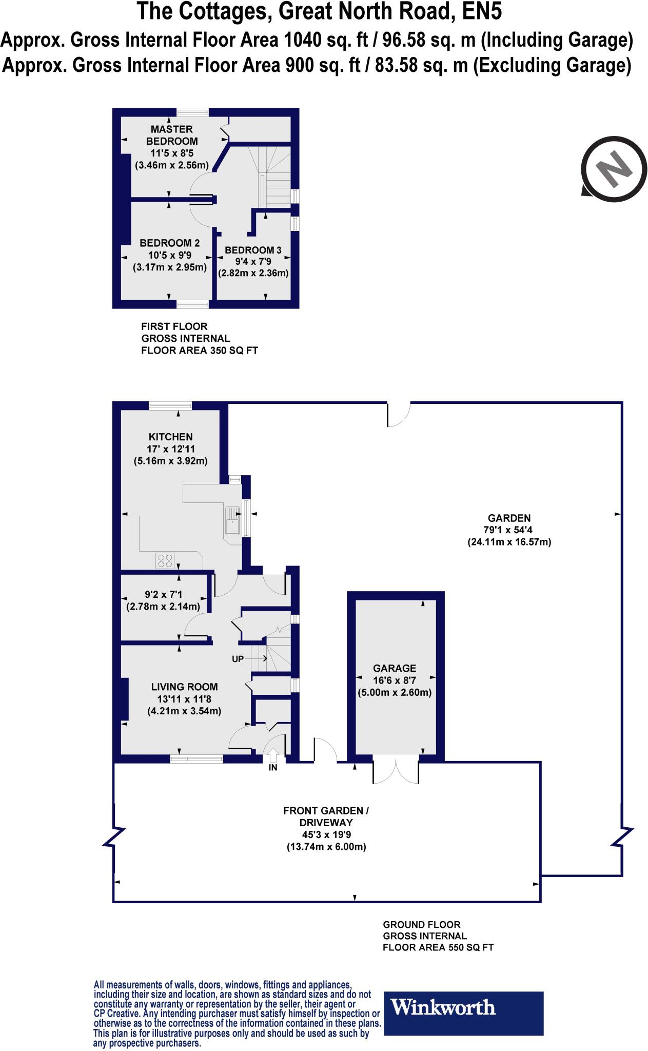
An early Victorian (1852) semi detached three bedroom family house backing directly on to farmland. The accommodation is arranged over the ground and first floors and includes an open plan modern fitted kitchen which opens to a breakfast room with extensive views at the rear, a separate front rec...
Property Oracle says ..
Therefore, we give this property 7 / 10. *Disclaimer: This is our option and does constitute a recommendation or financial advice. Do your own research. *
- Price
- 7
- Condition
- 6
- Location
- 8
- Land
- 7
- Bedrooms
- 3
- Bathrooms
- 1
The heatmap indicates the level of crime in the area. The color of the heatmap indicates the crime severity and recency.
Metrics Year-on-Year
- Average area value
- 677,122.00 £Decreased by 28.61 %
- Average area rental value
- 5,020.00 £/moIncreased by 76.26 %
- Est rental Yield
- 8.90 %Increased by 147.22 %
- Crime Rate
- 4.00 %Unchanged by 0.00 %
from 948,474.00 £
from 2,848.00 £/mo
from 3.60 %
from 4.00 %
Agent Activity
Winkworth created the listing.
Nearby Schools
| Name | Type | Ofsted | Distance |
|---|---|---|---|
| Susi Earnshaw Theatre School | Other Independent School | 0.70 KM | |
| Barnet And Southgate College | Further Education | Requires improvement | 0.77 KM |
| Queen Elizabeth'S Girls' School | Academy Converter | Good | 0.94 KM |
| Monken Hadley Cofe Primary School | Voluntary Aided School | Good | 1.11 KM |
| Foulds School | Community School | Good | 1.15 KM |
Images
Nearby Streets
| Name | Average Price | Average Sqft | Distance |
|---|---|---|---|
| Warwick Gardens | £ 750,000 | 0 | 0.00 KM |
| Hermes Close | £ 0 | 0 | 0.00 KM |
| Underhill | £ 325,000 | 0 | 0.00 KM |
| Vincent Close | £ 0 | 0 | 0.00 KM |
| Finch Close | £ 0 | 0 | 0.00 KM |
Nearby Transport
| Name | NLC | TLC | Distance |
|---|---|---|---|
| Hadley Wood | 6075 | HDW | 2.84 KM |
| New Barnet | 6018 | NBA | 3.25 KM |
| Potters Bar | 6022 | PBR | 4.26 KM |
| Oakleigh Park | 6020 | OKL | 4.48 KM |
| Brookmans Park | 6074 | BPK | 6.87 KM |
Nearby Listings
| Address | Price | Type | Score | Distance |
|---|---|---|---|---|
| Great North Road, Barnet, Hertfordshire, EN5 | £ 625,000 | BUY | 7 / 10 | 0.00 KM |
| Gladsmuir Road, Barnet | £ 1,750,000 | BUY | 7 / 10 | 0.17 KM |
| Hadley Green West, Barnet, EN5 | £ 3,250,000 | BUY | 7 / 10 | 0.18 KM |
| Hadley Green West, Barnet, EN5 | £ 3,750,000 | BUY | 9 / 10 | 0.19 KM |
| Hadley Ridge, Barnet | £ 450,000 | BUY | Unknown | 0.22 KM |
Nearby Properties
| Address | Price | Distance |
|---|---|---|
| Monken Cottage | £ 935,000 | 0.15 KM |
| The Old Cottage | £ 990,000 | 0.15 KM |
| The Elms | £ 1,999,999 | 0.15 KM |
| Grandon | £ 4,665,000 | 0.15 KM |
| 19 Hadley Ridge | £ 312,000 | 0.22 KM |