Barttelot Road, Horsham
By Eltons Estate Agents Ltd
£ 375,000
Reviews
3 out of 5 stars
Eltons Estate Agents Ltd says ..
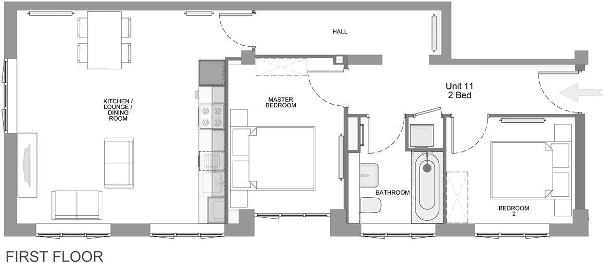
Eltons Estate Agents are delighted to present Bailey House. A Stunning collection of One and Two Bedroom Apartments located in the heart of Horsham, West Sussex.
Property Oracle says ..
The property is a modern 2-bedroom flat in excellent condition, situated in a convenient location with good transport links and nearby schools. While it lacks a private garden, it benefits from communal outdoor spaces and allocated parking. The price appears reasonable when considering the average price per sqft in the area and comparable properties on Barttelot Road.
Therefore, we give this property 7 / 10. *Disclaimer: This is our option and does constitute a recommendation or financial advice. Do your own research. *
- Price
- 8
- Condition
- 10
- Location
- 8
- Land
- 4
- Bedrooms
- 2
- Bathrooms
- 0
- Sqft (est)
- 468.00
The heatmap indicates the level of crime in the area. The color of the heatmap indicates the crime severity and recency.
Metrics Year-on-Year
- Average area value
- 316,450.00 £Decreased by 20.35 %
- Est sale value
- 270,972.00 £Increased by 21.38 %
- Average area rental value
- 1,363.00 £/moDecreased by 1.73 %
- Est letting value
- 936.00 £/moIncreased by 100.00 %
- Est rental Yield
- 5.17 %Increased by 23.39 %
- Crime Rate
- 48.00 %Unchanged by 0.00 %
Agent Activity
Eltons Estate Agents Ltd created the listing.
Nearby Schools
| Name | Type | Ofsted | Distance |
|---|---|---|---|
| St Mary'S Cofe (Aided) Primary School | Voluntary Aided School | Good | 0.69 KM |
| Bohunt Horsham | Free Schools | 0.74 KM | |
| The College Of Richard Collyer In Horsham | Further Education | Outstanding | 1.04 KM |
| Trafalgar Community Infant School | Community School | Good | 1.41 KM |
| Littlehaven Educational Trust | Miscellaneous | 1.47 KM |
Images
Nearby Streets
| Name | Average Price | Average Sqft | Distance |
|---|---|---|---|
| Livingstone Road | £ 0 | 0 | 0.00 KM |
| Moonstone Mews | £ 375,000 | 0 | 0.00 KM |
| Middle Street | £ 0 | 0 | 0.00 KM |
| Swan Walk | £ 0 | 0 | 0.00 KM |
| Cheery Court | £ 0 | 0 | 0.00 KM |
Nearby Transport
| Name | NLC | TLC | Distance |
|---|---|---|---|
| Horsham | 5309 | HRH | 0.74 KM |
| Littlehaven | 5498 | LVN | 2.69 KM |
| Warnham | 5316 | WNH | 3.48 KM |
| Christs Hospital | 5319 | CHH | 4.50 KM |
| Faygate | 5493 | FGT | 7.78 KM |
Nearby Listings
| Address | Price | Type | Score | Distance |
|---|---|---|---|---|
| Barttelot Road, Horsham | £ 375,000 | BUY | 7 / 10 | 0.00 KM |
| Barttelot Road, Horsham | £ 375,000 | BUY | 5 / 10 | 0.00 KM |
| Barttelot Road, Horsham | £ 220,000 | BUY | 6 / 10 | 0.03 KM |
| Bailey House, Barttelot Road, Horsham | £ 365,000 | BUY | 6 / 10 | 0.05 KM |
| Bailey House, Barttelot Road, Horsham | £ 250,000 | BUY | 7 / 10 | 0.05 KM |
Nearby Properties
| Address | Price | Distance |
|---|---|---|
| 11 Barttelot Road | £ 385,000 | 0.01 KM |
| 46 Barttelot Road | £ 249,995 | 0.01 KM |
| 28 Barttelot Road | £ 310,000 | 0.01 KM |
| 30 Barttelot Road | £ 440,000 | 0.01 KM |
| 21 Barttelot Road | £ 237,500 | 0.01 KM |