Sheridans says ..
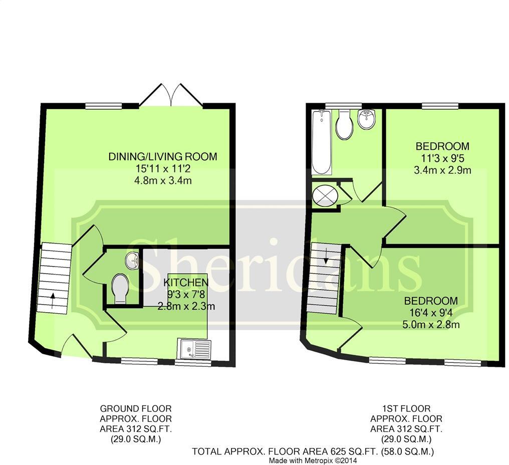
A modern two bedroom house providing comfortable accommodation situated in a sought after village close to Bury St. Edmunds. Offered CHAIN FREE this superb mews style terraced house is built to a particularly high standard on an impressive development of superior houses. The property is ...
Property Oracle says ..
The property is located in Horringer, West Suffolk. Based on the provided data, Horringer is a village with good access to Bury St Edmunds (5.24 KM), which offers various amenities. The proximity to Ickworth Park Primary School (0.51 KM) and other well-regarded schools within a reasonable distance suggests a family-friendly location. The average house price in the area is comparable to the list price of this property.
The property itself appears to be in good condition based on the provided photos. The interior is clean and well-maintained, and the exterior shows no obvious signs of disrepair. The kitchen and bathroom seem modern and functional.
The property includes a small, enclosed rear garden, which is a desirable feature for many buyers. While the plot size is listed as 0.00 SQFT, the images clearly show a garden area. This could be a data entry error.
Considering the property’s apparent good condition, its location in a desirable village with good schools and access to amenities, and the inclusion of a garden, the list price of £235,000 seems reasonable, especially when compared to the average price of £234,748 for the area. The average price per square foot in the area is £278, while this property is listed at a lower price per square foot, making it potentially good value. However, the lack of plot size information and the limited details on comparable properties make a definitive statement on price difficult.
Therefore, we give this property 7 / 10. *Disclaimer: This is our option and does constitute a recommendation or financial advice. Do your own research. *
- Price
- 7
- Condition
- 8
- Location
- 7
- Land
- 6
- Bedrooms
- 2
- Bathrooms
- 1
- Sqft (est)
- 624.31
The heatmap indicates the level of crime in the area. The color of the heatmap indicates the crime severity and recency.
Metrics Year-on-Year
- Average area value
- 223,188.00 £Decreased by 13.36 %
- Est sale value
- 196,033.34 £Decreased by 2.48 %
- Average area rental value
- 1,283.00 £/moIncreased by 2.15 %
- Est letting value
- 624.31 £/moUnchanged by 0.00 %
- Est rental Yield
- 6.90 %Increased by 17.95 %
- Crime Rate
- 19.00 %Unchanged by 0.00 %
Agent Activity
Sheridans created the listing.
Nearby Schools
| Name | Type | Ofsted | Distance |
|---|---|---|---|
| Ickworth Park Primary School | Community School | Good | 0.51 KM |
| Horringer Court Middle School | Academy Converter | Good | 1.77 KM |
| Westley Middle School | Academy Converter | Good | 2.43 KM |
| Sexton'S Manor Community Primary School | Community School | Good | 2.87 KM |
| Westgate Community Primary School And Nursery | Community School | Good | 3.46 KM |
Images
Nearby Streets
| Name | Average Price | Average Sqft | Distance |
|---|---|---|---|
| Orchard Way | £ 500,000 | 0 | 0.00 KM |
| The Oaks | £ 0 | 0 | 0.00 KM |
| Meadow Drive | £ 0 | 0 | 0.00 KM |
| Westley Lane | £ 0 | 0 | 0.00 KM |
Nearby Transport
| Name | NLC | TLC | Distance |
|---|---|---|---|
| Bury St Edmunds | 7008 | BSE | 5.24 KM |
Nearby Listings
| Address | Price | Type | Score | Distance |
|---|---|---|---|---|
| Horringer, Bury St. Edmunds | £ 325,000 | BUY | 6 / 10 | 0.07 KM |
| Horringer, Bury St. Edmunds, Suffolk. | £ 945,000 | BUY | 7 / 10 | 0.15 KM |
| Holly Close, Horringer | £ 435,000 | BUY | Unknown | 0.34 KM |
| The Oaks, Horringer | £ 399,995 | BUY | 7 / 10 | 0.47 KM |
| Hornbeam Drive, Horringer, Bury St Edmunds | £ 375,000 | BUY | Unknown | 0.51 KM |
Nearby Properties
| Address | Price | Distance |
|---|---|---|
| 26 Hornings Park | £ 242,500 | 0.07 KM |
| 7 Hornings Park | £ 360,000 | 0.07 KM |
| 16 Hornings Park | £ 320,000 | 0.07 KM |
| 23 Hornings Park | £ 274,000 | 0.07 KM |
| 17 Hornings Park | £ 317,000 | 0.07 KM |