Turpie & Co says ..
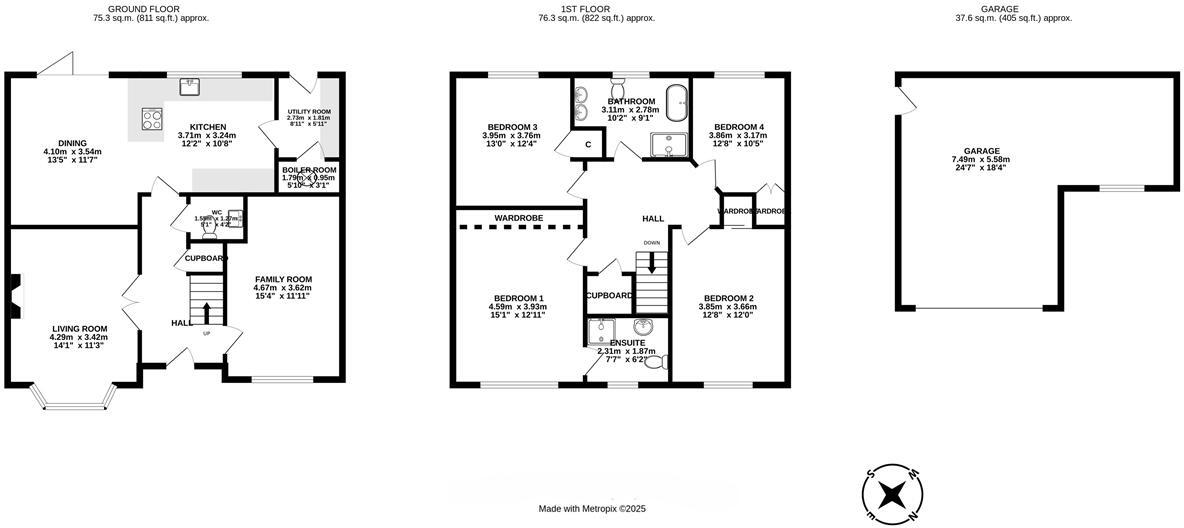
Immaculately presented with high-spec interiors, luxurious finishes, and a sleek contemporary design, this four-bedroom detached home in highly sought-after Eliburn offers an exceptional opportunity. EPC Rating - Band C
Property Oracle says ..
This is a well-presented, modern detached property in Livingston North. The house features four bedrooms, three bathrooms, a modern kitchen, and a well-maintained garden with a patio. The property benefits from its proximity to Livingston North train station. The house appears to be in good condition and offers ample living space for a family. The price is reasonable when compared to other properties in the area.
Therefore, we give this property 7 / 10. *Disclaimer: This is our option and does constitute a recommendation or financial advice. Do your own research. *
- Price
- 7
- Condition
- 8
- Location
- 7
- Land
- 7
- Bedrooms
- 4
- Bathrooms
- 3
The heatmap indicates the level of crime in the area. The color of the heatmap indicates the crime severity and recency.
Metrics Year-on-Year
- Average area value
- 712,500.00 £Increased by 63.65 %
- Average area rental value
- 1,330.00 £/moIncreased by 17.28 %
- Est rental Yield
- 2.24 %Decreased by 28.43 %
- Crime Rate
- 0.00 %
Agent Activity
Turpie & Co created the listing.
Images
Nearby Streets
| Name | Average Price | Average Sqft | Distance |
|---|---|---|---|
| Ladywood Place | £ 400,000 | 0 | 0.00 KM |
| Deans East Road | £ 0 | 0 | 0.00 KM |
| Rosebery Place | £ 0 | 0 | 0.00 KM |
| Alderstone Road | £ 0 | 0 | 0.00 KM |
| Coatdyke Crescent | £ 310,000 | 0 | 0.00 KM |
Nearby Transport
| Name | NLC | TLC | Distance |
|---|---|---|---|
| Livingston North | 9371 | LSN | 0.46 KM |
| Uphall | 9373 | UHA | 5.21 KM |
| Livingston South | 9372 | LVG | 5.47 KM |
| West Calder | 9250 | WCL | 5.47 KM |
| Addiewell | 9310 | ADW | 9.16 KM |
Nearby Listings
| Address | Price | Type | Score | Distance |
|---|---|---|---|---|
| Lady Place, Livingston | £ 440,000 | BUY | 7 / 10 | 0.00 KM |
| Ladywood Place, Livingston | £ 279,000 | BUY | 7 / 10 | 0.06 KM |
| Ladywood Place, Livingston, EH54 6TA | £ 400,000 | BUY | Unknown | 0.06 KM |
| 78 Foxknowe Place, Eliburn, Livingston, EH54 6TY | £ 265,000 | BUY | 7 / 10 | 0.16 KM |
| 28 Northpark Place Eliburn EH54 0SB | £ 295,000 | BUY | 7 / 10 | 0.23 KM |