Hilldown Road, Bromley, BR2
By Sinclair Hammelton
£ 780,000
Reviews
3 out of 5 stars
Sinclair Hammelton says ..
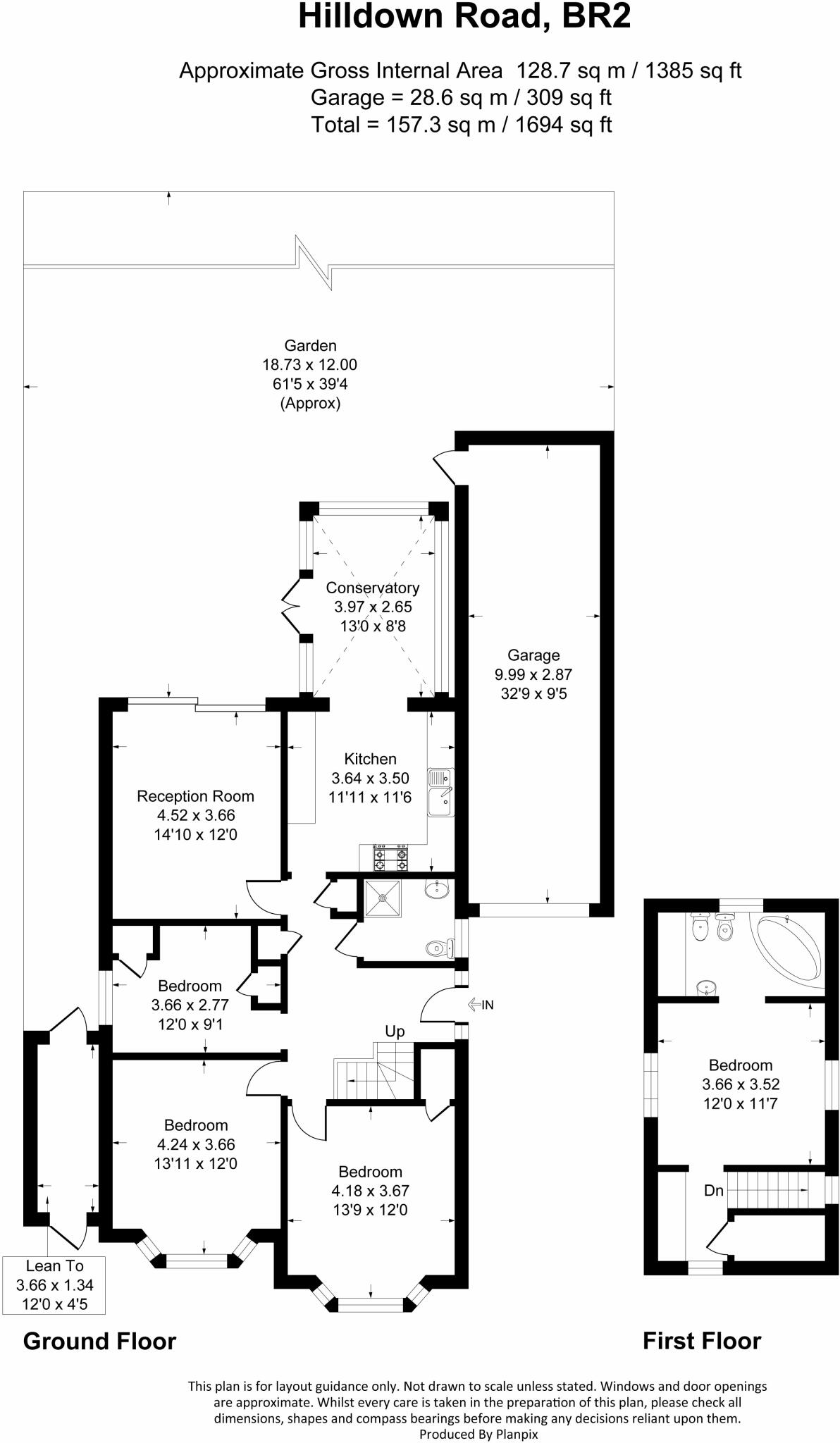
An extended four-bedroom, two bathroom detached bungalow in Hayes, well located within the catchment for excellent primary and secondary schools. The ground floor comprises a spacious kitchen with built in appliances which leads onto the south facing secluded garden. There are three be...
Property Oracle says ..
This four-bedroom, two-bathroom detached bungalow located on Hilldown Road in Bromley, BR2, presents a compelling proposition for potential buyers. The property boasts a spacious interior featuring a modern kitchen with built-in appliances, multiple well-sized bedrooms, and updated bathrooms. The highlight of the property is the significant rear garden, offering a considerable outdoor space. Its proximity to Hayes train station and several local schools adds to its appeal. While the exact square footage of comparable properties is missing from the available data, the overall condition, size, and location place it within the expected price range for the area, making it a potentially attractive option for families seeking a comfortable home with good transport links and ample outdoor space. It’s recommended to do further independent research on recent comparable sales to help further determine whether or not this property is an accurate value.
Therefore, we give this property 7 / 10. *Disclaimer: This is our option and does constitute a recommendation or financial advice. Do your own research. *
- Price
- 7
- Condition
- 8
- Location
- 7
- Land
- 7
- Bedrooms
- 4
- Bathrooms
- 2
- Sqft (est)
- 1,693.16
The heatmap indicates the level of crime in the area. The color of the heatmap indicates the crime severity and recency.
Metrics Year-on-Year
- Average area value
- 816,250.00 £Increased by 11.20 %
- Est sale value
- 1,112,406.12 £Increased by 38.32 %
- Average area rental value
- 1,675.00 £/moDecreased by 16.67 %
- Est letting value
- 1,693.16 £/moUnchanged by 0.00 %
- Est rental Yield
- 2.46 %Decreased by 25.23 %
- Crime Rate
- 5.00 %Unchanged by 0.00 %
Agent Activity
Sinclair Hammelton created the listing.
Nearby Schools
| Name | Type | Ofsted | Distance |
|---|---|---|---|
| Pickhurst Academy | Academy Converter | 0.62 KM | |
| Pickhurst Infant Academy | Academy Converter | 0.62 KM | |
| Livability Nash College | Special Post 16 Institution | Requires improvement | 1.02 KM |
| Hawes Down Primary School | Academy Converter | Good | 1.19 KM |
| Glebe School | Academy Special Converter | Outstanding | 1.22 KM |
Images
Nearby Streets
| Name | Average Price | Average Sqft | Distance |
|---|---|---|---|
| West Way | £ 1,250,000 | 0 | 0.00 KM |
| Phoenix Close | £ 0 | 0 | 0.00 KM |
| Warren Road | £ 0 | 0 | 0.00 KM |
| Montcalm Close | £ 467,500 | 0 | 0.00 KM |
| Martins Close | £ 375,000 | 0 | 0.00 KM |
Nearby Transport
| Name | NLC | TLC | Distance |
|---|---|---|---|
| Hayes | 5050 | HYS | 0.84 KM |
| West Wickham | 5054 | WWI | 2.08 KM |
| Bromley South | 5064 | BMS | 2.57 KM |
| Shortlands | 5084 | SRT | 2.80 KM |
| Bromley North | 5096 | BMN | 3.37 KM |
Nearby Listings
| Address | Price | Type | Score | Distance |
|---|---|---|---|---|
| Hilldown Road, Bromley, BR2 | £ 780,000 | BUY | 7 / 10 | 0.00 KM |
| Crest Road, Bromley | £ 900,000 | BUY | Unknown | 0.05 KM |
| Pickhurst Lane, Bromley, BR2 | £ 595,000 | BUY | 7 / 10 | 0.06 KM |
| Crest Road, Bromley, BR2 | £ 820,000 | BUY | 7 / 10 | 0.07 KM |
| Pickhurst Lane, Bromley | £ 950,000 | BUY | 7 / 10 | 0.08 KM |
Nearby Properties
| Address | Price | Distance |
|---|---|---|
| 125 Pickhurst Lane | £ 685,000 | 0.01 KM |
| 123 Pickhurst Lane | £ 745,000 | 0.01 KM |
| 143 Pickhurst Lane | £ 649,950 | 0.01 KM |
| 97 Pickhurst Lane | £ 190,000 | 0.01 KM |
| 139 Pickhurst Lane | £ 325,000 | 0.01 KM |