Brunswick Road, Deepcut, Camberley, Surrey, GU16
By Vickery
£ 235,000
Reviews
3 out of 5 stars
Vickery says ..
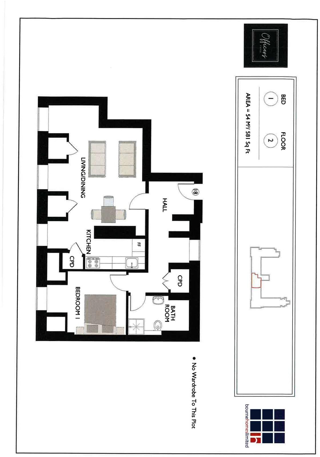
***VIEWINGS AVAILABLE DAILY BY APPOINTMENT*** UPPER FLOOR APARTMENT JUST RELEASED Vickery are proud to market Officers Park in Mindenhurst. Set in private grounds of approximately three acres of woodland, Officers Park was built in 1937 and was formally part of the ...
Property Oracle says ..
This is a one-bedroom apartment in Deepcut, Surrey. The property appears to be in excellent condition, with modern fixtures and fittings. The apartment is located a reasonable distance from local schools and transportation links. The asking price of £235,000 seems reasonable given the location, condition, and size of the property.
Therefore, we give this property 6 / 10. *Disclaimer: This is our option and does constitute a recommendation or financial advice. Do your own research. *
- Price
- 8
- Condition
- 9
- Location
- 7
- Land
- 3
- Bedrooms
- 1
- Bathrooms
- 1
- Sqft (est)
- 581.25
The heatmap indicates the level of crime in the area. The color of the heatmap indicates the crime severity and recency.
Metrics Year-on-Year
- Average area value
- 602,000.00 £Increased by 36.20 %
- Est sale value
- 269,700.00 £Increased by 10.21 %
- Average area rental value
- 1,100.00 £/moDecreased by 51.92 %
- Est letting value
- 0.00 £/moDecreased by 100.00 %
- Est rental Yield
- 2.19 %Decreased by 64.73 %
- Crime Rate
- 37.00 %Unchanged by 0.00 %
Agent Activity
Vickery created the listing.
Nearby Schools
| Name | Type | Ofsted | Distance |
|---|---|---|---|
| Portesbery School | Community Special School | Good | 0.83 KM |
| Heather Ridge Infant School | Community School | Outstanding | 1.98 KM |
| Carwarden House Community School | Academy Special Converter | Good | 2.48 KM |
| Ravenscote Junior School | Academy Converter | 2.49 KM | |
| Tomlinscote School | Academy Converter | 2.72 KM |
Images
Nearby Streets
| Name | Average Price | Average Sqft | Distance |
|---|---|---|---|
| Mindenhurst Northern Access Roundabout | £ 0 | 0 | 0.00 KM |
| Wilson Court | £ 0 | 0 | 0.00 KM |
| Union Road | £ 0 | 0 | 0.00 KM |
| Bracken Hill | £ 0 | 0 | 0.00 KM |
| Forest Drive | £ 0 | 0 | 0.00 KM |
Nearby Transport
| Name | NLC | TLC | Distance |
|---|---|---|---|
| Farnborough North | 5688 | FNN | 4.75 KM |
| Ash Vale | 5547 | AHV | 4.87 KM |
| Frimley | 5683 | FML | 5.08 KM |
| North Camp | 5636 | NCM | 5.14 KM |
| Camberley | 5682 | CAM | 5.55 KM |
Nearby Listings
| Address | Price | Type | Score | Distance |
|---|---|---|---|---|
| Brunswick Road, Deepcut, Camberley, Surrey, GU16 | £ 235,000 | BUY | 6 / 10 | 0.00 KM |
| Brunswick Road, Deepcut, Camberley, Surrey, GU16 | £ 600,000 | BUY | 7 / 10 | 0.00 KM |
| Brunswick Road, Deepcut, Camberley, Surrey, GU16 | £ 375,000 | BUY | 7 / 10 | 0.00 KM |
| Newfoundland Road, Deepcut, Camberley, Surrey, GU16 | £ 575,000 | BUY | Unknown | 0.04 KM |
| Newfoundland Road, Deepcut, Camberley, Surrey, GU16 | £ 335,000 | BUY | 6 / 10 | 0.04 KM |
Nearby Properties
| Address | Price | Distance |
|---|---|---|
| 9 Brock Close | £ 410,000 | 0.12 KM |
| 11 Brock Close | £ 362,500 | 0.12 KM |
| 14 Brock Close | £ 185,000 | 0.12 KM |
| 7 Brock Close | £ 325,000 | 0.12 KM |
| 4 Brock Close | £ 164,000 | 0.12 KM |