Collinson Hall says ..
Positioned within a GATED DEVELOPMENT and within a SHORT WALK of St. Albans mainline STATION this beautifully presented studio apartment offers SUPERB entry level accommodation at an affordable price.
Property Oracle says ..
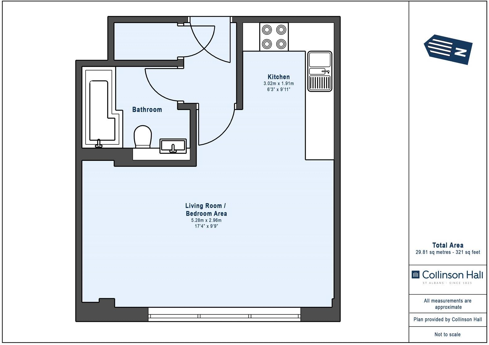
This one-bedroom apartment in St Albans, Hertfordshire, is situated in a convenient location close to St Albans City train station, offering excellent transport links. The property benefits from a modern interior, with a well-equipped kitchen and bathroom, suggesting recent renovations or a new build. The apartment appears clean and well-maintained, based on the provided photographs. However, a significant drawback is the lack of outdoor space, as the plot size is listed as 0.00 sqft. This absence of a garden or any significant private outdoor area may limit the appeal to some buyers. The price of £220,000 appears to be in line with the market for similar properties in the area, although more detailed comparative data would be beneficial for a more precise valuation. The close proximity to good schools and the overall desirability of St Albans as a location are positive factors. Overall, the property presents a good opportunity for a first-time buyer or investor looking for a modern apartment with convenient access to transport and amenities, but the absence of outdoor space should be considered a significant factor.
Therefore, we give this property 5 / 10. *Disclaimer: This is our option and does constitute a recommendation or financial advice. Do your own research. *
- Price
- 7
- Condition
- 8
- Location
- 7
- Land
- 1
- Bedrooms
- 1
- Bathrooms
- 1
- Sqft (est)
- 320.87
The heatmap indicates the level of crime in the area. The color of the heatmap indicates the crime severity and recency.
Metrics Year-on-Year
- Average area value
- 488,600.00 £Decreased by 6.01 %
- Est sale value
- 201,827.23 £Increased by 9.01 %
- Average area rental value
- 1,814.00 £/moIncreased by 6.02 %
- Est letting value
- 641.74 £/moIncreased by 100.00 %
- Est rental Yield
- 4.46 %Increased by 12.91 %
- Crime Rate
- 17.00 %Unchanged by 0.00 %
Agent Activity
Collinson Hall created the listing.
Nearby Schools
| Name | Type | Ofsted | Distance |
|---|---|---|---|
| Loreto College | Academy Converter | Outstanding | 0.57 KM |
| St Albans Independent College | Other Independent School | Good | 0.64 KM |
| St Peter'S School | Community School | Good | 0.83 KM |
| St Alban & St Stephen Catholic Primary School & Nursery | Voluntary Aided School | Outstanding | 0.88 KM |
| Maple Primary School | Community School | Good | 1.00 KM |
Images
Nearby Streets
| Name | Average Price | Average Sqft | Distance |
|---|---|---|---|
| London Road | £ 1,000,000 | 0 | 0.00 KM |
| Shirley Road | £ 0 | 0 | 0.00 KM |
| De Novo Place | £ 0 | 0 | 0.00 KM |
| Riverside Court | £ 0 | 0 | 0.00 KM |
| St Peter's Road | £ 550,000 | 0 | 0.00 KM |
Nearby Transport
| Name | NLC | TLC | Distance |
|---|---|---|---|
| St Albans City | 1548 | SAC | 0.28 KM |
| St Albans Abbey | 1562 | SAA | 1.67 KM |
| Park Street | 1561 | PKT | 2.86 KM |
| How Wood (Hertfordshire) | 1563 | HWW | 3.85 KM |
| Bricket Wood | 1560 | BWO | 5.87 KM |
Nearby Listings
| Address | Price | Type | Score | Distance |
|---|---|---|---|---|
| Ridgmont Road, St. Albans | £ 220,000 | BUY | 5 / 10 | 0.00 KM |
| Ridgmont Plaza, Ridgmont Road, St. Albans | £ 200,000 | BUY | 6 / 10 | 0.01 KM |
| Ridgmont Road, St. Albans | £ 300,000 | BUY | 5 / 10 | 0.01 KM |
| Ridgmont Road, St. Albans | £ 290,000 | BUY | 6 / 10 | 0.01 KM |
| Charrington Place, St. Albans, Hertfordshire, AL1 | £ 325,000 | BUY | 5 / 10 | 0.08 KM |
Nearby Properties
| Address | Price | Distance |
|---|---|---|
| 22 Ridgmont Road | £ 975,000 | 0.09 KM |
| 16 Ridgmont Road | £ 1,125,000 | 0.09 KM |
| 14 Ridgmont Road | £ 1,195,000 | 0.09 KM |
| 18 Ridgmont Road | £ 1,450,000 | 0.09 KM |
| 15 Lime Tree Place | £ 364,898 | 0.09 KM |