Marchand Petit says ..
A beautiful restoration of a pair of stone barns with wonderful attention to detail showcasing Oak trusses and flooring with exposed stone work keeping the integrity and volume of these wonderful barns with the convenience of modern living.
Property Oracle says ..
Therefore, we give this property 6 / 10. *Disclaimer: This is our option and does constitute a recommendation or financial advice. Do your own research. *
- Price
- 4
- Condition
- 9
- Location
- 7
- Land
- 6
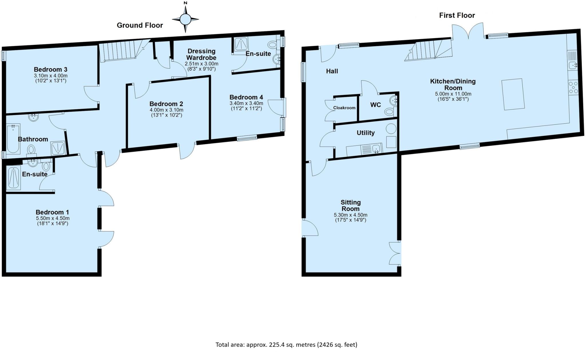
- Bedrooms
- 4
- Bathrooms
- 3
- Sqft (est)
- 1,587.57
The heatmap indicates the level of crime in the area. The color of the heatmap indicates the crime severity and recency.
Metrics Year-on-Year
- Average area value
- 216,225.00 £Decreased by 4.32 %
- Est sale value
- 415,943.34 £Increased by 37.89 %
- Average area rental value
- 863.00 £/moDecreased by 37.87 %
- Est letting value
- 1,587.57 £/moUnchanged by 0.00 %
- Est rental Yield
- 4.79 %Decreased by 35.09 %
- Crime Rate
- 0.00 %
from 225,977.00 £
from 301,638.30 £
from 1,389.00 £/mo
from 1,587.57 £/mo
from 7.38 %
from 0.00 %
Agent Activity
Marchand Petit created the listing.
Nearby Schools
| Name | Type | Ofsted | Distance |
|---|---|---|---|
| Harbertonford Church Of England Primary School | Academy Converter | Good | 0.94 KM |
| Roc College (Part Of United Response) | Special Post 16 Institution | Good | 4.56 KM |
| The Grove School | Community School | Outstanding | 4.58 KM |
| Daisy Play Centre Totnes And District Children'S Centre | Children's Centre | 4.97 KM | |
| Totnes St John'S Church Of England Primary School | Academy Sponsor Led | 5.02 KM |
Images
Nearby Streets
| Name | Average Price | Average Sqft | Distance |
|---|---|---|---|
| Lower Luscombe | £ 0 | 0 | 0.00 KM |
Nearby Transport
| Name | NLC | TLC | Distance |
|---|---|---|---|
| Totnes | 3558 | TOT | 5.12 KM |
Nearby Listings
| Address | Price | Type | Score | Distance |
|---|---|---|---|---|
| Harberton, Totnes | £ 900,000 | BUY | 6 / 10 | 0.00 KM |
| Bow Road, Harbertonford | £ 145,000 | BUY | 7 / 10 | 0.37 KM |
| Bow Road, Harbertonford | £ 290,000 | BUY | 7 / 10 | 0.37 KM |
| Harbertonford, Totnes | £ 350,000 | BUY | 7 / 10 | 0.39 KM |
| Bow Road, Harbertonford, Totnes, Devon, TQ9 | £ 365,000 | BUY | 7 / 10 | 0.56 KM |
Nearby Properties
| Address | Price | Distance |
|---|---|---|
| Mill Stream House | £ 600,000 | 0.56 KM |
| Meadow Copse | £ 1,025,000 | 0.56 KM |
| Bluebell Cottage | £ 432,500 | 0.56 KM |
| River Cottage | £ 480,000 | 0.57 KM |
| 7 Bow Road | £ 600,000 | 0.57 KM |