Arlington Lodge, Leamington Spa, Warwickshire
ST

Arlington Lodge, Leamington Spa, Warwickshire

By Stratton & King Ltd

£ 199,950

Reviews

3 out of 5 stars

Stratton & King Ltd says ..

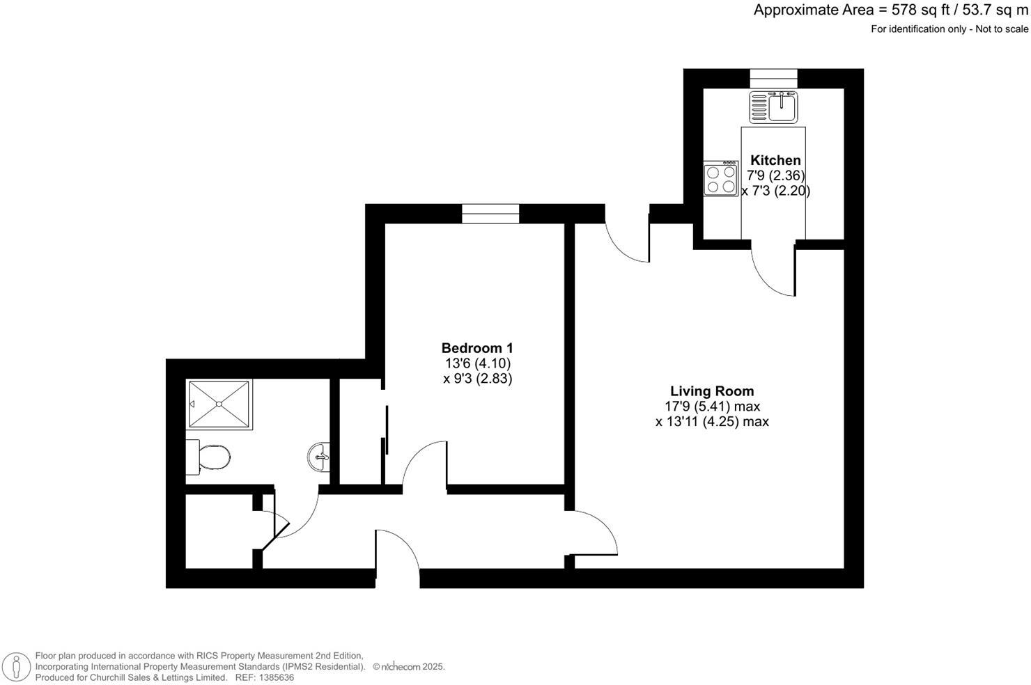
**ONE BEDROOM FIRST FLOOR RETIREMENT APARTMENT WITH JULIET BALCONY** **SOUTH FACING** Welcome to Arlington Lodge! Churchill Sales & Lettings are delighted to be marketing this lovely one bedroom first floor apartment. The property is conveniently located for the lift and benefit...

Property Oracle says ..

Arlington Lodge is a retirement property located in a desirable area of Leamington Spa. The flat itself has one bedroom and one bathroom, with a modern kitchen. The property benefits from communal gardens. The interior design could benefit from modernisation. The property is conveniently located close to local amenities and transportation links. The price is below the average for the area, but the smaller size and retirement property status should be considered.

Therefore, we give this property 6 / 10. *Disclaimer: This is our option and does constitute a recommendation or financial advice. Do your own research. *

Price
7
Condition
7
Location
7
Land
6
Bedrooms
1
Bathrooms
1
Sqft (est)
316.88

The heatmap indicates the level of crime in the area. The color of the heatmap indicates the crime severity and recency.

Metrics Year-on-Year

Average area value
323,778.00 £
Decreased by 12.49 %
from 369,999.00 £
Est sale value
117,879.36 £
Decreased by 6.06 %
from 125,484.48 £
Average area rental value
1,273.00 £/mo
Decreased by 6.53 %
from 1,362.00 £/mo
Est letting value
316.88 £/mo
Unchanged by 0.00 %
from 316.88 £/mo
Est rental Yield
4.72 %
Increased by 6.79 %
from 4.42 %
Crime Rate
1.00 %
Unchanged by 0.00 %
from 1.00 %

Agent Activity

  • Stratton & King Ltd created the listing.

Nearby Schools

NameTypeOfstedDistance
Arnold Lodge SchoolOther Independent School0.32 KM
The Kingsley SchoolOther Independent School0.58 KM
St Peter'S Catholic Primary SchoolVoluntary Aided SchoolGood0.99 KM
Milverton Primary SchoolCommunity SchoolGood1.03 KM
St Paul'S Cofe Primary School, Leamington SpaVoluntary Aided SchoolGood1.35 KM

Images

Arlington Lodge Front Apsect.jpg 1385636-10-69301142e8946.jpg 1385636-6-69301119e98ac.jpg 1385636-7-6930112251af4.jpg 1385636-8-6930112bc385c.jpg 1385636-9-69301139e1be2.jpg 1385636-5-693011100219c.jpg 1385636-4-69301104653d9.jpg 1385636-3-693010f2899f1.jpg 1385636-1-6930104e2c23e.jpg Owners Lounge (2).jpg Owners Guest Suite.jpg Arlington Lodge - New.jpg

Nearby Streets

NameAverage PriceAverage SqftDistance
Hall Road £ 625,00000.00 KM
Hamilton Terrace £ 000.00 KM
Hill Close £ 000.00 KM
Grove Street £ 900,00000.00 KM
Robina Close £ 000.00 KM

Nearby Transport

NameNLCTLCDistance
Leamington Spa4597LMS1.40 KM
Warwick4600WRW5.49 KM
Kenilworth7985KNW6.73 KM
Warwick Parkway8530WRP8.79 KM

Nearby Listings

AddressPriceTypeScoreDistance
Arlington Lodge, Leamington Spa, Warwickshire £ 199,950BUY6 / 100.00 KM
Arlington Lodge, Leamington Spa £ 255,000BUY7 / 100.07 KM
Arlington Lodge, Leamington Spa £ 350,000BUYUnknown0.07 KM
Arlington Lodge, Leamington Spa £ 260,000BUY6 / 100.07 KM
Arlington Avenue, Leamington Spa £ 210,000BUY7 / 100.08 KM

Nearby Properties

AddressPriceDistance
1 Arlington Avenue £ 1,575,0000.11 KM
35 Arlington Avenue £ 442,0000.12 KM
18 Arlington Avenue £ 574,0000.12 KM
29a Arlington Avenue £ 460,0000.12 KM
33 Arlington Avenue £ 485,0000.12 KM