Cheltenham Terrace, Heaton, Newcastle Upon Tyne
By Cloud Estates
£ 325,000
Reviews
2 out of 5 stars
Cloud Estates says ..
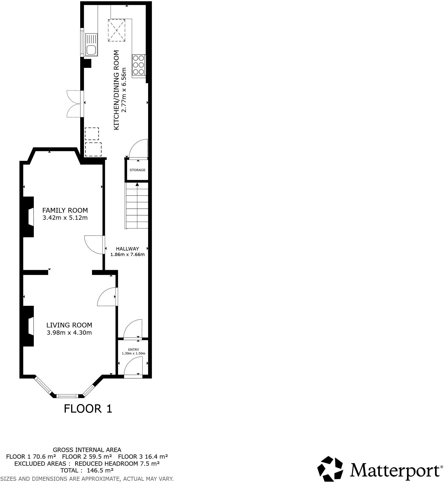
** FABULOUS SIZED PROPERTY ** HEATON ** FOUR BEDROOMS ** Cloud Estates are excited to bring to the market this four bedroom terraced house situated in the popular street of Cheltenham Terrace in the heart of Heaton. The property comprises of entrance vestibule, hallway, liv...
Property Oracle says ..
This is a four-bedroom terraced house in Heaton, Newcastle Upon Tyne. The property is in a popular residential area, close to local amenities, schools, and transportation links. The property is in reasonable condition, but would benefit from some modernisation. The property has a small front garden, but no rear garden. The property is listed for £325,000, which seems reasonable given the location and condition of the property. The property is a traditional terraced house, with some period features. It would make an ideal family home.
Therefore, we give this property 5 / 10. *Disclaimer: This is our option and does constitute a recommendation or financial advice. Do your own research. *
- Price
- 7
- Condition
- 6
- Location
- 7
- Land
- 3
- Bedrooms
- 4
- Bathrooms
- 1
- Sqft (est)
- 143.48
The heatmap indicates the level of crime in the area. The color of the heatmap indicates the crime severity and recency.
Metrics Year-on-Year
- Average area value
- 297,629.00 £Increased by 0.56 %
- Est sale value
- 61,265.96 £Increased by 45.24 %
- Average area rental value
- 1,009.00 £/moDecreased by 1.85 %
- Est letting value
- 143.48 £/moUnchanged by 0.00 %
- Est rental Yield
- 4.07 %Decreased by 2.40 %
- Crime Rate
- 13.00 %Unchanged by 0.00 %
Agent Activity
Cloud Estates created the listing.
Nearby Schools
| Name | Type | Ofsted | Distance |
|---|---|---|---|
| Chillingham Road Primary School | Foundation School | Good | 0.35 KM |
| St Teresa'S Catholic Primary School, Heaton | Academy Converter | 0.45 KM | |
| Byker Primary School | Community School | Outstanding | 0.91 KM |
| St Lawrence'S Catholic Primary School | Academy Converter | 0.93 KM | |
| South Heaton | Children's Centre Linked Site | 1.08 KM |
Images
Nearby Streets
| Name | Average Price | Average Sqft | Distance |
|---|---|---|---|
| Fourth Avenue | £ 0 | 0 | 0.00 KM |
| Back Heaton Road | £ 225,000 | 0 | 0.00 KM |
| Matthew Street | £ 155,000 | 0 | 0.00 KM |
| Chillingham Road | £ 0 | 0 | 0.00 KM |
| Murray Close | £ 0 | 0 | 0.00 KM |
Nearby Transport
| Name | NLC | TLC | Distance |
|---|---|---|---|
| Manors | 7603 | MAS | 2.93 KM |
| Heworth | 7766 | HEW | 4.25 KM |
| Newcastle | 7728 | NCL | 4.40 KM |
| Dunston | 7744 | DOT | 7.72 KM |
| Metrocentre | 7725 | MCE | 9.83 KM |
Nearby Listings
| Address | Price | Type | Score | Distance |
|---|---|---|---|---|
| Cheltenham Terrace, Heaton, Newcastle Upon Tyne | £ 325,000 | BUY | 5 / 10 | 0.00 KM |
| Cheltenham Terrace, Heaton, NE6 | £ 350,000 | BUY | 7 / 10 | 0.06 KM |
| 24 Guildford Place, Newcastle upon Tyne | £ 280,000 | BUY | Unknown | 0.10 KM |
| Cardigan Terrace, Heaton, Newcastle Upon Tyne, NE6 | £ 350,000 | BUY | 6 / 10 | 0.10 KM |
| Stannington Place, Ponteland, Newcastle upon Tyne, Northumberland | £ 295,000 | BUY | 7 / 10 | 0.13 KM |
Nearby Properties
| Address | Price | Distance |
|---|---|---|
| 35 Cheltenham Terrace | £ 95,500 | 0.02 KM |
| 24 Cheltenham Terrace | £ 70,250 | 0.02 KM |
| 44 Cheltenham Terrace | £ 332,500 | 0.02 KM |
| 36 Cheltenham Terrace | £ 180,000 | 0.02 KM |
| 38 Cheltenham Terrace | £ 152,000 | 0.02 KM |