Bacton Road, North Walsham
By Acorn Properties
£ 175,000
Reviews
3 out of 5 stars
Acorn Properties says ..
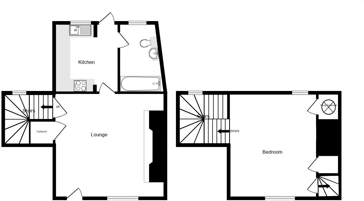
Set in the heart of the thriving market town of North Walsham is this charming grade II listed character cottage presented for sale in exceptional condition and currently used as an Air B&B. The property enjoys a courtyard garden to the rear, central heating, modern kitchen and bathroom and ...
Property Oracle says ..
This terraced property is located in North Walsham, Norfolk, a town with a range of amenities including schools, shops, and a train station. The property itself is a one-bedroom, one-bathroom terraced house with a small enclosed garden. The images show a recently renovated interior, with a modern kitchen and bathroom. The property appears to be in good condition, and the list price of £175,000 is relatively low compared to the average house price in the area (£340,938). However, it’s significantly smaller than the average property size (565 sqft vs 2,634 sqft). The lower price may reflect the smaller size and lack of land. Nearby comparable properties support this assessment, showing a range of prices for similar types of properties in the area. The proximity to schools and transport links adds to the property’s appeal.
Therefore, we give this property 6 / 10. *Disclaimer: This is our option and does constitute a recommendation or financial advice. Do your own research. *
- Price
- 7
- Condition
- 9
- Location
- 7
- Land
- 4
- Bedrooms
- 1
- Bathrooms
- 1
- Sqft (est)
- 565.00
The heatmap indicates the level of crime in the area. The color of the heatmap indicates the crime severity and recency.
Metrics Year-on-Year
- Average area value
- 250,000.00 £Decreased by 11.89 %
- Est sale value
- 146,335.00 £Increased by 19.35 %
- Average area rental value
- 650.00 £/moDecreased by 32.92 %
- Est letting value
- 0.00 £/mo
- Est rental Yield
- 3.12 %Decreased by 23.90 %
- Crime Rate
- 21.00 %Unchanged by 0.00 %
Agent Activity
Acorn Properties created the listing.
Nearby Schools
| Name | Type | Ofsted | Distance |
|---|---|---|---|
| North Walsham Infant School | Academy Converter | 0.55 KM | |
| North Walsham Junior School | Academy Converter | 0.58 KM | |
| North Walsham Sure Start Children'S Centre | Children's Centre | 0.58 KM | |
| Visiting Teacher Service North | Miscellaneous | 0.61 KM | |
| North Walsham High School | Academy Converter | 0.65 KM |
Images
Nearby Streets
| Name | Average Price | Average Sqft | Distance |
|---|---|---|---|
| North Street | £ 132,500 | 0 | 0.00 KM |
| Greenway Close | £ 0 | 0 | 0.00 KM |
| Black Swan Loke | £ 0 | 0 | 0.00 KM |
| Mundesley Road | £ 0 | 0 | 0.00 KM |
| Meadow Close | £ 300,000 | 0 | 0.00 KM |
Nearby Transport
| Name | NLC | TLC | Distance |
|---|---|---|---|
| North Walsham | 7308 | NWA | 0.88 KM |
| Worstead | 7326 | WRT | 5.29 KM |
| Gunton | 7299 | GNT | 6.62 KM |
Nearby Listings
| Address | Price | Type | Score | Distance |
|---|---|---|---|---|
| Bacton Road, North Walsham | £ 175,000 | BUY | 6 / 10 | 0.00 KM |
| Bacton Road, North Walsham | £ 160,000 | BUY | 6 / 10 | 0.01 KM |
| Glaven Close, North Walsham | £ 170,000 | BUY | 6 / 10 | 0.09 KM |
| Glaven Close, North Walsham, NR28 | £ 169,999 | BUY | 5 / 10 | 0.10 KM |
| Glaven Close, North Walsham, NR28 | £ 155,000 | BUY | 5 / 10 | 0.10 KM |
Nearby Properties
| Address | Price | Distance |
|---|---|---|
| 8 Bacton Road | £ 132,000 | 0.00 KM |
| 11 Bacton Road | £ 155,000 | 0.00 KM |
| 28 Bacton Road | £ 123,000 | 0.00 KM |
| 26a Bacton Road | £ 400,000 | 0.00 KM |
| 35 Bacton Road | £ 153,000 | 0.00 KM |