Wheatcroft & Lloyd says ..
Introducing this exceptional property: a spacious 4 bed detached house with a double garage located in a semi-rural setting. Enjoy the tranquillity of the countryside while still having good road links for commuting convenience.
Property Oracle says ..
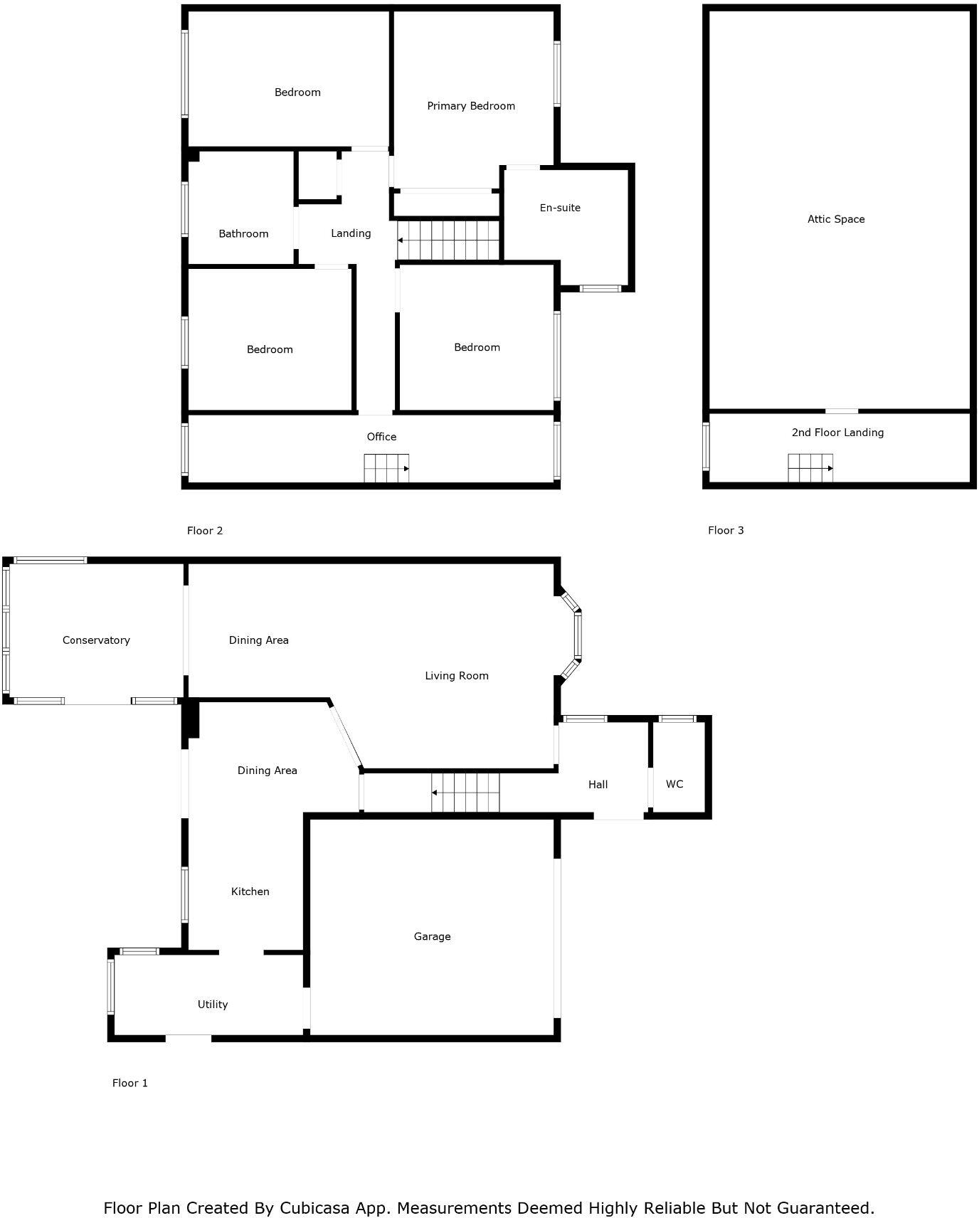
This property is a 4-bedroom, 2-bathroom detached house located in Aldford Close, Crewe, Cheshire. The property benefits from a conservatory and a good-sized garden. The location is reasonably convenient, with nearby schools and transportation links. However, the provided images show a property that is well maintained and in good condition. The list price of £450,000 is slightly below the average price for the area (£574,658), but without plot size information for the subject property, it is difficult to determine if this represents good value for money. More information on the plot size would be needed to fully assess the land value and overall price.
Therefore, we give this property 7 / 10. *Disclaimer: This is our option and does constitute a recommendation or financial advice. Do your own research. *
- Price
- 7
- Condition
- 8
- Location
- 7
- Land
- 7
- Bedrooms
- 4
- Bathrooms
- 2
- Sqft (est)
- 1,950.00
The heatmap indicates the level of crime in the area. The color of the heatmap indicates the crime severity and recency.
Metrics Year-on-Year
- Average area value
- 614,167.00 £Decreased by 18.27 %
- Est sale value
- 639,600.00 £Decreased by 20.19 %
- Average area rental value
- 1,688.00 £/moIncreased by 6.43 %
- Est letting value
- 0.00 £/mo
- Est rental Yield
- 3.30 %Increased by 30.43 %
- Crime Rate
- 5.00 %Unchanged by 0.00 %
Agent Activity
Wheatcroft & Lloyd created the listing.
Nearby Schools
| Name | Type | Ofsted | Distance |
|---|---|---|---|
| Shavington Primary School | Academy Converter | Good | 1.85 KM |
| Wybunbury Delves Cofe Primary School | Academy Converter | 2.34 KM | |
| Shavington Academy | Academy Converter | Good | 3.12 KM |
| The Berkeley Academy | Academy Converter | Good | 3.39 KM |
| Safe Opportunities | Special Post 16 Institution | 3.58 KM |
Images
Nearby Streets
| Name | Average Price | Average Sqft | Distance |
|---|---|---|---|
| Norbury Close | £ 350,000 | 0 | 0.00 KM |
| Casey Lane | £ 0 | 0 | 0.00 KM |
| Richardson Close | £ 0 | 0 | 0.00 KM |
| Larch Avenue | £ 290,000 | 0 | 0.00 KM |
| Nursery Close | £ 230,000 | 0 | 0.00 KM |
Nearby Transport
| Name | NLC | TLC | Distance |
|---|---|---|---|
| Crewe | 1243 | CRE | 3.92 KM |
| Nantwich | 1247 | NAN | 9.57 KM |
Nearby Listings
| Address | Price | Type | Score | Distance |
|---|---|---|---|---|
| Aldford Close, Crewe | £ 450,000 | BUY | 7 / 10 | 0.00 KM |
| Aldford Close, Hough, Crewe | £ 350,000 | BUY | 6 / 10 | 0.04 KM |
| Pit Lane, Hough, CW2 | £ 550,000 | BUY | 8 / 10 | 0.06 KM |
| Walnut Close, Hough, Cheshire | £ 467,000 | BUY | Unknown | 0.09 KM |
| Woolston Drive, Hough, CW2 | £ 275,000 | BUY | 6 / 10 | 0.13 KM |
Nearby Properties
| Address | Price | Distance |
|---|---|---|
| 9 Aldford Close | £ 130,000 | 0.02 KM |
| 8 Aldford Close | £ 375,000 | 0.02 KM |
| 4 Aldford Close | £ 270,000 | 0.04 KM |
| 12 Pit Lane | £ 318,000 | 0.11 KM |
| 31 Pit Lane | £ 348,000 | 0.11 KM |