Rodley Lane, Leeds, West Yorkshire, LS13
HA

Rodley Lane, Leeds, West Yorkshire, LS13

By Hardisty & co

£ 489,995

Reviews

4 out of 5 stars

Hardisty & co says ..

Welcome to this stunning family home, offering the perfect blend of modern living and classic charm. With spacious, light-filled rooms, this property provides the ideal space for both entertaining and everyday family life. The open-plan living and dining area is the heart of the home, creating a ...

Property Oracle says ..

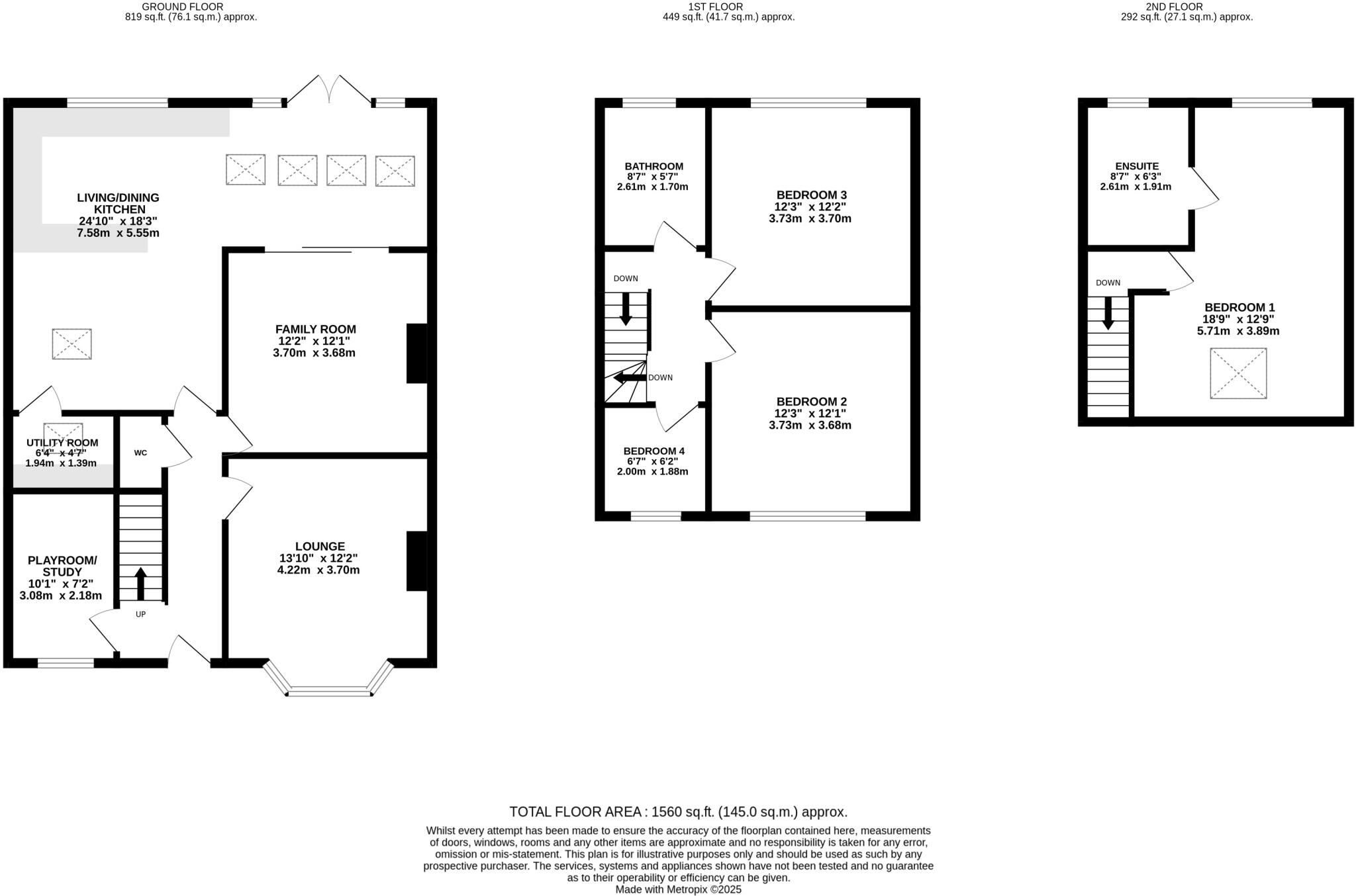
The property is situated in Rodley Lane, Leeds, which is a desirable area. The proximity to several well-regarded primary schools within a radius of approximately 2km makes it attractive to families. Additionally, the presence of several train stations within a reasonable distance provides convenient access to public transportation. Based on the images provided, the property appears to be in excellent condition. The interior is modern, well-maintained, and tastefully decorated. The kitchen and bathrooms have been recently updated, and the overall presentation suggests a high standard of upkeep. The property includes a sizeable garden with a patio area, providing ample outdoor space. The presence of a shed further enhances the practicality of the outdoor area. The list price of £489,995 is considerably higher than the average price of £274,785 for the area. However, the property is significantly larger than the average at 1,560.77 sqft compared to the average 920 sqft. The average price per sqft in the area is £298.00, while this property’s price per sqft is approximately £314. Considering its superior condition, larger size, and desirable location, the list price, while above average, appears to be within a reasonable range for a property of this caliber in this area. Further analysis of comparable properties in the immediate vicinity would be beneficial to confirm this assessment.

Therefore, we give this property 8 / 10. *Disclaimer: This is our option and does constitute a recommendation or financial advice. Do your own research. *

Price
7
Condition
9
Location
9
Land
8
Bedrooms
4
Bathrooms
2
Sqft (est)
1,560.77

The heatmap indicates the level of crime in the area. The color of the heatmap indicates the crime severity and recency.

Metrics Year-on-Year

Average area value
245,948.00 £
Decreased by 19.85 %
from 306,845.00 £
Est sale value
550,951.81 £
Increased by 41.20 %
from 390,192.50 £
Average area rental value
915.00 £/mo
Decreased by 6.92 %
from 983.00 £/mo
Est letting value
1,560.77 £/mo
from 0.00 £/mo
Est rental Yield
4.46 %
Increased by 16.15 %
from 3.84 %
Crime Rate
78.00 %
Unchanged by 0.00 %
from 78.00 %

Agent Activity

  • Hardisty & co created the listing.

Nearby Schools

NameTypeOfstedDistance
Farsley Springbank Primary SchoolCommunity SchoolGood1.37 KM
Valley View Community Primary SchoolCommunity SchoolGood1.70 KM
Calverley Church Of England Voluntary Aided Primary SchoolVoluntary Aided SchoolGood1.75 KM
Westroyd Primary School And NurseryCommunity SchoolGood1.78 KM
Calverley Parkside Primary SchoolAcademy Sponsor Led1.98 KM

Images

Picture No. 85 Picture No. 57 Picture No. 67 Picture No. 29 Picture No. 31 Picture No. 87 Picture No. 88 Picture No. 49 Picture No. 13 Picture No. 03 Picture No. 04 Picture No. 07 Picture No. 08 Picture No. 74 Picture No. 84 Picture No. 54 Picture No. 60 Picture No. 51 Picture No. 77 Picture No. 86 Picture No. 68 Picture No. 20 Picture No. 89 Picture No. 16 Picture No. 18

Nearby Streets

NameAverage PriceAverage SqftDistance
Manor Mews £ 500,00000.00 KM
Wheatfield Close £ 475,00000.00 KM
Spinners Fold £ 625,00000.00 KM
Weavers Close £ 515,00000.00 KM
St Andrew's Close £ 212,50000.00 KM

Nearby Transport

NameNLCTLCDistance
New Pudsey8506NPD2.56 KM
Bramley (West Yorkshire)8496BLE4.30 KM
Apperley Bridge8562APY4.31 KM
Horsforth8499HRS5.12 KM
Kirkstall Forge6544KLF5.33 KM

Nearby Listings

AddressPriceTypeScoreDistance
Rodley Lane, Leeds, West Yorkshire, LS13 £ 489,995BUY8 / 100.00 KM
Oaklands House, Rodley Lane, Leeds, West Yorkshire, LS13 £ 189,950BUY5 / 100.01 KM
Oaklands House, Rodley Lane, Leeds, West Yorkshire, LS13 £ 149,950BUY5 / 100.01 KM
Rodley Lane, Calverley, Leeds, West Yorkshire, LS13 £ 380,000BUY7 / 100.03 KM
Hawthorn Drive, Rodley, Leeds £ 450,000BUY7 / 100.07 KM

Nearby Properties

AddressPriceDistance
99 Rodley Lane £ 179,9500.01 KM
77 Rodley Lane £ 240,0000.01 KM
85 Rodley Lane £ 365,0000.01 KM
26 Hawthorn Drive £ 180,0000.09 KM
8 Hawthorn Drive £ 139,9950.09 KM