MC
Bowden Wood Crescent, Sheffield, S9
By McGowan Housing
£ 120,000
Reviews
3 out of 5 stars
McGowan Housing says ..
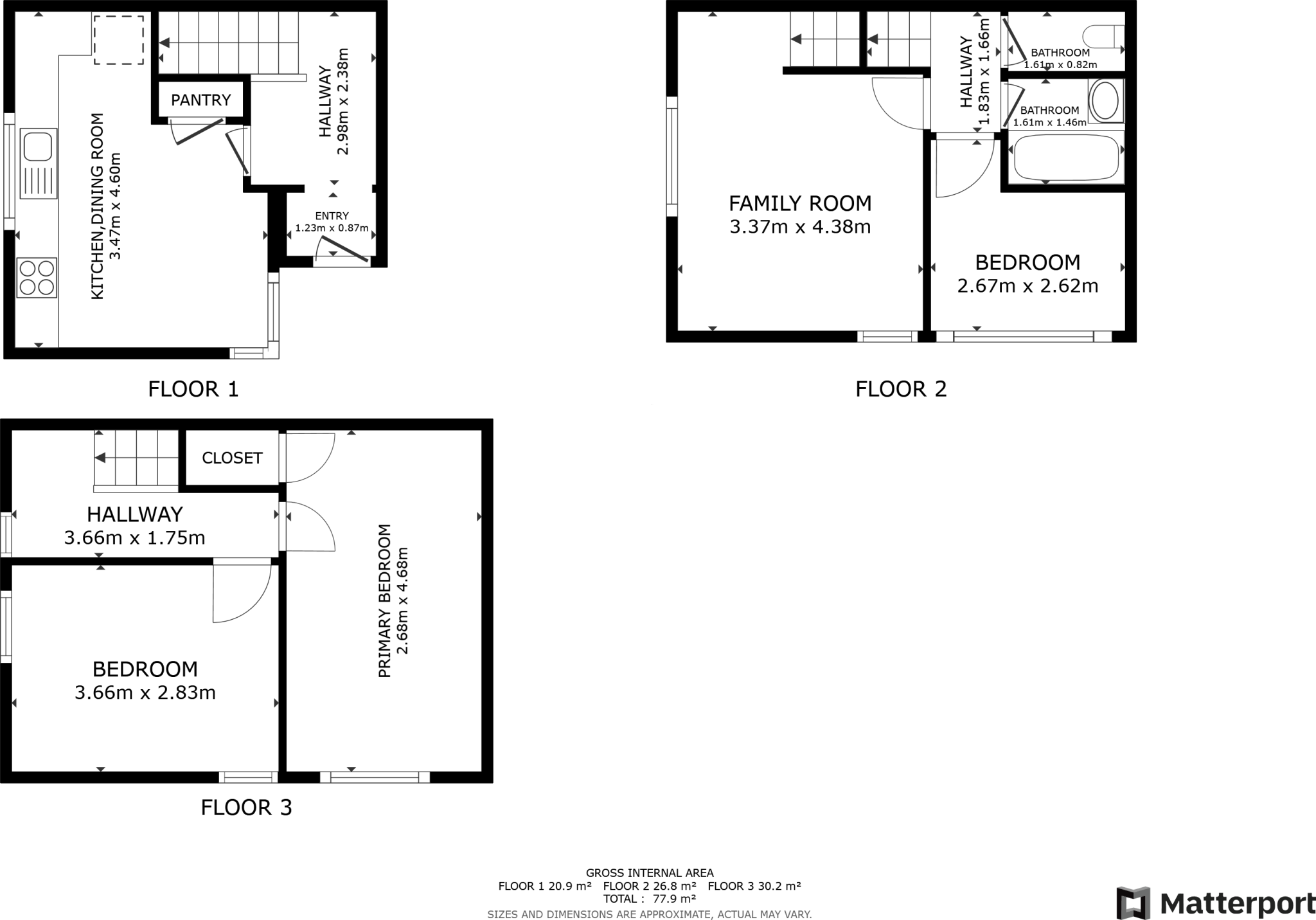
Buy-to-Let Opportunity | Long-Term Tenants Currently Situated | 3 Bedroom Flat | Good Condition | Spacious Lounge | Three-Piece bathroom | On street parking | Private front garden | Prime Rental Location- Sheffield
Property Oracle says ..
Therefore, we give this property 6 / 10. *Disclaimer: This is our option and does constitute a recommendation or financial advice. Do your own research. *
- Price
- 8
- Condition
- 5
- Location
- 7
- Land
- 6
- Bedrooms
- 3
- Bathrooms
- 1
- Sqft (est)
- 881.35
The heatmap indicates the level of crime in the area. The color of the heatmap indicates the crime severity and recency.
Metrics Year-on-Year
- Average area value
- 163,333.00 £Increased by 2.02 %
- Est sale value
- 168,337.85 £Increased by 24.84 %
- Average area rental value
- 774.00 £/moDecreased by 48.05 %
- Est letting value
- 0.00 £/moDecreased by 100.00 %
- Est rental Yield
- 5.69 %Decreased by 49.06 %
- Crime Rate
- 3.00 %Unchanged by 0.00 %
from 160,094.00 £
from 134,846.55 £
from 1,490.00 £/mo
from 881.35 £/mo
from 11.17 %
from 3.00 %
Agent Activity
McGowan Housing created the listing.
Nearby Schools
| Name | Type | Ofsted | Distance |
|---|---|---|---|
| Pipworth Community Primary School | Community School | Good | 0.58 KM |
| Sheffield Park Academy | Academy Sponsor Led | Good | 0.79 KM |
| Manor Children'S Centre | Children's Centre Linked Site | 0.88 KM | |
| Acres Hill Community Primary School | Academy Sponsor Led | Good | 0.91 KM |
| Woodthorpe Children'S Centre | Children's Centre Linked Site | 1.25 KM |
Images
Nearby Streets
| Name | Average Price | Average Sqft | Distance |
|---|---|---|---|
| Prince of Wales Road | £ 180,000 | 0 | 0.00 KM |
| Pearce Road | £ 0 | 0 | 0.00 KM |
| Cresswell Road | £ 0 | 0 | 0.00 KM |
| Wainwright Avenue | £ 0 | 0 | 0.00 KM |
| Circle Close | £ 135,000 | 0 | 0.00 KM |
Nearby Transport
| Name | NLC | TLC | Distance |
|---|---|---|---|
| Darnall | 6729 | DAN | 1.08 KM |
| Meadowhall | 6663 | MHS | 4.73 KM |
| Sheffield | 6691 | SHF | 5.67 KM |
| Woodhouse | 6732 | WDH | 6.03 KM |
| Rotherham Central | 6676 | RMC | 8.47 KM |
Nearby Listings
| Address | Price | Type | Score | Distance |
|---|---|---|---|---|
| Bowden Wood Crescent, Sheffield, S9 | £ 120,000 | BUY | 6 / 10 | 0.00 KM |
| Bowden Wood Road, Sheffield, South Yorkshire, S9 | £ 160,000 | BUY | 6 / 10 | 0.27 KM |
| Prince Of Wales Road, Sheffield, S9 | £ 140,000 | BUY | 6 / 10 | 0.37 KM |
| Mather Road, Sheffield, South Yorkshire, S9 | £ 120,000 | BUY | 6 / 10 | 0.59 KM |
| Romandale Gardens, Sheffield, South Yorkshire, S2 | £ 160,000 | BUY | 6 / 10 | 0.60 KM |
Nearby Properties
| Address | Price | Distance |
|---|---|---|
| 167 Bowden Wood Crescent | £ 88,000 | 0.00 KM |
| 153 Bowden Wood Crescent | £ 92,500 | 0.00 KM |
| 157 Bowden Wood Crescent | £ 105,000 | 0.00 KM |
| 141 Bowden Wood Crescent | £ 100,000 | 0.00 KM |
| 171 Bowden Wood Crescent | £ 58,000 | 0.00 KM |