Dyke Road Place, Brighton
By Avard Estate Agents
£ 1,795,000
Reviews
2 out of 5 stars
Avard Estate Agents says ..
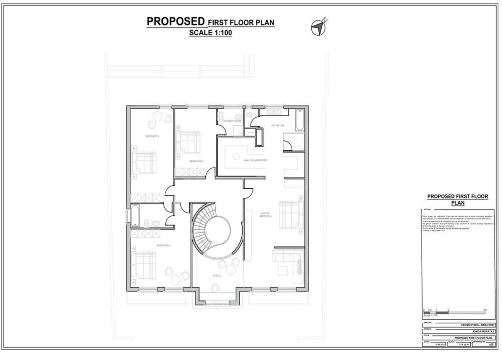
Situated in the prestigious Dyke Road Avenue area of Brighton, this detached house presents a rare opportunity for those looking to create their dream home. Currently known as Cross Dykes Dyke Road Place. What makes this property particularly special is the granted planning permission to...
Property Oracle says ..
This is a detached property located on Dyke Road Place in Brighton. The property requires significant renovation. The property benefits from a garden and off-street parking. The location is good, with proximity to schools and transport links, but the busy road may be a drawback. The asking price seems high given the condition of the property.
Therefore, we give this property 4 / 10. *Disclaimer: This is our option and does constitute a recommendation or financial advice. Do your own research. *
- Price
- 3
- Condition
- 3
- Location
- 7
- Land
- 6
- Bedrooms
- 3
- Bathrooms
- 1
The heatmap indicates the level of crime in the area. The color of the heatmap indicates the crime severity and recency.
Metrics Year-on-Year
- Average area value
- 564,925.00 £Decreased by 12.97 %
- Average area rental value
- 1,752.00 £/moIncreased by 7.35 %
- Est rental Yield
- 3.72 %Increased by 23.18 %
- Crime Rate
- 2.00 %Unchanged by 0.00 %
Agent Activity
Avard Estate Agents created the listing.
Nearby Schools
| Name | Type | Ofsted | Distance |
|---|---|---|---|
| Westdene Primary School | Community School | Good | 0.94 KM |
| Westdene Children'S Centre | Children's Centre Linked Site | 0.98 KM | |
| Lancing College Preparatory School At Hove | Other Independent School | 1.16 KM | |
| Bilingual Primary School - Brighton & Hove | Free Schools | Good | 1.48 KM |
| St Bernadette'S Catholic Primary School | Voluntary Aided School | Good | 1.51 KM |
Images
Nearby Streets
| Name | Average Price | Average Sqft | Distance |
|---|---|---|---|
| The Green | £ 0 | 0 | 0.00 KM |
| The Approach | £ 0 | 0 | 0.00 KM |
| Deneside | £ 650,000 | 0 | 0.00 KM |
| Shirley Drive | £ 0 | 0 | 0.00 KM |
| Old Mill Close | £ 1,300,000 | 0 | 0.00 KM |
Nearby Transport
| Name | NLC | TLC | Distance |
|---|---|---|---|
| Preston Park | 5285 | PRP | 1.08 KM |
| Hove | 5273 | HOV | 1.97 KM |
| Aldrington | 5280 | AGT | 2.81 KM |
| London Road (Brighton) | 5281 | LRB | 3.38 KM |
| Brighton | 5268 | BTN | 3.48 KM |
Nearby Listings
| Address | Price | Type | Score | Distance |
|---|---|---|---|---|
| Dyke Road Place, Brighton | £ 1,795,000 | BUY | 4 / 10 | 0.00 KM |
| Dyke Road Avenue, Brighton | £ 3,000,000 | BUY | 7 / 10 | 0.11 KM |
| Dyke Road Avenue, Brighton | £ 3,000,000 | BUY | 8 / 10 | 0.11 KM |
| Dyke Road Avenue, Brighton, BN1 | £ 1,500,000 | BUY | 7 / 10 | 0.12 KM |
| Dyke Road Avenue, Brighton | £ 1,650,000 | BUY | 8 / 10 | 0.12 KM |
Nearby Properties
| Address | Price | Distance |
|---|---|---|
| 2 Dyke Road Place | £ 230,000 | 0.01 KM |
| 6 Shepherds Croft | £ 650,000 | 0.20 KM |
| 4 Shepherds Croft | £ 500,000 | 0.20 KM |
| 20 Shepherds Croft | £ 470,000 | 0.20 KM |
| 9 Shepherds Croft | £ 715,000 | 0.20 KM |