McDonald says ..
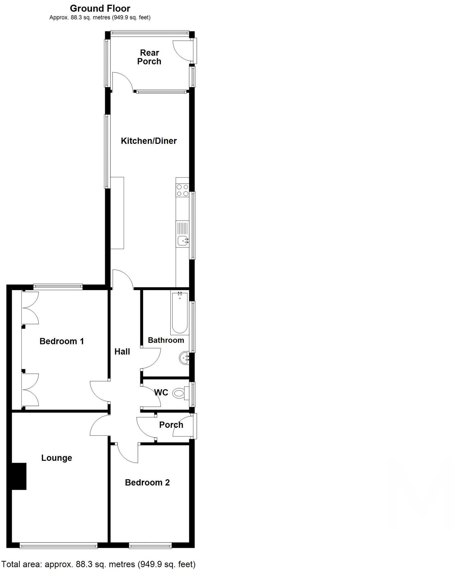
Beautifully Presented True Bungalow in Prime Bispham Location – No Chain Delay!! This recently decorated true bungalow offers stylish, ready to move into accommodation with no onward chain. The spacious interior features a generous lounge, two well proportioned bedrooms, and a large kitchen/di...
Property Oracle says ..
Therefore, we give this property 6 / 10. *Disclaimer: This is our option and does constitute a recommendation or financial advice. Do your own research. *
- Price
- 8
- Condition
- 6
- Location
- 7
- Land
- 5
- Bedrooms
- 2
- Bathrooms
- 1
- Sqft (est)
- 950.45
The heatmap indicates the level of crime in the area. The color of the heatmap indicates the crime severity and recency.
Metrics Year-on-Year
- Average area value
- 180,000.00 £Decreased by 46.31 %
- Est sale value
- 172,031.45 £Decreased by 20.26 %
- Average area rental value
- 1,025.00 £/moDecreased by 8.40 %
- Est letting value
- 950.45 £/mo
- Est rental Yield
- 6.83 %Increased by 70.32 %
- Crime Rate
- 2.00 %Unchanged by 0.00 %
from 335,277.00 £
from 215,752.15 £
from 1,119.00 £/mo
from 0.00 £/mo
from 4.01 %
from 2.00 %
Agent Activity
McDonald created the listing.
Nearby Schools
| Name | Type | Ofsted | Distance |
|---|---|---|---|
| Bispham Endowed Church Of England Primary School | Voluntary Controlled School | Good | 0.32 KM |
| St Cuthbert'S Children'S Centre | Children's Centre | 0.54 KM | |
| St Bernadette'S Catholic Primary School | Voluntary Aided School | Good | 0.72 KM |
| Westcliff Primary Academy | Academy Converter | Good | 0.88 KM |
| Montgomery Academy | Academy Converter | Requires improvement | 0.95 KM |
Images
Nearby Streets
| Name | Average Price | Average Sqft | Distance |
|---|---|---|---|
| Carlton Grove | £ 0 | 0 | 0.00 KM |
| Norbreck Court | £ 0 | 0 | 0.00 KM |
| Cliff Court | £ 55,000 | 0 | 0.00 KM |
| Tower View | £ 0 | 0 | 0.00 KM |
| Riley Cottages | £ 0 | 0 | 0.00 KM |
Nearby Transport
| Name | NLC | TLC | Distance |
|---|---|---|---|
| Layton (Lancs) | 2669 | LAY | 2.00 KM |
| Blackpool North | 2739 | BPN | 3.04 KM |
| Blackpool South | 2740 | BPS | 5.58 KM |
| Poulton-Le-Fylde | 2671 | PFY | 5.72 KM |
| Blackpool Pleasure Beach | 2738 | BPB | 6.84 KM |
Nearby Listings
| Address | Price | Type | Score | Distance |
|---|---|---|---|---|
| Bethel Avenue, Bispham, Blackpool | £ 169,950 | BUY | 6 / 10 | 0.00 KM |
| Millom Avenue, Bispham, FY2 | £ 160,000 | BUY | 7 / 10 | 0.05 KM |
| Millom Avenue, Bispham | £ 124,950 | BUY | 6 / 10 | 0.05 KM |
| Millom Avenue, Bispham, FY2 | £ 165,000 | BUY | 7 / 10 | 0.06 KM |
| Bromsgrove Avenue, Blackpool, Lancashire | £ 179,995 | BUY | Unknown | 0.07 KM |
Nearby Properties
| Address | Price | Distance |
|---|---|---|
| 8 Millom Avenue | £ 114,000 | 0.06 KM |
| 11 Millom Avenue | £ 120,000 | 0.06 KM |
| 6 Millom Avenue | £ 104,000 | 0.06 KM |
| 5 Millom Avenue | £ 88,000 | 0.06 KM |
| 22 Bethel Avenue | £ 125,000 | 0.07 KM |