Ryat Green, Newton Mearns, G77
By Clyde Property
£ 175,000
Reviews
4 out of 5 stars
Clyde Property says ..
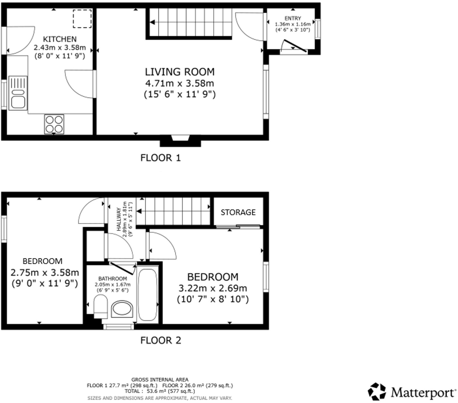
A wonderful two bedroom semi detached villa set within a generous level plot in Newton Mearns.
Property Oracle says ..
This two-bedroom semi-detached property in Newton Mearns presents a good opportunity. The house is in good condition, with a modern interior. It also benefits from having a garden. The property is located in a desirable residential area, close to transport links. The asking price of £175,000 appears reasonable when compared to the average price in the area.
Therefore, we give this property 8 / 10. *Disclaimer: This is our option and does constitute a recommendation or financial advice. Do your own research. *
- Price
- 9
- Condition
- 8
- Location
- 8
- Land
- 7
- Bedrooms
- 2
- Bathrooms
- 1
- Sqft (est)
- 576.95
The heatmap indicates the level of crime in the area. The color of the heatmap indicates the crime severity and recency.
Metrics Year-on-Year
- Average area value
- 291,000.00 £Decreased by 10.39 %
- Est sale value
- 179,431.45 £Increased by 45.33 %
- Average area rental value
- 2,298.00 £/moIncreased by 63.91 %
- Est letting value
- 1,153.90 £/mo
- Est rental Yield
- 9.48 %Increased by 83.01 %
- Crime Rate
- 0.00 %
Agent Activity
Clyde Property created the listing.
Images
Nearby Streets
| Name | Average Price | Average Sqft | Distance |
|---|---|---|---|
| Ryat Green | £ 0 | 0 | 0.00 KM |
| Glanderston Avenue | £ 0 | 0 | 0.00 KM |
| Whitelee Crescent | £ 0 | 0 | 0.00 KM |
| Rankin Drive | £ 290,000 | 0 | 0.00 KM |
| Davaar Place | £ 0 | 0 | 0.00 KM |
Nearby Transport
| Name | NLC | TLC | Distance |
|---|---|---|---|
| Patterton | 9775 | PTT | 1.64 KM |
| Priesthill And Darnley | 9808 | PTL | 3.68 KM |
| Whitecraigs | 9777 | WCR | 4.00 KM |
| Nitshill | 9609 | NIT | 4.03 KM |
| Kennishead | 9816 | KNS | 4.36 KM |
Nearby Listings
| Address | Price | Type | Score | Distance |
|---|---|---|---|---|
| Ryat Green, Newton Mearns, G77 | £ 175,000 | BUY | 8 / 10 | 0.00 KM |
| Ryat Green, Newton Mearns, G77 | £ 290,000 | BUY | 7 / 10 | 0.01 KM |
| Langton Place, Newton Mearns, G77 | £ 290,000 | BUY | Unknown | 0.04 KM |
| Craigton Drive, Newton Mearns | £ 270,000 | BUY | 6 / 10 | 0.07 KM |
| Langton Place, Newton Mearns, Glasgow, East Renfrewshire, G77 | £ 390,000 | BUY | Unknown | 0.11 KM |