Countryside Homes at Sherford, Plymouth, PL98AS
VI

Countryside Homes at Sherford, Plymouth, PL98AS

By Vistry CSW (Countryside)

£ 360,000

Reviews

3 out of 5 stars

Vistry CSW (Countryside) says ..

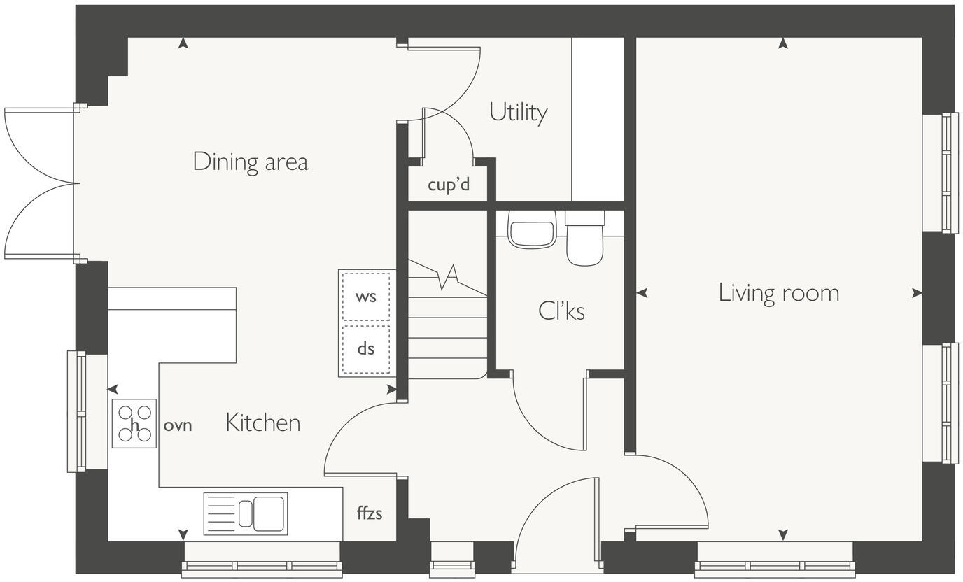
A beautifully appointed, 3-bedroom property. There is a dual-aspect living room and a kitchen/dining area serving as the buzzing heart of the house, with double doors leading out to the garden. Also, on the ground floor are a convenient cloakroom and a utility room. The master bedroom ...

Property Oracle says ..

The property is a 3-bedroom semi-detached house located in Sherford, Plymouth. The location benefits from being close to Goosewell Primary Academy (rated Good by Ofsted), and other schools within a reasonable distance. The property is a new build, appearing modern and well-maintained in the provided images. The plot size is small, as indicated by the images. While the list price is slightly above the average for the area, the modern condition and proximity to good schools may justify the price. More information on the plot size would provide a more comprehensive analysis.

Therefore, we give this property 7 / 10. *Disclaimer: This is our option and does constitute a recommendation or financial advice. Do your own research. *

Price
7
Condition
10
Location
8
Land
3
Bedrooms
3
Bathrooms
0
Sqft (est)
500.00

The heatmap indicates the level of crime in the area. The color of the heatmap indicates the crime severity and recency.

Metrics Year-on-Year

Average area value
311,919.00 £
Decreased by 6.41 %
from 333,288.00 £
Est sale value
233,000.00 £
Increased by 32.76 %
from 175,500.00 £
Average area rental value
1,169.00 £/mo
Increased by 9.05 %
from 1,072.00 £/mo
Est letting value
500.00 £/mo
Unchanged by 0.00 %
from 500.00 £/mo
Est rental Yield
4.50 %
Increased by 16.58 %
from 3.86 %
Crime Rate
6.00 %
Unchanged by 0.00 %
from 6.00 %

Agent Activity

  • Vistry CSW (Countryside) created the listing.

Nearby Schools

NameTypeOfstedDistance
Goosewell Primary AcademyAcademy Sponsor LedGood0.15 KM
Coombe Dean SchoolAcademy ConverterRequires improvement0.79 KM
Plymstock SchoolAcademy ConverterGood0.85 KM
Plymstock Children'S CentreChildren's Centre1.19 KM
Pomphlett Primary SchoolAcademy Converter1.44 KM

Images

DS10282 [CH] Kingfisher - Plot 642_web 7823-06 papworth_15 Hatters Chase-Mountford-LVR Brookmill Meadow-064_Housetype_Plot_-_Hero_860x573 Leverton Bedroom 3 7823-06 DS10282 [CH] Kingfisher - Plot 642_web CH-SADDLERS-RUTLAND-(elmslie)-FAMBATH DS10282 [CH] Kingfisher - Plot 642_web 7823-06

Nearby Streets

NameAverage PriceAverage SqftDistance
Woodlands £ 000.00 KM
Church Road £ 327,50000.00 KM
Paddock Close £ 000.00 KM
Springfield Lane £ 000.00 KM
Reigate Road £ 282,50000.00 KM

Nearby Transport

NameNLCTLCDistance
Plymouth3580PLY6.93 KM
Devonport3579DPT9.83 KM

Nearby Listings

AddressPriceTypeScoreDistance
Countryside Homes at Sherford, Plymouth, PL98AS £ 360,000BUY7 / 100.00 KM
Countryside Homes at Sherford, Plymouth, PL98AS £ 365,000BUY6 / 100.00 KM
Countryside Homes at Sherford, Plymouth, PL98AS £ 360,000BUY7 / 100.00 KM
Countryside Homes at Sherford, Plymouth, PL98AS £ 315,000BUY7 / 100.00 KM
Goosewell Park Road, Plymouth, Devon, PL9 £ 350,000BUY7 / 100.06 KM

Nearby Properties

AddressPriceDistance
6 Goosewell Park Road £ 231,0000.07 KM
8 Goosewell Park Road £ 130,0000.07 KM
24 Goosewell Park Road £ 170,0000.07 KM
4 Goosewell Park Road £ 240,0000.07 KM
30 Goosewell Park Road £ 189,0000.07 KM