Ben Rose says ..
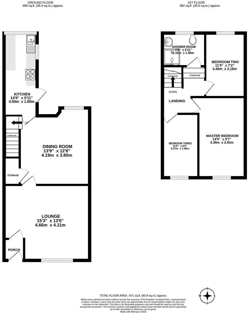
Ben Rose Estate Agents are pleased to present to the market this charming three-bedroom mid-terrace property, ideally located within walking distance of Chorley town centre. This home would be perfect for a first-time buyer looking to take their first step onto the property ladder. Nestled in a q...
Property Oracle says ..
This three-bedroom terraced house in Chorley, Lancashire is listed at £139,995. The property benefits from a convenient location, with nearby schools and transportation links. The interior appears well-maintained, though the decor is somewhat dated. The small, but well-maintained, rear garden is a welcome addition. While the average price per square foot in the area is £553, this property is listed at a lower price per square foot, making it potentially good value for money. However, it is important to note that the average house price in the area is significantly higher than the list price of this property, suggesting that it may be undervalued or that there are factors not immediately apparent from the listing that may affect its value.
Therefore, we give this property 6 / 10. *Disclaimer: This is our option and does constitute a recommendation or financial advice. Do your own research. *
- Price
- 7
- Condition
- 7
- Location
- 8
- Land
- 4
- Bedrooms
- 3
- Bathrooms
- 1
- Sqft (est)
- 871.00
The heatmap indicates the level of crime in the area. The color of the heatmap indicates the crime severity and recency.
Metrics Year-on-Year
- Average area value
- 445,205.00 £Decreased by 3.69 %
- Est sale value
- 561,795.00 £Increased by 20.34 %
- Average area rental value
- 1,836.00 £/moIncreased by 4.79 %
- Est letting value
- 1,742.00 £/moUnchanged by 0.00 %
- Est rental Yield
- 4.95 %Increased by 8.79 %
- Crime Rate
- 10.00 %Unchanged by 0.00 %
Agent Activity
Ben Rose marked this listing as sold.
Ben Rose created the listing.
Nearby Schools
| Name | Type | Ofsted | Distance |
|---|---|---|---|
| St Peter'S Cofe Primary School Chorley | Voluntary Aided School | Good | 0.05 KM |
| St Joseph'S Catholic Primary School, Chorley | Voluntary Aided School | Good | 0.53 KM |
| Highfield Children'S Centre | Children's Centre | 0.61 KM | |
| Highfield Nursery School | Local Authority Nursery School | Outstanding | 0.61 KM |
| Highfield Community Primary School | Community School | Good | 0.66 KM |
Images
Nearby Streets
| Name | Average Price | Average Sqft | Distance |
|---|---|---|---|
| Willow Court | £ 0 | 0 | 0.00 KM |
| Larch Avenue | £ 0 | 0 | 0.00 KM |
| Chestnut Avenue | £ 0 | 0 | 0.00 KM |
| Greenfield Road | £ 0 | 0 | 0.00 KM |
| Gaskell Street | £ 0 | 0 | 0.00 KM |
Nearby Transport
| Name | NLC | TLC | Distance |
|---|---|---|---|
| Chorley | 2745 | CRL | 1.31 KM |
| Buckshaw Parkway | 7501 | BSV | 4.94 KM |
| Adlington (Lancashire) | 2641 | ADL | 5.51 KM |
| Euxton Balshaw Lane | 2080 | EBA | 5.96 KM |
| Leyland | 2710 | LEY | 8.75 KM |
Nearby Listings
| Address | Price | Type | Score | Distance |
|---|---|---|---|---|
| Nab Road, Chorley | £ 139,995 | BUY | 6 / 10 | 0.00 KM |
| Eaves Lane, Chorley, Lancashire, PR6 | £ 175,000 | BUY | 5 / 10 | 0.06 KM |
| Smithills Close, Chorley | £ 189,950 | BUY | 6 / 10 | 0.15 KM |
| Bagganley Lane, Chorley | £ 169,995 | BUY | 5 / 10 | 0.21 KM |
| Blackstone Road, Chorley | £ 104,995 | BUY | 6 / 10 | 0.22 KM |
Nearby Properties
| Address | Price | Distance |
|---|---|---|
| 266 Eaves Lane | £ 148,000 | 0.08 KM |
| 272 Eaves Lane | £ 125,000 | 0.08 KM |
| 264 Eaves Lane | £ 45,000 | 0.08 KM |
| 260 Eaves Lane | £ 144,000 | 0.08 KM |
| 270 Eaves Lane | £ 95,000 | 0.08 KM |