Barkers says ..
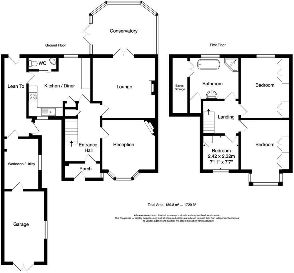
GUIDE PRICE £380,000 - £400.000 A fantastic opportunity to purchase this EXTENDED THREE BEDROOM semi detached house located in a sought after CUL DE SAC location, with a LARGE REAR GARDEN in Aylestone. The house is full of character and charm, briefly comprises porch, entrance...
Property Oracle says ..
Therefore, we give this property 7 / 10. *Disclaimer: This is our option and does constitute a recommendation or financial advice. Do your own research. *
- Price
- 8
- Condition
- 6
- Location
- 8
- Land
- 8
- Bedrooms
- 3
- Bathrooms
- 1
- Sqft (est)
- 1,720.07
The heatmap indicates the level of crime in the area. The color of the heatmap indicates the crime severity and recency.
Metrics Year-on-Year
- Average area value
- 236,429.00 £Decreased by 2.75 %
- Est sale value
- 718,989.26 £Increased by 72.73 %
- Average area rental value
- 1,138.00 £/moIncreased by 31.11 %
- Est letting value
- 3,440.14 £/mo
- Est rental Yield
- 5.78 %Increased by 35.05 %
- Crime Rate
- 3.00 %Unchanged by 0.00 %
from 243,111.00 £
from 416,256.94 £
from 868.00 £/mo
from 0.00 £/mo
from 4.28 %
from 3.00 %
Agent Activity
Barkers created the listing.
Nearby Schools
| Name | Type | Ofsted | Distance |
|---|---|---|---|
| Eyres Monsell Primary School | Community School | Good | 0.75 KM |
| Montrose School | Community School | Good | 0.79 KM |
| Granby Primary School | Community School | Good | 1.20 KM |
| Eyres Monsell And Gilmorton Sure Start Children'S Centre | Children's Centre Linked Site | 1.42 KM | |
| Rolleston Primary School | Community School | Requires improvement | 1.42 KM |
Images
Nearby Streets
| Name | Average Price | Average Sqft | Distance |
|---|---|---|---|
| Glenhills Way | £ 475,000 | 0 | 0.00 KM |
| The Slade Greens | £ 245,000 | 0 | 0.00 KM |
| Pawley Green | £ 130,000 | 0 | 0.00 KM |
| Lutterowrth Road Service Road | £ 603,000 | 0 | 0.00 KM |
| Morcom Drive | £ 406,063 | 0 | 0.00 KM |
Nearby Transport
| Name | NLC | TLC | Distance |
|---|---|---|---|
| South Wigston | 1949 | SWS | 2.83 KM |
| Leicester | 1947 | LEI | 5.06 KM |
| Narborough | 1881 | NBR | 6.05 KM |
Nearby Listings
| Address | Price | Type | Score | Distance |
|---|---|---|---|---|
| Monsell Drive, Leicester | £ 380,000 | BUY | 7 / 10 | 0.00 KM |
| Monsell Drive, Aylestone | £ 350,000 | BUY | 5 / 10 | 0.08 KM |
| Monsell Drive, Leicester, Leicestershire | £ 500,000 | BUY | Unknown | 0.08 KM |
| Glenhills Boulevard, Aylestone | £ 260,000 | BUY | 7 / 10 | 0.23 KM |
| Montrose Avenue, Aylestone, Leicester | £ 245,000 | BUY | Unknown | 0.25 KM |
Nearby Properties
| Address | Price | Distance |
|---|---|---|
| 31 Monsell Drive | £ 215,000 | 0.02 KM |
| 5 Monsell Drive | £ 750,000 | 0.02 KM |
| 19 Monsell Drive | £ 196,500 | 0.02 KM |
| 15 Monsell Drive | £ 505,000 | 0.02 KM |
| 21 Monsell Drive | £ 77,000 | 0.02 KM |