Pyecombe Corner, Woodside Park
RE

Pyecombe Corner, Woodside Park

By Real Estates

£ 1,150,000

Reviews

3 out of 5 stars

Real Estates says ..

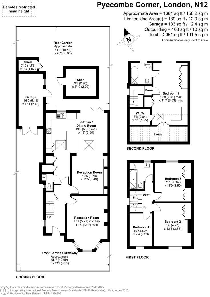
Real Estates are pleased to present this extended and very well maintained FOUR BEDROOM SEMI-DETACHED family home set on a desirable cul-de-sac in the heart of Woodside Park. The ground floor accommodation comprises a separate reception room at the front, with the rear providing a furthe...

Property Oracle says ..

This is a four-bedroom semi-detached house in Woodside Park, Barnet. The property is in good condition and has a modern kitchen and bathrooms. It also has a good-sized garden with a lawn and a patio area. The property is located close to schools and transportation links. However, the property may be overpriced for its size, even considering its condition and location.

Therefore, we give this property 7 / 10. *Disclaimer: This is our option and does constitute a recommendation or financial advice. Do your own research. *

Price
6
Condition
8
Location
7
Land
7
Bedrooms
4
Bathrooms
2
Sqft (est)
500.31

The heatmap indicates the level of crime in the area. The color of the heatmap indicates the crime severity and recency.

Metrics Year-on-Year

Average area value
1,077,389.00 £
Increased by 1.83 %
from 1,058,005.00 £
Est sale value
326,202.12 £
Increased by 8.49 %
from 300,686.31 £
Average area rental value
2,772.00 £/mo
Increased by 5.36 %
from 2,631.00 £/mo
Est letting value
500.31 £/mo
Unchanged by 0.00 %
from 500.31 £/mo
Est rental Yield
3.09 %
Increased by 3.69 %
from 2.98 %
Crime Rate
5.00 %
Unchanged by 0.00 %
from 5.00 %

Agent Activity

  • Real Estates created the listing.

Nearby Schools

NameTypeOfstedDistance
Frith Manor Primary SchoolCommunity SchoolGood0.70 KM
Woodridge Primary SchoolCommunity SchoolGood0.73 KM
The Holmewood SchoolOther Independent Special SchoolGood1.30 KM
St Andrew'S Cofe Voluntary Aided Primary School, TotteridgeVoluntary Aided SchoolGood1.34 KM
Moss Hall Nursery SchoolLocal Authority Nursery SchoolOutstanding1.36 KM

Images

1356609-9-68d28969487ad.jpg 1356609-11-68d2898813b8b.jpg 1356609-12-68d2898f18a3e.jpg 1356609-4-68d28934e203c.jpg 1356609-15-68d289c742df9.jpg 1356609-8-68d2895a7f3d0.jpg 1356609-23-68d28a4b5b3cb.jpg 1356609-17-68d289e46bb3e.jpg 1356609-1-68d289203b9a9.jpg 1356609-7-68d2894a78305.jpg 1356609-20-68d28a113bd03.jpg 1356609-10-68d289794ee1c.jpg 1356609-6-68d28942f2339.jpg 1356609-13-68d289a778fc6.jpg 1356609-19-68d28a0234354.jpg 1356609-16-68d289d63de4d.jpg 1356609-14-68d289b6a9021.jpg 1356609-24-68d28a5ad9329.jpg 1356609-22-68d28a3d8f6c7.jpg 1356609-3-68d2892e3edd3.jpg 1356609-25-68d28a6a9fdf8-ARW.jpg 1356609-18-68d289f3f1468.jpg 1356609-21-68d28a2eea1a3.jpg 1356609-5-68d2893b7febd.jpg 1356609-2-68d28926debeb.jpg

Nearby Streets

NameAverage PriceAverage SqftDistance
Station Approach £ 000.00 KM
The Close £ 3,950,00000.00 KM
Adams Close £ 550,00000.00 KM
Woodside Court £ 850,00000.00 KM
School House Lane £ 419,50000.00 KM

Nearby Transport

NameNLCTLCDistance
Oakleigh Park6020OKL4.00 KM
New Barnet6018NBA4.29 KM
Mill Hill Broadway1527MIL5.86 KM
New Southgate6019NSG5.92 KM
Hadley Wood6075HDW6.06 KM

Nearby Listings

AddressPriceTypeScoreDistance
Pyecombe Corner, Woodside Park £ 1,150,000BUY7 / 100.00 KM
Chanctonbury Way, Woodside Park £ 925,000BUY6 / 100.05 KM
Pyecombe Corner, Woodside Park £ 1,150,000BUYUnknown0.07 KM
Cissbury Ring North, Woodside Park £ 1,649,995BUY7 / 100.11 KM
Cissbury Ring North, Woodside Park £ 1,300,000BUYUnknown0.13 KM

Nearby Properties

AddressPriceDistance
23 Pyecombe Corner £ 468,0000.03 KM
1 Pyecombe Corner £ 800,0000.03 KM
27 Pyecombe Corner £ 375,0000.03 KM
11 Pyecombe Corner £ 599,9500.03 KM
4 Pyecombe Corner £ 650,0000.03 KM