Cannington Road, Witheridge, Tiverton
By Stags
£ 250,000
Reviews
3 out of 5 stars
Stags says ..
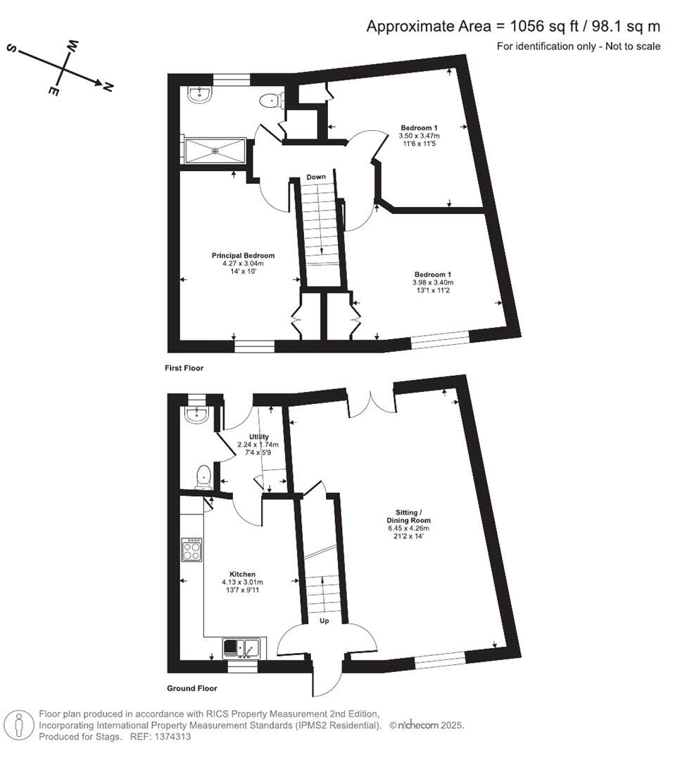
A well-presented, three-bedroom, mid-terrace property offering an enclosed rear garden, off-road parking and garage, located within the village of Witheridge. Spacious Sitting Room. Modern Fitted Kitchen with Separate Utility. Excellent Amenities. Council Tax Band B. EPC Band C. Freehold.
Property Oracle says ..
This is a three-bedroom terraced house located in the village of Witheridge, North Devon. The property appears to be in good condition, with a modern kitchen and bathroom. It benefits from a garden. The house is situated in a rural location, which may appeal to those seeking a quieter lifestyle. The property is near a primary school, making it suitable for families with young children. The asking price of £250,000 seems reasonable when compared to similar properties in the area and the average price per square foot.
Therefore, we give this property 7 / 10. *Disclaimer: This is our option and does constitute a recommendation or financial advice. Do your own research. *
- Price
- 8
- Condition
- 8
- Location
- 6
- Land
- 6
- Bedrooms
- 3
- Bathrooms
- 2
- Sqft (est)
- 1,055.94
The heatmap indicates the level of crime in the area. The color of the heatmap indicates the crime severity and recency.
Metrics Year-on-Year
- Average area value
- 661,000.00 £Increased by 29.29 %
- Est sale value
- 572,319.48 £Increased by 47.28 %
- Average area rental value
- 2,410.00 £/moIncreased by 120.90 %
- Est letting value
- 1,055.94 £/mo
- Est rental Yield
- 4.38 %Increased by 71.09 %
- Crime Rate
- 75.00 %Unchanged by 0.00 %
Agent Activity
Stags created the listing.
Nearby Schools
| Name | Type | Ofsted | Distance |
|---|---|---|---|
| Witheridge Church Of England Primary Academy | Academy Converter | Good | 0.79 KM |
| East Worlington Primary School | Academy Converter | Good | 4.21 KM |
| Morchard Bishop Church Of England Primary School | Academy Converter | 7.99 KM | |
| Rackenford Church Of England Primary School | Voluntary Aided School | Good | 8.61 KM |
Images
Nearby Streets
| Name | Average Price | Average Sqft | Distance |
|---|---|---|---|
| Ansteys Court | £ 0 | 0 | 0.00 KM |
| B3137 | £ 0 | 0 | 0.00 KM |
Nearby Listings
| Address | Price | Type | Score | Distance |
|---|---|---|---|---|
| Cannington Road, Witheridge, Tiverton | £ 250,000 | BUY | 7 / 10 | 0.00 KM |
| Cannington Road, Witheridge, Tiverton, EX16 | £ 250,000 | BUY | 7 / 10 | 0.01 KM |
| Cannington Road, Witheridge, Tiverton, Devon, EX16 | £ 230,000 | BUY | 7 / 10 | 0.02 KM |
| Drayford Lane, Witheridge, Devon, EX16 | £ 325,000 | BUY | 8 / 10 | 0.12 KM |
| Drayford Lane, Witheridge, Tiverton | £ 450,000 | BUY | Unknown | 0.12 KM |
Nearby Properties
| Address | Price | Distance |
|---|---|---|
| 39 Cannington Road | £ 225,000 | 0.02 KM |
| 30 Cannington Road | £ 220,000 | 0.02 KM |
| 38 Cannington Road | £ 187,000 | 0.02 KM |
| 8 Cannington Road | £ 160,000 | 0.02 KM |
| 37 Cannington Road | £ 187,000 | 0.02 KM |