Lower Townend Road, Wooldale, Holmfirth, HD9
By WM. Sykes & Son
£ 450,000
Reviews
3 out of 5 stars
WM. Sykes & Son says ..
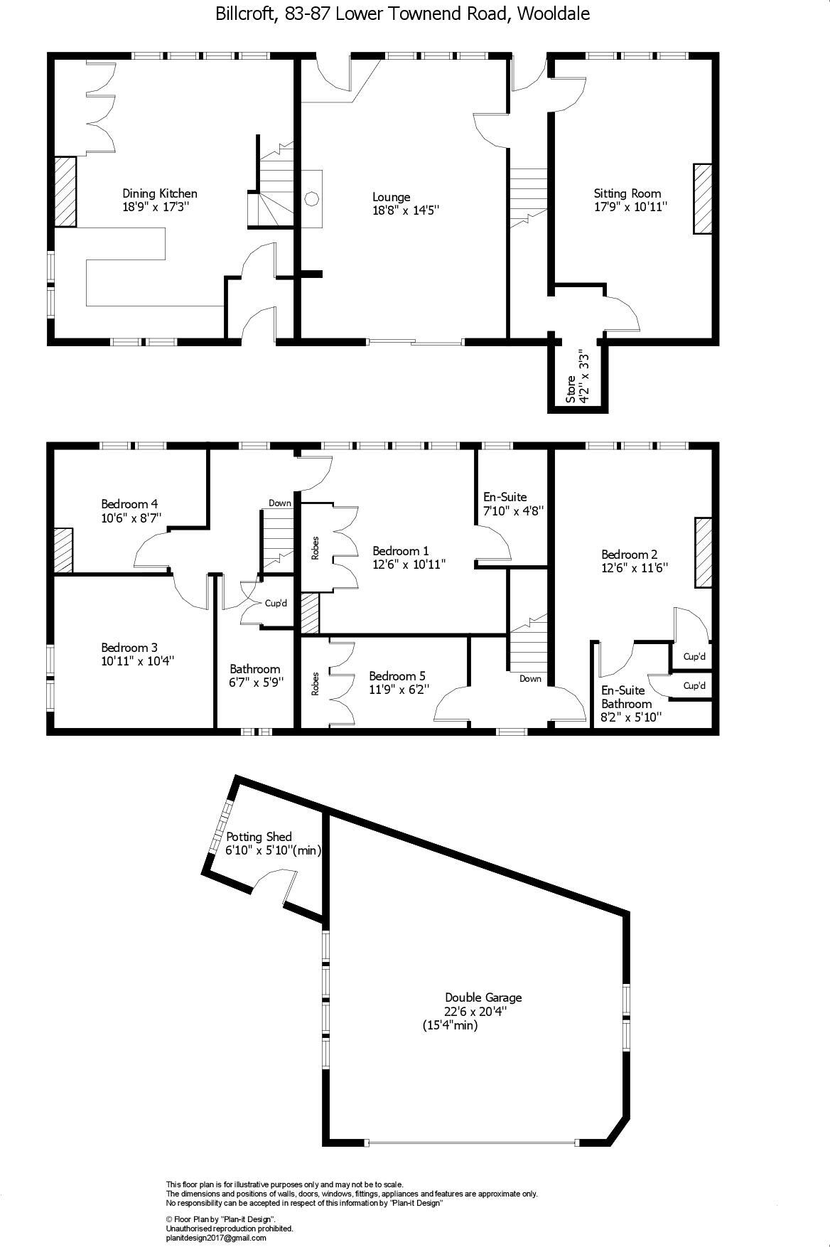
A superb opportunity to purchase this stone built detached cottage located in this most sought after village setting. The property was formerly 3 cottages which are combined into a spacious and flexible single dwelling. It comprises: entrance hall, lounge, sitting room, dining kitchen, 2 landin...
Property Oracle says ..
A detached property in Wooldale, Holmfirth, featuring 5 bedrooms and 3 bathrooms. The property is a traditional build and retains some of its original features. The interior photos show that the property may benefit from some modernisation. The property includes a garden and is competitively priced compared to the local average.
Therefore, we give this property 7 / 10. *Disclaimer: This is our option and does constitute a recommendation or financial advice. Do your own research. *
- Price
- 8
- Condition
- 6
- Location
- 8
- Land
- 7
- Bedrooms
- 5
- Bathrooms
- 3
- Sqft (est)
- 1,964.30
The heatmap indicates the level of crime in the area. The color of the heatmap indicates the crime severity and recency.
Metrics Year-on-Year
- Average area value
- 454,991.00 £Increased by 10.16 %
- Est sale value
- 587,325.70 £Decreased by 8.00 %
- Average area rental value
- 1,126.00 £/moDecreased by 3.35 %
- Est letting value
- 0.00 £/mo
- Est rental Yield
- 2.97 %Decreased by 12.13 %
- Crime Rate
- 10.00 %Unchanged by 0.00 %
Agent Activity
WM. Sykes & Son created the listing.
Nearby Schools
| Name | Type | Ofsted | Distance |
|---|---|---|---|
| Holmfirth High School | Community School | Good | 0.41 KM |
| New Mill Infant School | Academy Sponsor Led | 0.60 KM | |
| New Mill Junior School | Academy Converter | 1.08 KM | |
| Brockholes Church Of England Voluntary Controlled Junior And Infant School | Voluntary Controlled School | Outstanding | 1.79 KM |
| Scholes (Holmfirth) J & I School | Community School | Requires improvement | 2.03 KM |
Images
Nearby Streets
| Name | Average Price | Average Sqft | Distance |
|---|---|---|---|
| Co-Operative Terrace | £ 220,000 | 0 | 0.00 KM |
| Meadow View | £ 0 | 0 | 0.00 KM |
| Woodland Grove | £ 390,000 | 0 | 0.00 KM |
| Summer View | £ 535,000 | 0 | 0.00 KM |
| Woodlands Avenue | £ 0 | 0 | 0.00 KM |
Nearby Transport
| Name | NLC | TLC | Distance |
|---|---|---|---|
| Brockholes | 8429 | BHS | 2.01 KM |
| Honley | 8436 | HOY | 3.41 KM |
| Berry Brow | 8431 | BBW | 5.25 KM |
| Stocksmoor | 8451 | SSM | 5.62 KM |
| Lockwood | 8443 | LCK | 6.98 KM |
Nearby Listings
| Address | Price | Type | Score | Distance |
|---|---|---|---|---|
| Lower Townend Road, Wooldale, Holmfirth, HD9 | £ 450,000 | BUY | 7 / 10 | 0.00 KM |
| Bill Lane, Wooldale, Holmfirth, HD9 | £ 400,000 | BUY | 6 / 10 | 0.03 KM |
| Leyfield Bank, Wooldale , Holmfirth, HD9 | £ 725,000 | BUY | 8 / 10 | 0.07 KM |
| Lower Town End Road, Holmfirth | £ 495,000 | BUY | 6 / 10 | 0.09 KM |
| Leyfield Bank, Wooldale, Holmfirth, HD9 | £ 425,000 | BUY | Unknown | 0.12 KM |
Nearby Properties
| Address | Price | Distance |
|---|---|---|
| Holmfield | £ 345,000 | 0.04 KM |
| Overdale | £ 290,000 | 0.04 KM |
| Linden Lea | £ 252,500 | 0.04 KM |
| 110 Lower Town End Road | £ 344,000 | 0.09 KM |
| 101 - 103 Lower Town End Road | £ 400,000 | 0.09 KM |