eXp UK says ..
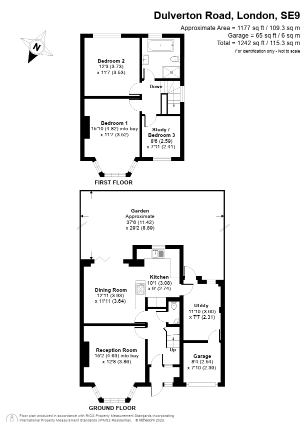
New to the market is this beautifully presented, immaculate 3 bedroom semi-detached house. Internally the house has been refurbished from top to bottom, with real attention to detail throughout. The kitchen and dining room have been opened up to create a bright and airy open plan spac...
Property Oracle says ..
The property is located in the Longlands area of Bexley, in South East London. The area benefits from being close to Dulverton Primary School, which has a good Ofsted rating, and other well-regarded primary schools within a reasonable distance. New Eltham train station is also nearby, providing convenient access to Southeastern train services. The proximity to good schools and transport links makes this a desirable location for families.
Based on the images provided, the property appears to be in excellent condition. It has been recently renovated or extended, featuring a modern kitchen, updated bathrooms, and a contemporary interior design. There is no visible evidence of wear and tear or necessary repairs. The property appears well-maintained and updated.
The property includes a good-sized garden with a patio area and a pergola, providing ample outdoor space. The garden is well-maintained and landscaped, adding to the overall appeal of the property.
Considering the property’s excellent condition, desirable location, and inclusion of a garden, the list price of £675,000 appears to be slightly above the average price for the area (£570,902). However, the property’s size (1,177 sq ft) is slightly larger than the average (1,154 sq ft) and its modern updates and excellent condition justify a higher price per square foot than the average (£494). Nearby comparable properties on Dulverton Road have sold for prices ranging from £260,000 to £480,000, but these properties may not have undergone the same level of renovation. Therefore, while the list price is higher than the average, it is not unreasonable given the property’s features and the current market conditions.
Therefore, we give this property 8 / 10. *Disclaimer: This is our option and does constitute a recommendation or financial advice. Do your own research. *
- Price
- 7
- Condition
- 10
- Location
- 9
- Land
- 8
- Bedrooms
- 3
- Bathrooms
- 1
- Sqft (est)
- 1,177.00
The heatmap indicates the level of crime in the area. The color of the heatmap indicates the crime severity and recency.
Metrics Year-on-Year
- Average area value
- 766,667.00 £Increased by 46.02 %
- Est sale value
- 677,952.00 £Increased by 10.98 %
- Average area rental value
- 1,688.00 £/moIncreased by 7.86 %
- Est letting value
- 1,177.00 £/moUnchanged by 0.00 %
- Est rental Yield
- 2.64 %Decreased by 26.26 %
- Crime Rate
- 2.00 %Unchanged by 0.00 %
Agent Activity
eXp UK created the listing.
Nearby Schools
| Name | Type | Ofsted | Distance |
|---|---|---|---|
| Dulverton Primary School | Community School | Good | 0.28 KM |
| Wyborne Primary School | Community School | Good | 1.04 KM |
| St Olave'S Prep School | Other Independent School | 1.32 KM | |
| Edgebury Primary School | Foundation School | Good | 1.32 KM |
| Longlands Primary School | Community School | Good | 1.48 KM |
Images
Nearby Streets
| Name | Average Price | Average Sqft | Distance |
|---|---|---|---|
| Brendon Road | £ 0 | 0 | 0.00 KM |
| Roberts Close | £ 300,000 | 0 | 0.00 KM |
| Braemar Gardens | £ 0 | 0 | 0.00 KM |
| Buckingham Drive | £ 0 | 0 | 0.00 KM |
| Dorrit Way | £ 0 | 0 | 0.00 KM |
Nearby Transport
| Name | NLC | TLC | Distance |
|---|---|---|---|
| New Eltham | 5119 | NEH | 0.85 KM |
| Falconwood | 5137 | FCN | 2.59 KM |
| Sidcup | 5125 | SID | 2.87 KM |
| Mottingham | 5118 | MTG | 3.12 KM |
| Eltham | 5103 | ELW | 3.57 KM |
Nearby Listings
| Address | Price | Type | Score | Distance |
|---|---|---|---|---|
| Brendon Road, London | £ 800,000 | BUY | Unknown | 0.12 KM |
| Agaton Road, London | £ 600,000 | BUY | 6 / 10 | 0.14 KM |
| Chartwell Close, New Eltham | £ 475,000 | BUY | 6 / 10 | 0.17 KM |
| Agaton Road, London, SE9 3RN | £ 650,000 | BUY | Unknown | 0.19 KM |
| Keightley Drive, New Eltham | £ 475,000 | BUY | 7 / 10 | 0.22 KM |
Nearby Properties
| Address | Price | Distance |
|---|---|---|
| 13 Dulverton Road | £ 480,000 | 0.01 KM |
| 21 Dulverton Road | £ 840,000 | 0.01 KM |
| 27 Dulverton Road | £ 265,000 | 0.01 KM |
| 11 Dulverton Road | £ 475,000 | 0.01 KM |
| 53 Dulverton Road | £ 645,000 | 0.01 KM |