Moginie James says ..
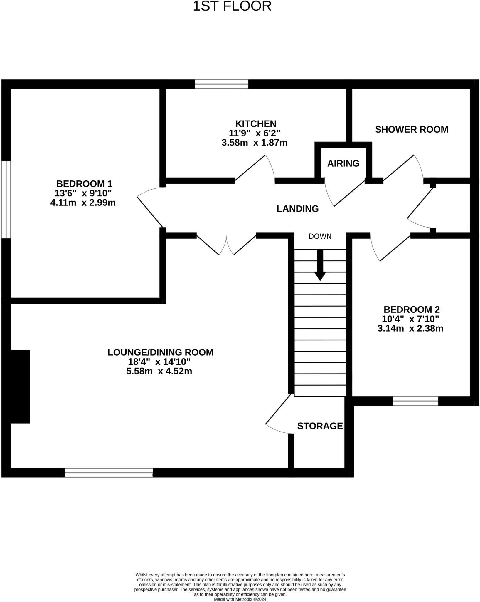
Presenting a delightful, two-bedroom first floor retirement flat currently on the market for sale. This property boasts a generous reception room, offering an environment that is perfect for relaxing or entertaining guests. The property also benefits from a modern fitted kitchen. The a...
Property Oracle says ..
This is a 2-bedroom apartment located on Cyncoed Avenue in Cardiff. The property is in a good location, close to local amenities and schools. The apartment appears to be in good condition, with a modern kitchen and bathroom. The property benefits from a small garden. The asking price of £180,000 seems reasonable for the location and condition of the property. The apartment is approximately 668.02 sqft, which is below the average property size in the area. Overall, this property presents a good opportunity for first-time buyers or investors looking for a property in a desirable location.
Therefore, we give this property 6 / 10. *Disclaimer: This is our option and does constitute a recommendation or financial advice. Do your own research. *
- Price
- 8
- Condition
- 7
- Location
- 7
- Land
- 3
- Bedrooms
- 2
- Bathrooms
- 1
- Sqft (est)
- 668.02
The heatmap indicates the level of crime in the area. The color of the heatmap indicates the crime severity and recency.
Metrics Year-on-Year
- Average area value
- 426,856.00 £Decreased by 18.03 %
- Est sale value
- 297,936.92 £Increased by 12.34 %
- Average area rental value
- 1,798.00 £/moIncreased by 6.58 %
- Est letting value
- 668.02 £/moUnchanged by 0.00 %
- Est rental Yield
- 5.05 %Increased by 29.82 %
- Crime Rate
- 2.00 %Unchanged by 0.00 %
Agent Activity
Moginie James created the listing.
Nearby Schools
| Name | Type | Ofsted | Distance |
|---|---|---|---|
| Springwood Primary School | Welsh Establishment | 0.55 KM | |
| Lakeside Primary School | Welsh Establishment | 1.10 KM | |
| All Saints C.I.W. Primary School | Welsh Establishment | 1.20 KM | |
| St Phillip Evans R.C. Primary School | Welsh Establishment | 1.24 KM | |
| Cardiff High School | Welsh Establishment | 1.53 KM |
Images
Nearby Streets
| Name | Average Price | Average Sqft | Distance |
|---|---|---|---|
| Cyn-Coed Avenue | £ 788,333 | 0 | 0.00 KM |
| Cyn-Coed Crescent | £ 885,000 | 0 | 0.00 KM |
| St Edeyrn's Close | £ 975,000 | 0 | 0.00 KM |
| Glenwood | £ 250,000 | 0 | 0.00 KM |
| St Edeyrn's Road | £ 542,000 | 0 | 0.00 KM |
Nearby Transport
| Name | NLC | TLC | Distance |
|---|---|---|---|
| Heath High Level | 3845 | HHL | 2.31 KM |
| Heath Low Level | 3908 | HLL | 2.37 KM |
| Llanishen | 3847 | LLS | 2.82 KM |
| Cathays | 3820 | CYS | 3.86 KM |
| Ty Glas | 3817 | TGS | 3.97 KM |
Nearby Listings
| Address | Price | Type | Score | Distance |
|---|---|---|---|---|
| Cyncoed Avenue, Cardiff | £ 180,000 | BUY | 6 / 10 | 0.00 KM |
| Clarendon, Cyncoed, Cardiff | £ 180,000 | BUY | 5 / 10 | 0.00 KM |
| Glenwood, Cardiff | £ 230,000 | BUY | 6 / 10 | 0.15 KM |
| Hollybush Road, Cyncoed, Cardiff, CF23 | £ 895,000 | BUY | Unknown | 0.18 KM |
| Cyncoed Avenue, Cyncoed, Cardiff | £ 850,000 | BUY | 7 / 10 | 0.20 KM |
Nearby Properties
| Address | Price | Distance |
|---|---|---|
| 6 Cyncoed Crescent | £ 370,000 | 0.13 KM |
| 54 Glenwood | £ 200,000 | 0.15 KM |
| 56 Glenwood | £ 165,000 | 0.15 KM |
| 41 Glenwood | £ 225,000 | 0.15 KM |
| 47 Glenwood | £ 161,000 | 0.15 KM |