Victory Close, Bury St. Edmunds
Sheridans logo

Victory Close, Bury St. Edmunds

By Sheridans

£ 360,000

Reviews

3 out of 5 stars

Sheridans says ..

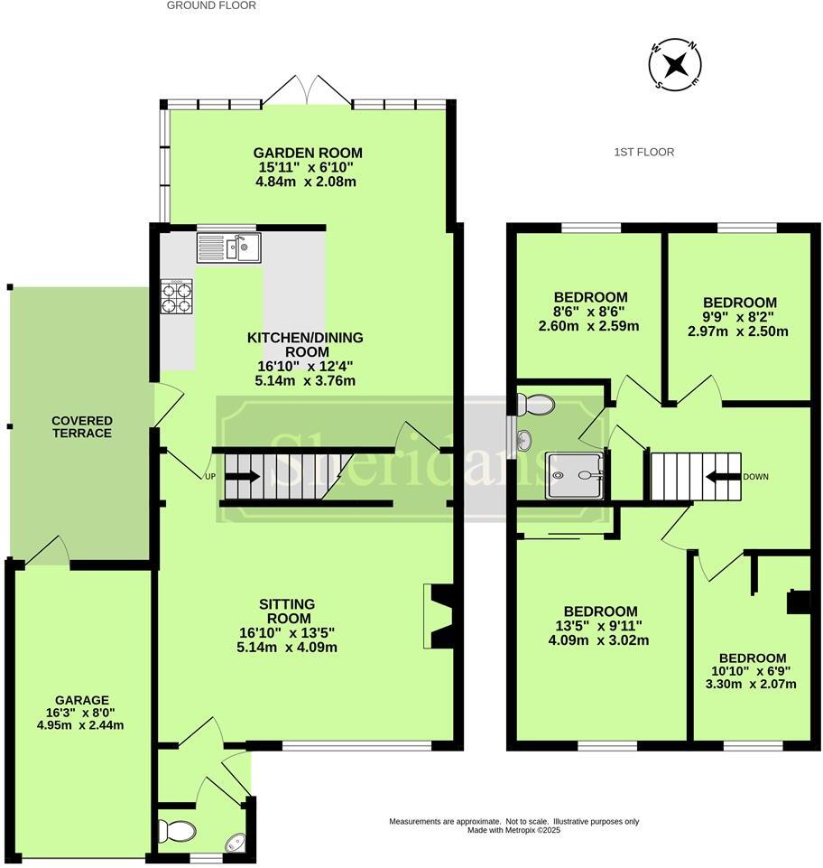
A spacious semi detached house enjoying a popular town setting situated a stones throw from the magnificent Nowton Park. Built of traditional brick construction beneath a tiled roof and much improved and extended in more recent years, this delightful house provides well proportione...

Property Oracle says ..

This property is a 4-bedroom, 1-bathroom semi-detached house located in Victory Close, Bury St Edmunds. The property benefits from a conservatory, garage, and a garden. The location is convenient with nearby schools and transportation links. The interior appears well-maintained and modern, with updated kitchen and bathroom fixtures. The list price is slightly below the average price for the area, but comparable to similar properties on Victory Close. The lack of plot size information makes a definitive statement on land value difficult.

Therefore, we give this property 7 / 10. *Disclaimer: This is our option and does constitute a recommendation or financial advice. Do your own research. *

Price
7
Condition
8
Location
7
Land
7
Bedrooms
4
Bathrooms
1
Sqft (est)
1,109.76

The heatmap indicates the level of crime in the area. The color of the heatmap indicates the crime severity and recency.

Metrics Year-on-Year

Average area value
488,748.00 £
Decreased by 5.95 %
from 519,665.00 £
Est sale value
552,660.48 £
Decreased by 4.60 %
from 579,294.72 £
Average area rental value
1,587.00 £/mo
Decreased by 5.76 %
from 1,684.00 £/mo
Est letting value
1,109.76 £/mo
Unchanged by 0.00 %
from 1,109.76 £/mo
Est rental Yield
3.90 %
Increased by 0.26 %
from 3.89 %
Crime Rate
7.00 %
Unchanged by 0.00 %
from 7.00 %

Agent Activity

  • Sheridans created the listing.

Nearby Schools

NameTypeOfstedDistance
South Lee SchoolOther Independent School0.32 KM
Hardwick Children'S CentreChildren's Centre0.40 KM
Hardwick Primary SchoolAcademy Converter0.59 KM
Riverwalk SchoolAcademy Special Converter1.09 KM
Learning Support, Western Area Education OfficeMiscellaneous1.18 KM

Images

DCP_1181.jpg DCP_1187.jpg DCP_1184.jpg DCP_1157.jpg DCP_1160.jpg DCP_1163.jpg DCP_1166.jpg DCP_1154.jpg DCP_1193.jpg DCP_1199.jpg DCP_1195.jpg DCP_1197.jpg DCP_1200.jpg DCP_1198.jpg DCP_1175.jpg DCP_1172.jpg DCP_1178.jpg 1-DSC01937.jpg 2-DSC01941.jpg

Nearby Streets

NameAverage PriceAverage SqftDistance
Victory Close £ 000.00 KM
Haven Close £ 000.00 KM
Vale Lane £ 180,00000.00 KM
Wilks Road £ 250,00000.00 KM
Sandpiper Road £ 252,50000.00 KM

Nearby Transport

NameNLCTLCDistance
Bury St Edmunds7008BSE2.89 KM
Thurston7356TRS9.18 KM

Nearby Listings

AddressPriceTypeScoreDistance
Victory Close, Bury St. Edmunds £ 360,000BUY7 / 100.00 KM
Victory Close, Bury St Edmunds £ 290,000BUY6 / 100.02 KM
Bury St. Edmunds, Suffolk £ 295,000BUY7 / 100.05 KM
Bury Park Drive, Bury St. Edmunds £ 325,000BUY7 / 100.09 KM
Nowton Road, Bury St Edmunds £ 350,000BUY7 / 100.19 KM

Nearby Properties

AddressPriceDistance
5 Victory Close £ 219,5000.06 KM
15 Victory Close £ 277,0000.06 KM
14 Victory Close £ 192,0000.06 KM
2 Victory Close £ 250,0000.06 KM
6 Victory Close £ 370,0000.06 KM