Brooklyn Road, Clayton Le Dale
Keenans Estate Agents logo

Brooklyn Road, Clayton Le Dale

By Keenans Estate Agents

£ 239,950

Reviews

4 out of 5 stars

Keenans Estate Agents says ..

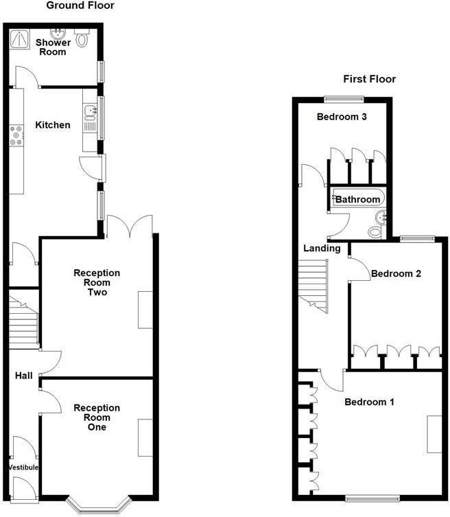
BRIGHT THREE BEDROOM MID TERRACE PROPERTY IN THE HEART OF THE RIBBLE VALLEY Situated in the desirable area of Clayton Le Dale, this charming mid-terrace house on Brooklyn Road offers a perfect blend of comfort and convenience. With three spacious bedrooms, this property is ideal for fam...

Property Oracle says ..

Therefore, we give this property 8 / 10. *Disclaimer: This is our option and does constitute a recommendation or financial advice. Do your own research. *

Price
9
Condition
8
Location
8
Land
7
Bedrooms
3
Bathrooms
2
Sqft (est)
910.00

The heatmap indicates the level of crime in the area. The color of the heatmap indicates the crime severity and recency.

Metrics Year-on-Year

Average area value
259,995.00 £
Increased by 9.02 %
from 238,494.00 £
Est sale value
394,940.00 £
Increased by 24.36 %
from 317,590.00 £
Average area rental value
1,233.00 £/mo
Increased by 108.28 %
from 592.00 £/mo
Est letting value
1,820.00 £/mo
from 0.00 £/mo
Est rental Yield
5.69 %
Increased by 90.94 %
from 2.98 %
Crime Rate
7.00 %
Unchanged by 0.00 %
from 7.00 %

Agent Activity

  • Keenans Estate Agents created the listing.

Nearby Schools

NameTypeOfstedDistance
Salesbury Church Of England Primary SchoolVoluntary Aided SchoolGood1.25 KM
St Gabriel'S Church Of England Primary SchoolVoluntary Aided SchoolOutstanding1.70 KM
Roe Lee Park Primary SchoolCommunity SchoolGood1.70 KM
Holy Souls Roman Catholic Primary School BlackburnVoluntary Aided SchoolGood1.76 KM
Pleckgate High SchoolAcademy Sponsor LedOutstanding2.15 KM

Images

IMG_7316.jpg IMG_7331.jpg IMG_7325.jpg IMG_7351.jpg IMG_7369.jpg IMG_7332.jpg IMG_7354.jpg IMG_7347.jpg IMG_7334.jpg IMG_7341.jpg IMG_7362.jpg IMG_7363.jpg IMG_7320.jpg IMG_7317.jpg IMG_7321.jpg IMG_7353.jpg IMG_7326.jpg IMG_7357.jpg IMG_7333.jpg IMG_7336.jpg IMG_7349.jpg IMG_7329.jpg IMG_7327.jpg IMG_7343.jpg IMG_7335.jpg IMG_7330.jpg IMG_7371.jpg IMG_7361.jpg IMG_7348.jpg IMG_7342.jpg IMG_7319.jpg IMG_7337.jpg IMG_7340.jpg IMG_7352.jpg IMG_7360.jpg IMG_7368.jpg

Nearby Streets

NameAverage PriceAverage SqftDistance
Clifton Grove £ 000.00 KM
Maple Close £ 000.00 KM
Waverley Road £ 375,00000.00 KM
Walden Road £ 000.00 KM
Durham Drive £ 464,97500.00 KM

Nearby Transport

NameNLCTLCDistance
Ramsgreave And Wilpshire2734RGW0.59 KM
Langho2735LHO4.04 KM
Blackburn2737BBN4.27 KM
Mill Hill (Lancs)2750MLH6.04 KM
Rishton2580RIS6.94 KM

Nearby Listings

AddressPriceTypeScoreDistance
Brooklyn Road, Clayton Le Dale £ 239,950BUY8 / 100.00 KM
Knowsley Road, Wilpshire £ 750,000BUY7 / 100.09 KM
Knowsley Road, Wilpshire, Blackburn, BB1 9PN £ 390,000BUY7 / 100.16 KM
Knowsley Road, Wilpshire, Blackburn, Lancashire, BB1 £ 450,000BUYUnknown0.16 KM
Knowsley Road, Wilpshire, Blackburn, Lancashire, BB1 £ 450,000BUY7 / 100.16 KM

Nearby Properties

AddressPriceDistance
7 Brooklyn Road £ 209,5000.01 KM
8 Brooklyn Road £ 200,0000.01 KM
15 Brooklyn Road £ 250,0000.01 KM
2 Brooklyn Road £ 177,0000.03 KM
23 Brooklyn Road £ 120,0000.03 KM