JA
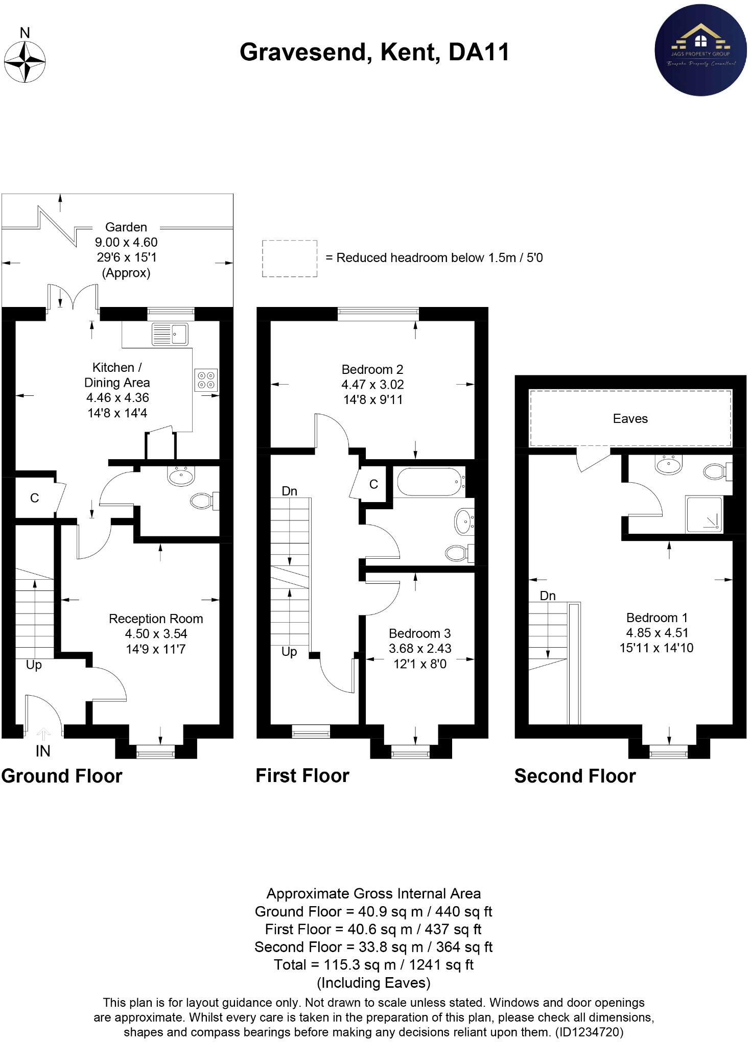
Crete Hall Road, Northfleet, Gravesend, Kent, DA11
By Jags Property Group
£ 400,000
Reviews
3 out of 5 stars
Jags Property Group says ..
Stunning Three Bedroom Home In Northfleet – Master Suite, Private Garden & Parking
Property Oracle says ..
Therefore, we give this property 7 / 10. *Disclaimer: This is our option and does constitute a recommendation or financial advice. Do your own research. *
- Price
- 8
- Condition
- 9
- Location
- 7
- Land
- 6
- Bedrooms
- 3
- Bathrooms
- 2
- Sqft (est)
- 1,287.50
The heatmap indicates the level of crime in the area. The color of the heatmap indicates the crime severity and recency.
Metrics Year-on-Year
- Average area value
- 257,500.00 £Increased by 0.03 %
- Est sale value
- 530,450.00 £Increased by 62.85 %
- Average area rental value
- 1,610.00 £/moIncreased by 45.31 %
- Est letting value
- 2,575.00 £/moIncreased by 100.00 %
- Est rental Yield
- 7.50 %Increased by 45.35 %
- Crime Rate
- 3.00 %Unchanged by 0.00 %
from 257,433.00 £
from 325,737.50 £
from 1,108.00 £/mo
from 1,287.50 £/mo
from 5.16 %
from 3.00 %
Agent Activity
Jags Property Group created the listing.
Nearby Schools
| Name | Type | Ofsted | Distance |
|---|---|---|---|
| Northfleet Nursery School | Local Authority Nursery School | Outstanding | 0.41 KM |
| Copperfield Academy | Academy Sponsor Led | Good | 0.93 KM |
| Rosherville Church Of England Academy | Academy Sponsor Led | 1.07 KM | |
| St Botolph'S Church Of England Primary School | Academy Converter | Good | 1.17 KM |
| Mayfield Grammar School, Gravesend | Academy Converter | Outstanding | 1.23 KM |
Images
Nearby Streets
| Name | Average Price | Average Sqft | Distance |
|---|---|---|---|
| Henley Approach | £ 96,000 | 0 | 0.00 KM |
| Geneive Road | £ 436,000 | 0 | 0.00 KM |
| Berwick Square | £ 0 | 0 | 0.00 KM |
| Mottram Road | £ 0 | 0 | 0.00 KM |
| Crete Hall Road | £ 339,739 | 0 | 0.00 KM |
Nearby Transport
| Name | NLC | TLC | Distance |
|---|---|---|---|
| Gravesend | 5172 | GRV | 1.65 KM |
| Tilbury Town | 7462 | TIL | 1.95 KM |
| Northfleet | 5120 | NFL | 3.08 KM |
| Ebbsfleet International | 5566 | EBD | 3.47 KM |
| Swanscombe | 5156 | SWM | 4.74 KM |
Nearby Listings
| Address | Price | Type | Score | Distance |
|---|---|---|---|---|
| Crete Hall Road, Northfleet, Gravesend, Kent, DA11 | £ 400,000 | BUY | 7 / 10 | 0.00 KM |
| Geneive Road, Gravesend, Kent | £ 297,500 | BUY | 6 / 10 | 0.09 KM |
| Geneive Road, Gravesend, Kent | £ 450,000 | BUY | 6 / 10 | 0.09 KM |
| Henley Approach, Northfleet, Gravesend, Kent | £ 315,000 | BUY | 6 / 10 | 0.11 KM |
| Henley Approach, Northfleet, Gravesend, Kent | £ 300,000 | BUY | 5 / 10 | 0.11 KM |
Nearby Properties
| Address | Price | Distance |
|---|---|---|
| 92 Fountain Walk | £ 169,995 | 0.24 KM |
| 95 Fountain Walk | £ 167,000 | 0.24 KM |
| 86 Fountain Walk | £ 285,000 | 0.24 KM |
| 83 Fountain Walk | £ 179,950 | 0.24 KM |
| 66a Burch Road | £ 145,000 | 0.24 KM |