Mistle Thrush Drive, Northstowe
By Arkwright & Co
£ 180,000
Reviews
3 out of 5 stars
Arkwright & Co says ..
A fantastic opportunity to acquire this modern, three bedroom, semi-detached home in Northstowe. The property is available under the shared ownership scheme.
Property Oracle says ..
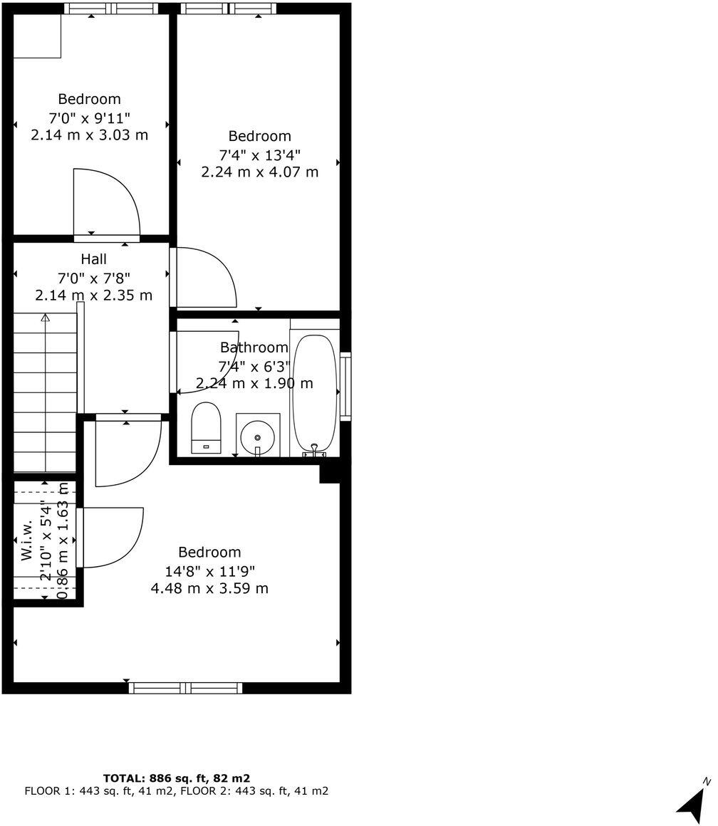
This three-bedroom, semi-detached house in Northstowe, Cambridgeshire, is listed at £180,000. The property benefits from a modern design and what appears to be a good standard of finish. The kitchen and bathrooms present a clean and updated look. The inclusion of a garden, albeit small, is a plus. The location offers proximity to schools, specifically Pathfinder Cofe Primary School, making it potentially attractive to families. However, the property’s listing shows it is under a shared ownership scheme, which may limit the level of ownership. The lack of data on the plot size and the absence of detailed transport information prevent a complete picture of the property’s value. The significant price variation of comparable properties in the area suggests further investigation into individual property features and the specifics of the shared ownership scheme is necessary to fully assess the property’s suitability and value. The limited information provided prevents a conclusive assessment of the overall value and therefore necessitates further research. The images provided offer a visual assessment of the house, but more information would be needed from a survey and inspection of the property to provide a more accurate conclusion.
Therefore, we give this property 6 / 10. *Disclaimer: This is our option and does constitute a recommendation or financial advice. Do your own research. *
- Price
- 6
- Condition
- 7
- Location
- 7
- Land
- 4
- Bedrooms
- 3
- Bathrooms
- 2
- Sqft (est)
- 882.64
The heatmap indicates the level of crime in the area. The color of the heatmap indicates the crime severity and recency.
Metrics Year-on-Year
- Average area value
- 457,116.00 £Decreased by 2.18 %
- Est sale value
- 482,804.08 £Increased by 3.01 %
- Average area rental value
- 1,475.00 £/moDecreased by 15.71 %
- Est letting value
- 882.64 £/moUnchanged by 0.00 %
- Est rental Yield
- 3.87 %Decreased by 13.81 %
- Crime Rate
- 36.00 %Unchanged by 0.00 %
Agent Activity
Arkwright & Co created the listing.
Nearby Schools
| Name | Type | Ofsted | Distance |
|---|---|---|---|
| Pathfinder Cofe Primary School | Academy Converter | 0.17 KM | |
| Hatton Park Primary School | Academy Sponsor Led | Good | 0.92 KM |
| The Martin Bacon Academy | Free Schools Special | 1.75 KM | |
| Northstowe Secondary College | Academy Converter | 1.84 KM | |
| Willingham Primary School | Community School | Good | 2.74 KM |
Images
Nearby Streets
| Name | Average Price | Average Sqft | Distance |
|---|---|---|---|
| Mallard Close | £ 0 | 0 | 0.00 KM |
| Bus/bike Spine Road | £ 0 | 0 | 0.00 KM |
| Green Lane | £ 0 | 0 | 0.00 KM |
| Bunker Drive | £ 0 | 0 | 0.00 KM |
| Sandpit Lane | £ 365,000 | 0 | 0.00 KM |
Nearby Listings
| Address | Price | Type | Score | Distance |
|---|---|---|---|---|
| Mistle Thrush Drive, Northstowe | £ 180,000 | BUY | 6 / 10 | 0.00 KM |
| Northstowe, CB24 1BX | £ 150,000 | BUY | 7 / 10 | 0.00 KM |
| Pathfinder Way, Northstowe, Cambridge | £ 102,500 | BUY | Unknown | 0.03 KM |
| Hosel Road, Northstowe, Cambridgeshire, CB24 | £ 420,000 | BUY | 8 / 10 | 0.08 KM |
| Pathfinder Way, Northstowe | £ 102,500 | BUY | 6 / 10 | 0.08 KM |
Nearby Properties
| Address | Price | Distance |
|---|---|---|
| 8 Pathfinder Way | £ 249,995 | 0.23 KM |
| 2 Orchard Way | £ 389,995 | 0.58 KM |
| 3 Orchard Way | £ 366,995 | 0.58 KM |
| Grove Cottage | £ 850,000 | 0.80 KM |
| 83 Magdalene Close | £ 138,000 | 0.80 KM |