Acorn says ..
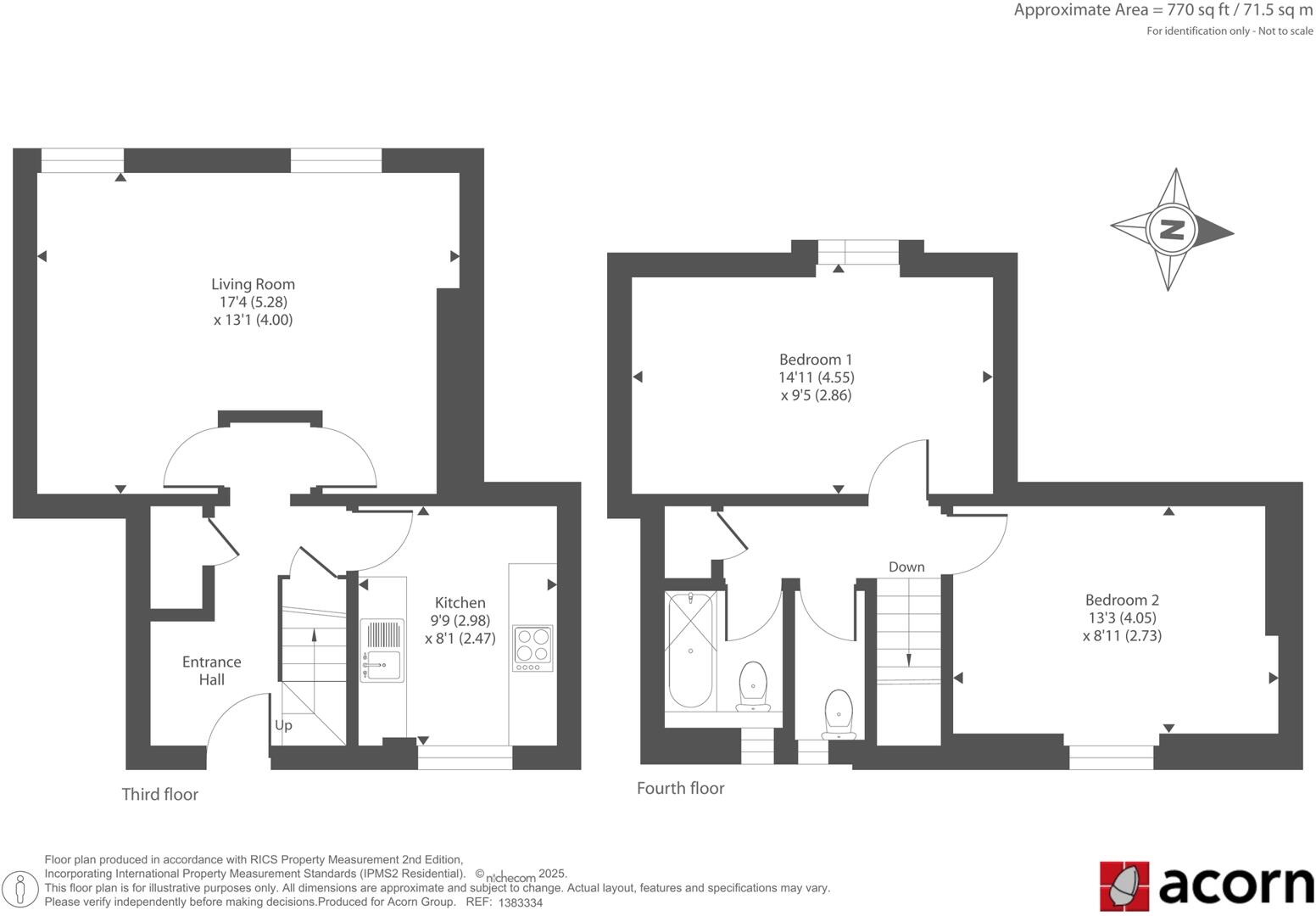
Set on the upper floors of an attractive mansion style block this two bedroom apartment offers huge potential to make a fantastic home and/or excellent investment property. Set over two floors, with two generous double bedrooms set on the top floor and a three piece bathroom suite. Upo...
Property Oracle says ..
This is a 2-bedroom apartment located in Lambeth, London. The property is in fair condition and benefits from communal gardens. The location is desirable, with good access to transportation, schools, and amenities. The list price of £425,000 seems reasonable given the location, size, and condition of the property. The property is located close to King’s College London Maths School which has an outstanding Ofsted rating. The apartment has a modern kitchen and bathrooms, but the bedrooms could use some updating. Overall, this property would be suitable for a small family or professionals working in the area. The building appears to be a period property but the interior is modern.
Therefore, we give this property 6 / 10. *Disclaimer: This is our option and does constitute a recommendation or financial advice. Do your own research. *
- Price
- 7
- Condition
- 6
- Location
- 7
- Land
- 7
- Bedrooms
- 2
- Bathrooms
- 2
- Sqft (est)
- 770.00
The heatmap indicates the level of crime in the area. The color of the heatmap indicates the crime severity and recency.
Metrics Year-on-Year
- Average area value
- 1,971,071.00 £Increased by 51.54 %
- Est sale value
- 1,294,370.00 £Decreased by 0.71 %
- Average area rental value
- 2,905.00 £/moIncreased by 15.55 %
- Est letting value
- 1,540.00 £/moDecreased by 33.33 %
- Est rental Yield
- 1.77 %Decreased by 23.71 %
- Crime Rate
- 4.00 %Unchanged by 0.00 %
Agent Activity
Acorn created the listing.
Nearby Schools
| Name | Type | Ofsted | Distance |
|---|---|---|---|
| King'S College London Maths School | Free Schools 16 To 19 | Outstanding | 0.13 KM |
| Walnut Tree Walk Primary School | Community School | Good | 0.15 KM |
| Oasis Academy South Bank | Free Schools | Outstanding | 0.39 KM |
| Morley College | Further Education | 0.42 KM | |
| The Marine Society College Of The Sea | Further Education | Good | 0.44 KM |
Images
Nearby Streets
| Name | Average Price | Average Sqft | Distance |
|---|---|---|---|
| Bishop's Terrace | £ 0 | 0 | 0.00 KM |
| John Street | £ 0 | 0 | 0.00 KM |
| St Mary's Gardens | £ 1,700,000 | 0 | 0.00 KM |
| Cottesloe Mews | £ 0 | 0 | 0.00 KM |
| St Mary's Walk | £ 0 | 0 | 0.00 KM |
Nearby Transport
| Name | NLC | TLC | Distance |
|---|---|---|---|
| Waterloo | 5598 | WAT | 0.92 KM |
| Waterloo East | 5158 | WAE | 1.08 KM |
| Vauxhall | 5597 | VXH | 1.51 KM |
| Elephant And Castle | 5246 | EPH | 1.52 KM |
| Charing Cross | 5143 | CHX | 1.99 KM |
Nearby Listings
| Address | Price | Type | Score | Distance |
|---|---|---|---|---|
| Lambeth Walk, London | £ 425,000 | BUY | 6 / 10 | 0.00 KM |
| Derby House, Walnut Tree Walk, Kennington, London, SE11 | £ 459,950 | BUY | 6 / 10 | 0.07 KM |
| Walnut Tree Walk,, London, Se11 6dj, London, SE11 | £ 450,000 | BUY | 6 / 10 | 0.09 KM |
| Walnut Tree Walk, London, SE11 | £ 600,000 | BUY | 6 / 10 | 0.09 KM |
| Lambeth Road, London, SE1 | £ 332,500 | BUY | 6 / 10 | 0.14 KM |
Nearby Properties
| Address | Price | Distance |
|---|---|---|
| 61 Walnut Tree Walk | £ 725,000 | 0.12 KM |
| 56 Walnut Tree Walk | £ 1,500,000 | 0.12 KM |
| 60 Walnut Tree Walk | £ 700,000 | 0.12 KM |
| 31 Walnut Tree Walk | £ 525,000 | 0.12 KM |
| 55 Walnut Tree Walk | £ 975,000 | 0.12 KM |