BidX1 says ..
To be sold at an online auction. For further information, viewing times and legal documentation, please visit bidx1.com.
Property Oracle says ..
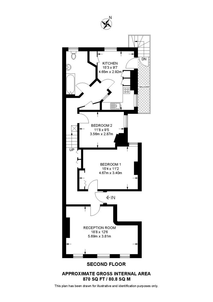
This property is a 2-bedroom flat located on Sydenham Road in London, SE26. The area benefits from nearby transportation links, including Sydenham station (0.43km), and several well-regarded schools within a 1km radius, such as St Bartholomews’S Church of England Primary School and Alexandra Junior School. The property itself appears to be in good condition based on the provided images, showing a recently renovated interior with a modern kitchen and bathroom. However, the listing does not provide information on the property’s size or land area. The list price of £250,000 is significantly lower than the average price of £521,464 for the area, and considerably lower than the £300,000 price point of comparable nearby properties. This suggests that the property may represent good value for money, although the lack of square footage information makes a definitive assessment difficult. Further investigation into the property size and any potential hidden issues would be recommended.
Therefore, we give this property 7 / 10. *Disclaimer: This is our option and does constitute a recommendation or financial advice. Do your own research. *
- Price
- 9
- Condition
- 8
- Location
- 8
- Land
- 3
- Bedrooms
- 2
- Bathrooms
- 1
The heatmap indicates the level of crime in the area. The color of the heatmap indicates the crime severity and recency.
Metrics Year-on-Year
- Average area value
- 541,000.00 £Increased by 7.25 %
- Average area rental value
- 1,900.00 £/moIncreased by 1.17 %
- Est rental Yield
- 4.21 %Decreased by 5.82 %
- Crime Rate
- 13.00 %Unchanged by 0.00 %
Agent Activity
BidX1 created the listing.
Nearby Schools
| Name | Type | Ofsted | Distance |
|---|---|---|---|
| Forest Hill School | Community School | Requires improvement | 0.71 KM |
| St Bartholomews'S Church Of England Primary School | Voluntary Aided School | Good | 0.74 KM |
| Alexandra Junior School | Academy Converter | Good | 0.76 KM |
| St Michael'S Church Of England Primary School | Voluntary Aided School | Good | 0.98 KM |
| Our Lady And St Philip Neri Roman Catholic Primary School | Voluntary Aided School | Good | 1.00 KM |
Images
Nearby Streets
| Name | Average Price | Average Sqft | Distance |
|---|---|---|---|
| Broseley Grove | £ 0 | 0 | 0.00 KM |
| Alexandra Road | £ 0 | 0 | 0.00 KM |
| Newman Close | £ 0 | 0 | 0.00 KM |
| High Street | £ 0 | 0 | 0.00 KM |
| Chulsa Road | £ 340,000 | 0 | 0.00 KM |
Nearby Transport
| Name | NLC | TLC | Distance |
|---|---|---|---|
| Sydenham | 5437 | SYD | 0.43 KM |
| Penge East | 5072 | PNE | 0.86 KM |
| Forest Hill | 5362 | FOH | 1.49 KM |
| Penge West | 5378 | PNW | 1.49 KM |
| Kent House | 5080 | KTH | 1.66 KM |
Nearby Listings
| Address | Price | Type | Score | Distance |
|---|---|---|---|---|
| Sydenham Road, London, SE26 | £ 250,000 | BUY | 7 / 10 | 0.00 KM |
| Sydenham Road, London | £ 325,000 | BUY | Unknown | 0.01 KM |
| Sydenham Road, London | £ 300,000 | BUY | 6 / 10 | 0.03 KM |
| Sydenham Road, Sydenham, London | £ 290,000 | BUY | 6 / 10 | 0.03 KM |
| Sydenham Road, Sydenham, SE26 | £ 300,000 | BUY | 5 / 10 | 0.03 KM |
Nearby Properties
| Address | Price | Distance |
|---|---|---|
| 91a Sydenham Road | £ 153,000 | 0.01 KM |
| 81b Sydenham Road | £ 135,000 | 0.01 KM |
| 73a Sydenham Road | £ 58,000 | 0.01 KM |
| 85b Sydenham Road | £ 340,000 | 0.01 KM |
| 81a Sydenham Road | £ 135,000 | 0.01 KM |