Ashfield Road, Altrincham, WA15
By Jackson-Stops
£ 800,000
Reviews
3 out of 5 stars
Jackson-Stops says ..
A magnificent Victorian end of terrace, beautifully finished, embodies timeless elegance and impeccable perfection. This exquisite Victorian end of terrace property has been extensively renovated to an exceptional standard. The home provides generous living space across three beautiful...
Property Oracle says ..
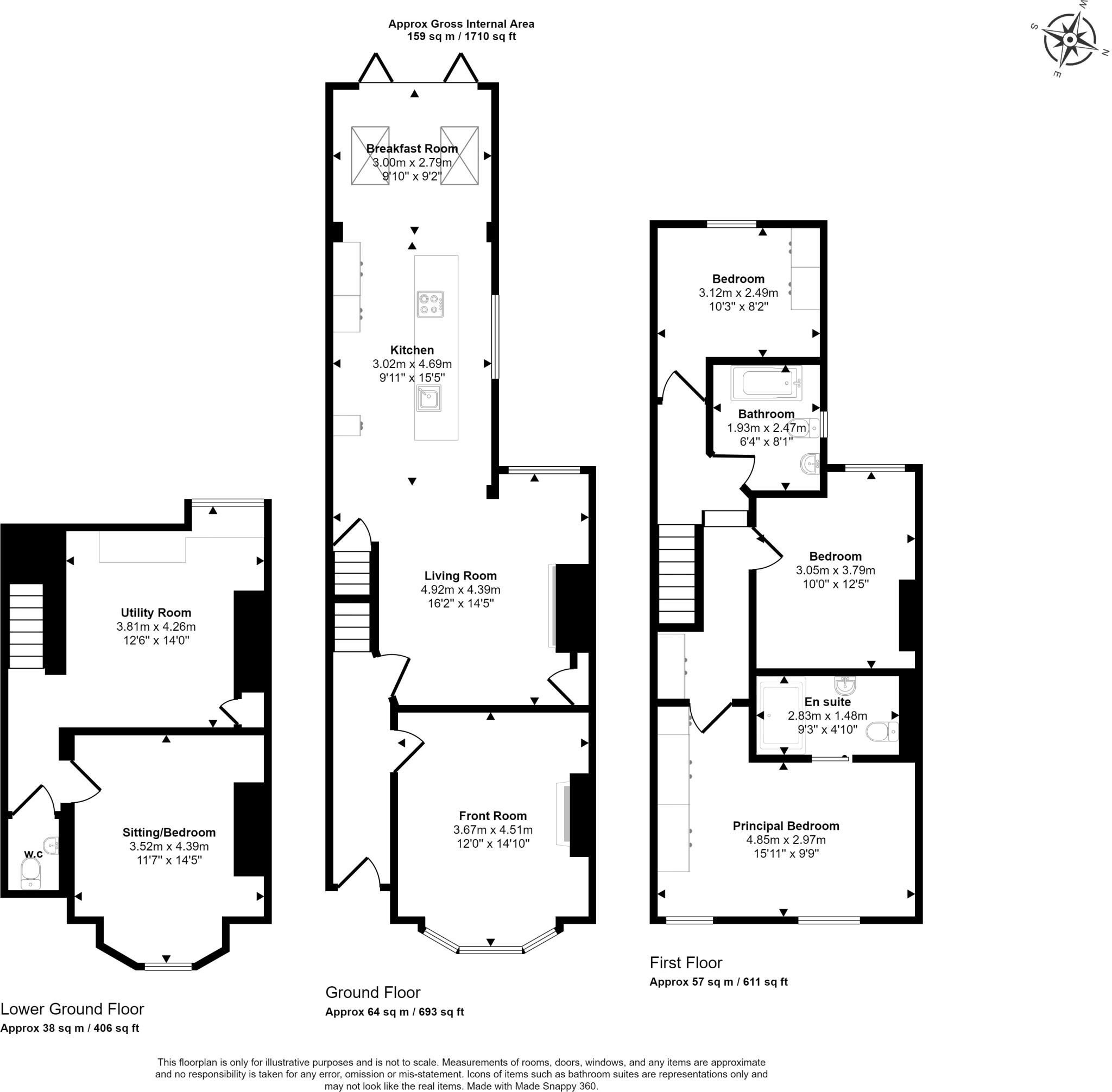
This three-bedroom, two-bathroom property located on Ashfield Road in Hale Central, Altrincham is presented in excellent condition. The images reveal a recently renovated home with a contemporary interior design. The kitchen is a particular highlight, featuring modern appliances and a spacious island. The property benefits from a rear garden, though its size appears relatively modest, and a finished basement with added living space. The location is highly desirable, offering close proximity to outstanding schools and excellent transportation links to Manchester. The list price of £800,000 aligns with expectations for this area, especially given the quality of the renovation work. However, a precise price-per-square-foot comparison is difficult without comprehensive square footage data for nearby comparable listings. Overall, this property represents a strong offering for buyers seeking a high-quality, conveniently located home in Altrincham. The property also boasts a blue plaque, adding historical significance and charm to the location and property itself.
Therefore, we give this property 7 / 10. *Disclaimer: This is our option and does constitute a recommendation or financial advice. Do your own research. *
- Price
- 7
- Condition
- 9
- Location
- 9
- Land
- 4
- Bedrooms
- 3
- Bathrooms
- 2
- Sqft (est)
- 1,710.00
The heatmap indicates the level of crime in the area. The color of the heatmap indicates the crime severity and recency.
Metrics Year-on-Year
- Average area value
- 1,058,000.00 £Increased by 28.68 %
- Est sale value
- 892,620.00 £Decreased by 1.69 %
- Average area rental value
- 2,405.00 £/moIncreased by 4.66 %
- Est letting value
- 1,710.00 £/moUnchanged by 0.00 %
- Est rental Yield
- 2.73 %Decreased by 18.51 %
- Crime Rate
- 0.00 %
Agent Activity
Jackson-Stops marked this listing as sold.
Jackson-Stops created the listing.
Nearby Schools
| Name | Type | Ofsted | Distance |
|---|---|---|---|
| Hale Preparatory School | Other Independent School | 0.64 KM | |
| Blessed Thomas Holford Catholic College | Voluntary Aided School | Outstanding | 0.74 KM |
| Stamford Park Primary School | Community School | Good | 0.76 KM |
| Bowdon Preparatory School For Girls | Other Independent School | 0.80 KM | |
| St Vincent'S Catholic Primary School | Voluntary Aided School | Outstanding | 0.84 KM |
Images
Nearby Streets
| Name | Average Price | Average Sqft | Distance |
|---|---|---|---|
| Hamon Road | £ 0 | 0 | 0.00 KM |
| Yarwood Street | £ 0 | 0 | 0.00 KM |
| Armitage Road | £ 0 | 0 | 0.00 KM |
| Rostherne Street | £ 0 | 0 | 0.00 KM |
| Lloyd Street | £ 0 | 0 | 0.00 KM |
Nearby Transport
| Name | NLC | TLC | Distance |
|---|---|---|---|
| Altrincham | 2806 | ALT | 0.44 KM |
| Hale (Manchester) | 2845 | HAL | 0.57 KM |
| Navigation Road | 2940 | NVR | 1.34 KM |
| Ashley | 2850 | ASY | 3.17 KM |
| Mobberley | 2849 | MOB | 6.24 KM |
Nearby Listings
| Address | Price | Type | Score | Distance |
|---|---|---|---|---|
| Ashfield Road, Altrincham, WA15 | £ 800,000 | BUY | 7 / 10 | 0.00 KM |
| Ashfield Road, Altrincham | £ 600,000 | BUY | 7 / 10 | 0.06 KM |
| York Street, Altrincham, Greater Manchester, WA15 | £ 390,000 | BUY | 6 / 10 | 0.07 KM |
| York Street, Altrincham | £ 390,000 | BUY | Unknown | 0.07 KM |
| Ashfield Road, Altrincham | £ 512,000 | BUY | 7 / 10 | 0.10 KM |
Nearby Properties
| Address | Price | Distance |
|---|---|---|
| 21 Ashfield Road | £ 115,000 | 0.08 KM |
| 19 Ashfield Road | £ 405,000 | 0.08 KM |
| 1 Ashfield Road | £ 250,000 | 0.08 KM |
| 51 Ashfield Road | £ 591,000 | 0.08 KM |
| 9 Ashfield Road | £ 255,600 | 0.08 KM |