Coopers Rise, Godalming, Surrey, GU7
SE

Coopers Rise, Godalming, Surrey, GU7

By Seymours

£ 475,000

Reviews

3 out of 5 stars

Seymours says ..

Combining leaded windows with the rich tones of engineered wood floors and solid wood doors, this semi-detached family home is chain free and ready for you to simply move in and start the next chapter of your life. Already extended, there’s scope to enhance the considerable layout f...

Property Oracle says ..

This three-bedroom semi-detached house located on Coopers Rise in Godalming, Surrey, offers a comfortable family home within a reasonably convenient location. Godalming benefits from good train links to London and is well-served by schools and local amenities. The property itself appears well-maintained, showing a neat exterior and generally clean interiors. The photographs showcase a functional kitchen and living spaces, although some aesthetic updates could be made to increase the property’s appeal to potential buyers. The garden, while not exceptionally large, provides a useful outdoor space. The asking price of £475,000 seems fair for the area, though a detailed comparison with other properties is difficult due to a lack of precise square footage information in the available data. Overall, the property would be a reasonable choice for a family seeking a comfortable and reasonably located home in Godalming, though it might not be considered a luxury property. Potential buyers should undertake a thorough survey to identify any potential issues and assess the property’s suitability to their individual needs and preferences.

Therefore, we give this property 6 / 10. *Disclaimer: This is our option and does constitute a recommendation or financial advice. Do your own research. *

Price
7
Condition
6
Location
7
Land
4
Bedrooms
3
Bathrooms
1
Sqft (est)
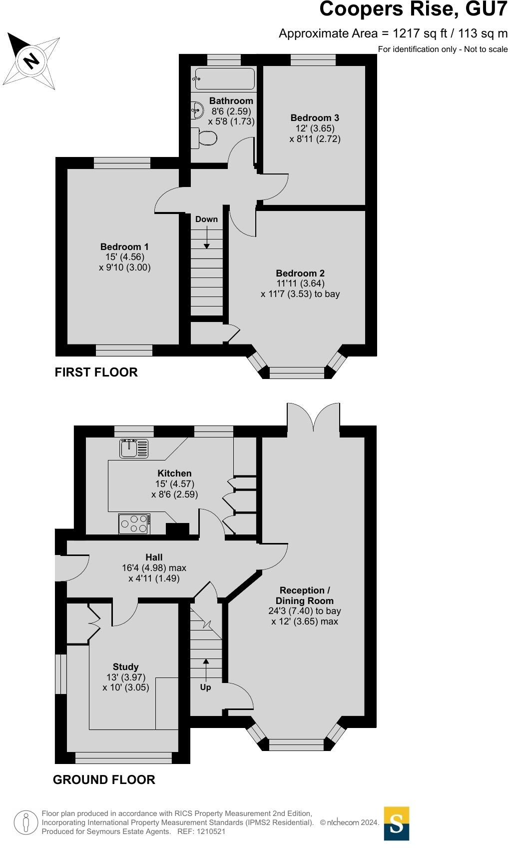
1,217.00

The heatmap indicates the level of crime in the area. The color of the heatmap indicates the crime severity and recency.

Metrics Year-on-Year

Average area value
622,000.00 £
Increased by 27.90 %
from 486,310.00 £
Est sale value
1,055,139.00 £
Increased by 103.52 %
from 518,442.00 £
Average area rental value
1,467.00 £/mo
Decreased by 11.84 %
from 1,664.00 £/mo
Est letting value
2,434.00 £/mo
Increased by 100.00 %
from 1,217.00 £/mo
Est rental Yield
2.83 %
Decreased by 31.14 %
from 4.11 %
Crime Rate
27.00 %
Unchanged by 0.00 %
from 27.00 %

Agent Activity

  • Seymours marked this listing as sold.

  • Seymours created the listing.

Nearby Schools

NameTypeOfstedDistance
St Mark And All Saints Church Of England PrimaryAcademy Sponsor Led0.47 KM
St Hilary'S SchoolOther Independent School1.10 KM
Godalming CollegeAcademy 16-19 ConverterOutstanding1.41 KM
Moss Lane SchoolFoundation SchoolGood1.69 KM
CharterhouseOther Independent School1.93 KM

Images

1210521 (1).jpg 1210521 (2).jpg 1210521 (14).jpg 1210521 (13).jpg 1210521 (9).jpg 1210521 (5).jpg 1210521 (4).jpg 1210521 (3).jpg 1210521 (6).jpg 1210521 (26).jpg 1210521 (20).jpg 1210521 (17).jpg 1210521 (16).jpg 1210521 (7).jpg 1210521 (8).jpg 1210521 (19).jpg 1210521 (12).jpg Google Maps Image Google Maps Image 1210521 (21).jpg 1210521 (22).jpg 1210521 (10).jpg 1210521 (1).jpg 1210521 (15).jpg

Nearby Streets

NameAverage PriceAverage SqftDistance
Holly Lane £ 575,00000.00 KM
Laurel Close £ 375,00000.00 KM
Franklyn Road £ 495,00000.00 KM
Hornbeam Way £ 000.00 KM
Valley View £ 465,00000.00 KM

Nearby Transport

NameNLCTLCDistance
Godalming5629GOD1.24 KM
Milford (Surrey)5644MLF2.16 KM
Farncombe5643FNC3.21 KM
Witley5640WTY5.63 KM
Shalford (Surrey)5638SFR7.77 KM

Nearby Listings

AddressPriceTypeScoreDistance
Coopers Rise, Godalming, Surrey, GU7 £ 475,000BUY6 / 100.00 KM
4 bedroom Semi-Detached House in Godalming £ 550,000BUY6 / 100.07 KM
Coopers Rise, Godalming, Surrey, GU7 £ 500,000BUYUnknown0.07 KM
Coopers Rise, Godalming, GU7 £ 475,000BUYUnknown0.08 KM
Quarry Hill, Godalming, GU7 £ 599,950BUY6 / 100.09 KM

Nearby Properties

AddressPriceDistance
3 Coopers Rise £ 236,0000.06 KM
7 Coopers Rise £ 217,5000.06 KM
5 Coopers Rise £ 450,0000.06 KM
3a Coopers Rise £ 395,0000.06 KM
17 Coopers Rise £ 315,0000.06 KM