Westholm, Hampstead Garden Suburb, NW11
By Litchfields
£ 995,000
Reviews
3 out of 5 stars
Litchfields says ..
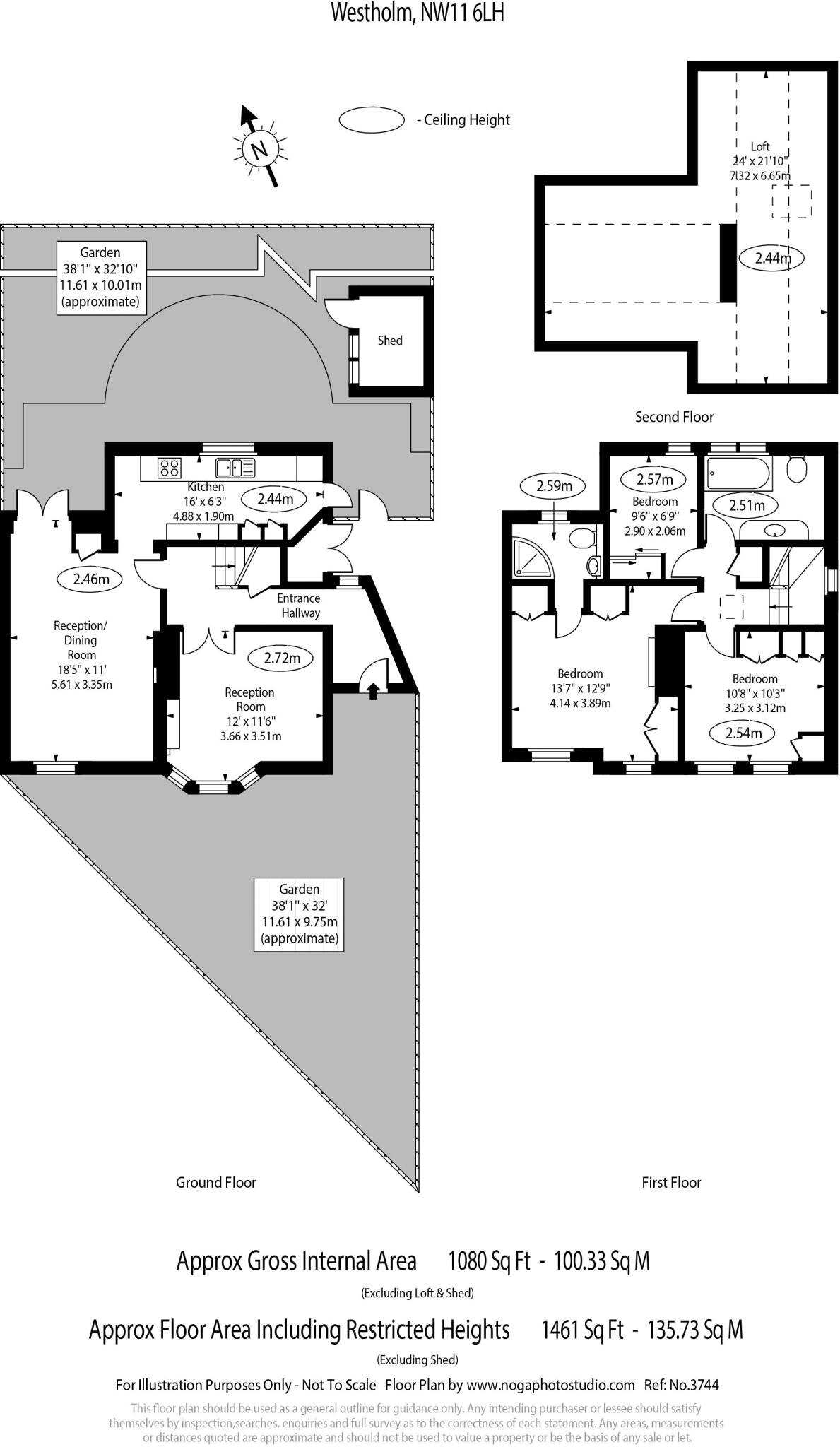
Nestled at the top of a tranquil cul-de-sac, this delightful three-bedroom semi-detached house offers an inviting blend of comfort and convenience. Ideally located within easy reach of the vibrant amenities of The Market Place and falling within the highly sought-after Brookland School catchment ...
Property Oracle says ..
This is a well-presented semi-detached house in the desirable Hampstead Garden Suburb. The property benefits from a modern interior, a good-sized garden, and proximity to excellent schools. While the price per square foot is above the area average, the overall price seems reasonable considering the property’s condition and location. The property retains some of its original features and charm, blending traditional and modern elements seamlessly.
Therefore, we give this property 7 / 10. *Disclaimer: This is our option and does constitute a recommendation or financial advice. Do your own research. *
- Price
- 7
- Condition
- 8
- Location
- 8
- Land
- 7
- Bedrooms
- 3
- Bathrooms
- 2
- Sqft (est)
- 1,079.94
The heatmap indicates the level of crime in the area. The color of the heatmap indicates the crime severity and recency.
Metrics Year-on-Year
- Average area value
- 1,617,059.00 £Decreased by 47.03 %
- Est sale value
- 691,161.60 £Decreased by 60.64 %
- Average area rental value
- 2,345.00 £/moDecreased by 26.70 %
- Est letting value
- 0.00 £/moDecreased by 100.00 %
- Est rental Yield
- 1.74 %Increased by 38.10 %
- Crime Rate
- 4.00 %Unchanged by 0.00 %
Agent Activity
Litchfields created the listing.
Nearby Schools
| Name | Type | Ofsted | Distance |
|---|---|---|---|
| Brookland Infant And Nursery School | Community School | Outstanding | 0.28 KM |
| Brookland Junior School | Community School | Outstanding | 0.28 KM |
| Christ'S College Finchley | Academy Converter | Good | 0.37 KM |
| The Henrietta Barnett School | Academy Converter | 0.75 KM | |
| St Theresa'S Catholic Primary School | Voluntary Aided School | Good | 0.79 KM |
Images
Nearby Streets
| Name | Average Price | Average Sqft | Distance |
|---|---|---|---|
| Eger Close | £ 374,975 | 0 | 0.00 KM |
| Hurst Close | £ 0 | 0 | 0.00 KM |
| Juliana Close | £ 575,000 | 0 | 0.00 KM |
| Hill Close | £ 0 | 0 | 0.00 KM |
| Meadway Close | £ 0 | 0 | 0.00 KM |
Nearby Transport
| Name | NLC | TLC | Distance |
|---|---|---|---|
| Finchley Road And Frognal | 1445 | FNY | 4.21 KM |
| Cricklewood | 1519 | CRI | 4.24 KM |
| Hampstead Heath | 1413 | HDH | 4.38 KM |
| West Hampstead Thameslink | 1525 | WHP | 4.39 KM |
| West Hampstead | 1421 | WHD | 4.49 KM |
Nearby Listings
| Address | Price | Type | Score | Distance |
|---|---|---|---|---|
| Westholm, Hampstead Garden Suburb, NW11 | £ 995,000 | BUY | 7 / 10 | 0.00 KM |
| Westholm, Hampstead Garden Suburb, London, NW11 | £ 995,000 | BUY | 7 / 10 | 0.02 KM |
| Westholm, Hampstead Garden Suburb, NW11 | £ 995,000 | BUY | Unknown | 0.03 KM |
| Brookland Hill Hampstead Garden Suburb NW11 | £ 1,100,000 | BUY | 7 / 10 | 0.09 KM |
| Westholm, Hampstead Garden Suburb | £ 799,000 | BUY | 6 / 10 | 0.09 KM |
Nearby Properties
| Address | Price | Distance |
|---|---|---|
| 12 Brookland Hill | £ 430,000 | 0.10 KM |
| 16 Brookland Hill | £ 1,040,000 | 0.10 KM |
| 36 Brookland Hill | £ 865,000 | 0.10 KM |
| 28 Brookland Hill | £ 895,000 | 0.10 KM |
| 10 Brookland Hill | £ 960,000 | 0.10 KM |