Oak Croft, Clayton-Le-Woods, Chorley
By Ben Rose
£ 159,995
Reviews
3 out of 5 stars
Ben Rose says ..
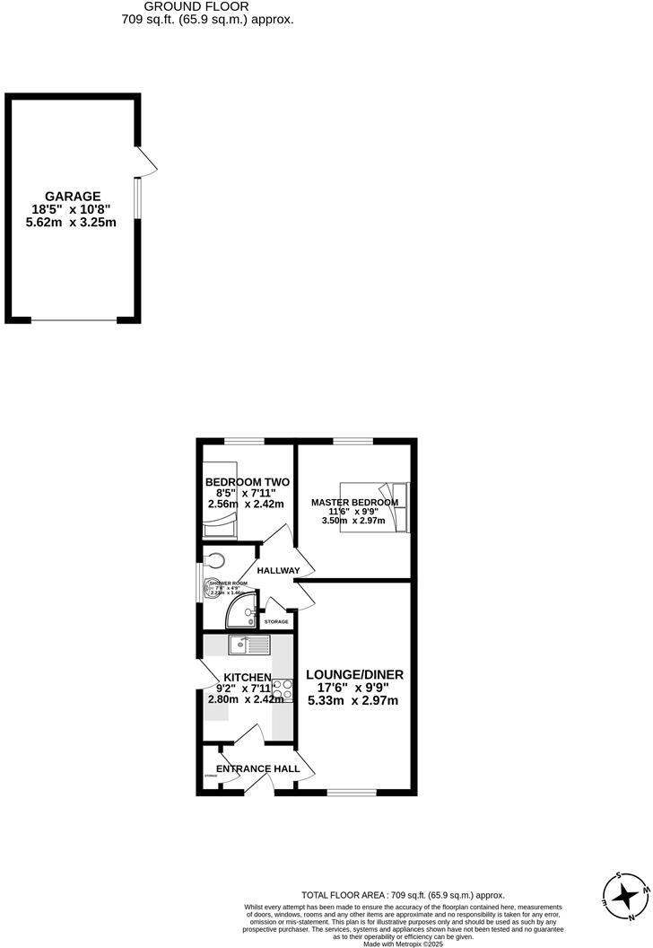
Ben Rose Estate Agents are pleased to present to market this charming two-bedroom semi-detached bungalow, situated in a sought-after residential area of Clayton-le-Woods. Ideally located, the property offers excellent access to major northwest towns and cities via the M6 and M61 motorways, while ...
Property Oracle says ..
This is a semi-detached bungalow located in Clayton-Le-Woods, Chorley. The property offers two bedrooms and one bathroom within 438.30 sqft of living space. While the property is situated in a convenient location with access to nearby schools and transportation, the interior and exterior show signs of needing some modernization and landscaping. The asking price of £159,995 appears reasonable when compared to the average price per square foot in the area, but potential buyers should factor in renovation costs.
Therefore, we give this property 6 / 10. *Disclaimer: This is our option and does constitute a recommendation or financial advice. Do your own research. *
- Price
- 7
- Condition
- 6
- Location
- 7
- Land
- 5
- Bedrooms
- 2
- Bathrooms
- 1
- Sqft (est)
- 438.30
The heatmap indicates the level of crime in the area. The color of the heatmap indicates the crime severity and recency.
Metrics Year-on-Year
- Average area value
- 445,205.00 £Decreased by 3.69 %
- Est sale value
- 282,703.50 £Increased by 20.34 %
- Average area rental value
- 1,836.00 £/moIncreased by 4.79 %
- Est letting value
- 876.60 £/moUnchanged by 0.00 %
- Est rental Yield
- 4.95 %Increased by 8.79 %
- Crime Rate
- 8.00 %Unchanged by 0.00 %
Agent Activity
Ben Rose created the listing.
Nearby Schools
| Name | Type | Ofsted | Distance |
|---|---|---|---|
| Clayton-Le-Woods Manor Road Primary School | Community School | Good | 0.17 KM |
| St Bede'S Catholic Primary School | Voluntary Aided School | Good | 0.88 KM |
| Cambian Red Rose School | Other Independent Special School | Good | 0.96 KM |
| Clayton-Le-Woods Church Of England Primary School | Voluntary Aided School | Good | 0.99 KM |
| Westwood Primary School | Community School | Good | 1.10 KM |
Images
Nearby Streets
| Name | Average Price | Average Sqft | Distance |
|---|---|---|---|
| Meadway | £ 0 | 0 | 0.00 KM |
| Clayton Green Road | £ 0 | 0 | 0.00 KM |
| Stonehouse Green | £ 280,000 | 0 | 0.00 KM |
| Greenacres | £ 0 | 0 | 0.00 KM |
| Chapel Fold | £ 0 | 0 | 0.00 KM |
Nearby Transport
| Name | NLC | TLC | Distance |
|---|---|---|---|
| Buckshaw Parkway | 7501 | BSV | 3.53 KM |
| Bamber Bridge | 2561 | BMB | 3.54 KM |
| Leyland | 2710 | LEY | 4.82 KM |
| Euxton Balshaw Lane | 2080 | EBA | 5.41 KM |
| Lostock Hall | 2689 | LOH | 5.55 KM |
Nearby Listings
| Address | Price | Type | Score | Distance |
|---|---|---|---|---|
| Oak Croft, Clayton-Le-Woods, Chorley | £ 159,995 | BUY | 6 / 10 | 0.00 KM |
| Oak Croft, Clayton-Le-Woods, PR6 | £ 60,000 | BUY | 5 / 10 | 0.03 KM |
| Oak Croft, Clayton-le-Woods, Chorley, Lancashire, PR6 | £ 125,000 | BUY | 7 / 10 | 0.07 KM |
| Lords Croft, Clayton-le-Woods, Chorley, Lancashire, PR6 | £ 190,000 | BUY | Unknown | 0.13 KM |
| Bone Croft, Clayton-Le-Woods, Chorley | £ 219,995 | BUY | 6 / 10 | 0.21 KM |
Nearby Properties
| Address | Price | Distance |
|---|---|---|
| 27 Oak Croft | £ 17,950 | 0.03 KM |
| 14 Oak Croft | £ 135,000 | 0.03 KM |
| 37 Oak Croft | £ 106,500 | 0.03 KM |
| 1 Oak Croft | £ 59,000 | 0.03 KM |
| 28 Oak Croft | £ 57,500 | 0.03 KM |